Objektdaten
Objektbeschreibung
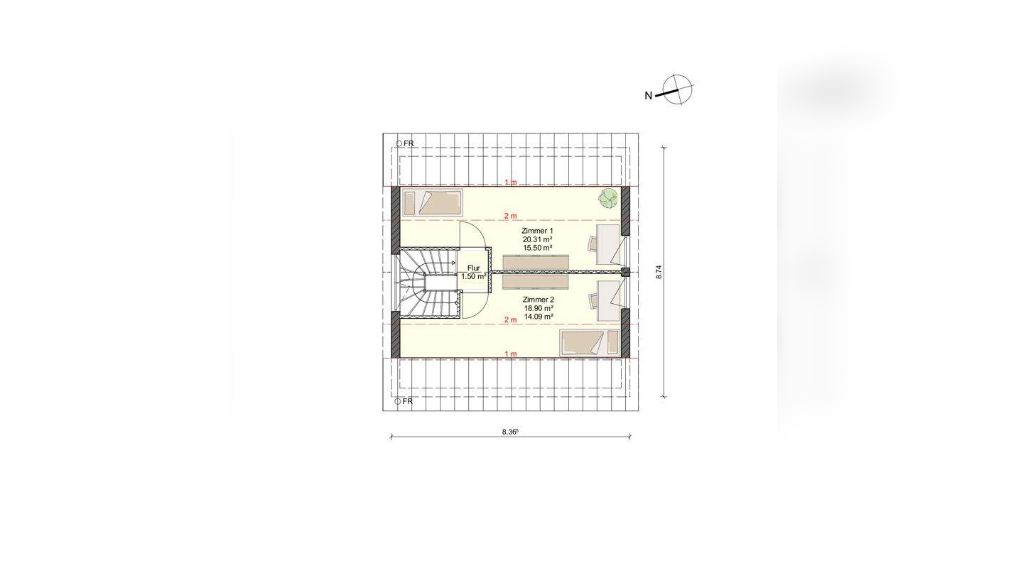
Auf einem ca. 466 m² großen Grundstück entsteht ein modern und hochwertig ausgestattetes Einfamilienhaus. Dieses wird in Massivbauweise "Stein auf Stein" errichtet.Das Haus in diesem Angebot verfügt über eine Wohnfläche von ca. 111 m² und einer Grundstücksgröße von ca. 466 m².Das Grundstück ist in der Stadt Bergen mit guter Infrastruktur gelegen. Die Umgebung ist überwiegend von Einfamilien- und Doppelhäusern und Mehrfamilienhäusern geprägt.Der von der Straße abgewandte Garten verspricht erholsame Stunden im Kreise Ihrer Familie und Freunde. Auf der Terrasse entfliehen Sie dem Alltag mit einem guten Buch, einem Glas Wein oder beim spielen mit Ihren Kindern. Nutzen Sie diese Gelegenheit und erfüllen sich Ihren Traum vom Eigenheim.RaumaufteilungErdgeschoss:- Flur mit Treppe zum Obergeschoss- Duschbad- Haustechnikraum- offener Wohn- /Kochbereich Dachgeschoss:- Flur- Hauptbad mit Badewanne/ Dusche- Schlafzimmer- Kind 1- Kind 2Der Dachboden ist erreichbar über eine Bodeneinschubtreppe. Auf Wunsch kann dieser ausgebaut werden, wodurch zusätzlich 2 Zimmer mit je ca. 15 m² Wohnfläche und ein kleiner Flur entstehen.Bitte fragen Sie uns gern nach einem Ausbauangebot.Ähnliche Angebote
So funktioniert es
- Alle neuen Anzeigen matchen wir kostenlos mit Deinen Suchparametern.
- Passende Angebote senden wir Dir in einer E-Mail pro Tag.
- Du kannst auch verschiedene Suchen anlegen und Dich jederzeit abmelden. Mehr dazu




