Objektdaten
Objektbeschreibung
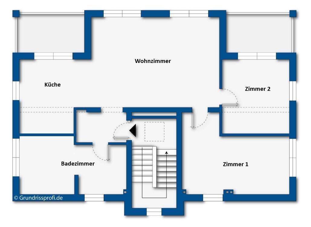
Diese moderne 3-Zimmer-Wohnung im 2. Obergeschoss überzeugt mit ca. 105 m² Wohnfläche, zwei überdachten Balkonen, hochwertiger Ausstattung und vielseitigen Nutzungsmöglichkeiten. Neben einem großzügigen Wohnbereich verfügt die Wohnung über ein stilvolles Badezimmer mit bodentiefer Dusche und freistehender Badewanne, eine Einbauküche sowie zwei praktische Außenstellplätze. Designböden, Deckenheizung und -kühlung, 3-Scheiben-Isolierfenster mit elektrischen Rollläden sowie ein Abstellraum IM Erdgeschoss runden das Angebot ab. Die Wohnung befindet sich im beliebten Ortsteil Lindenberg. Für ausführliche Informationen fordern Sie bitte unser Exposé an.Ähnliche Angebote
So funktioniert es
- Alle neuen Anzeigen matchen wir kostenlos mit Deinen Suchparametern.
- Passende Angebote senden wir Dir in einer E-Mail pro Tag.
- Du kannst auch verschiedene Suchen anlegen und Dich jederzeit abmelden. Mehr dazu




