Kaufpreis 98.500 €
Zimmer 3
Größe 76 m²
33813 Oerlinghausen
Objektdaten
Veröffentlicht am: 25. September 2025
Baujahr: 1975
Energieausweis: Liegt bei der Besichtigung vor
Danke! Bitte bestätige Deine E-Mail-Adresse – wir haben Dir soeben eine Mail geschickt.
Es gab ein Problem beim Absenden. Bitte versuche es erneut.
Bitte bestätige Deine E-Mail-Adresse, um Updates zu erhalten.
Objektbeschreibung
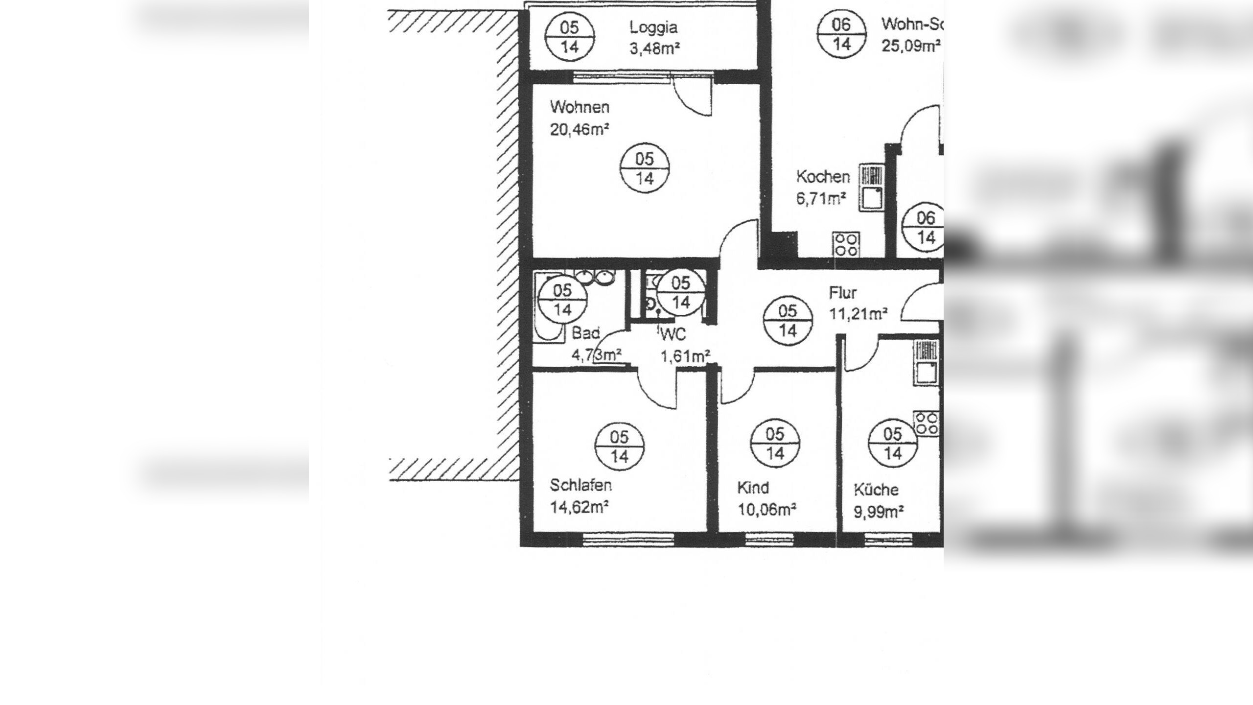
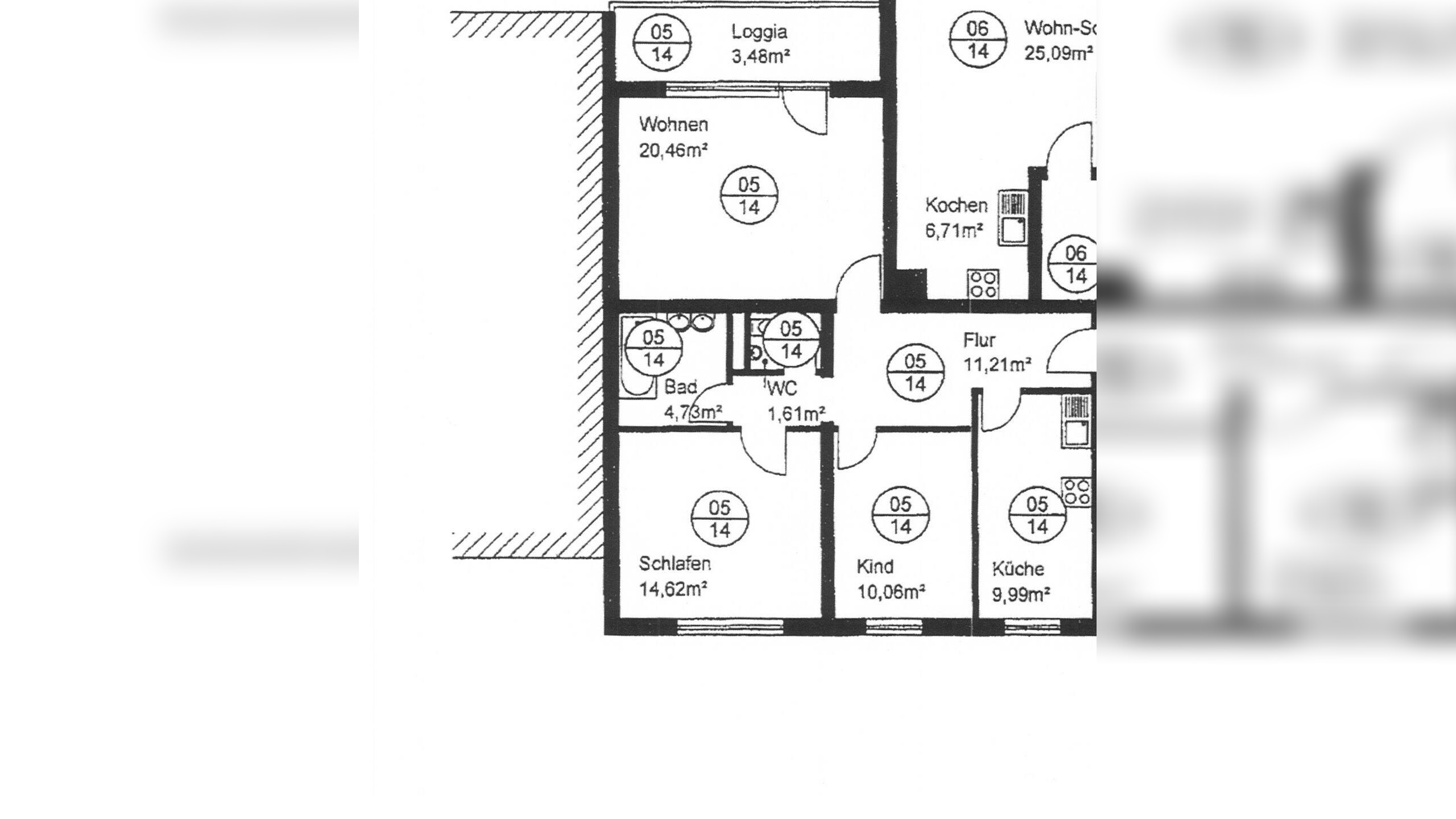
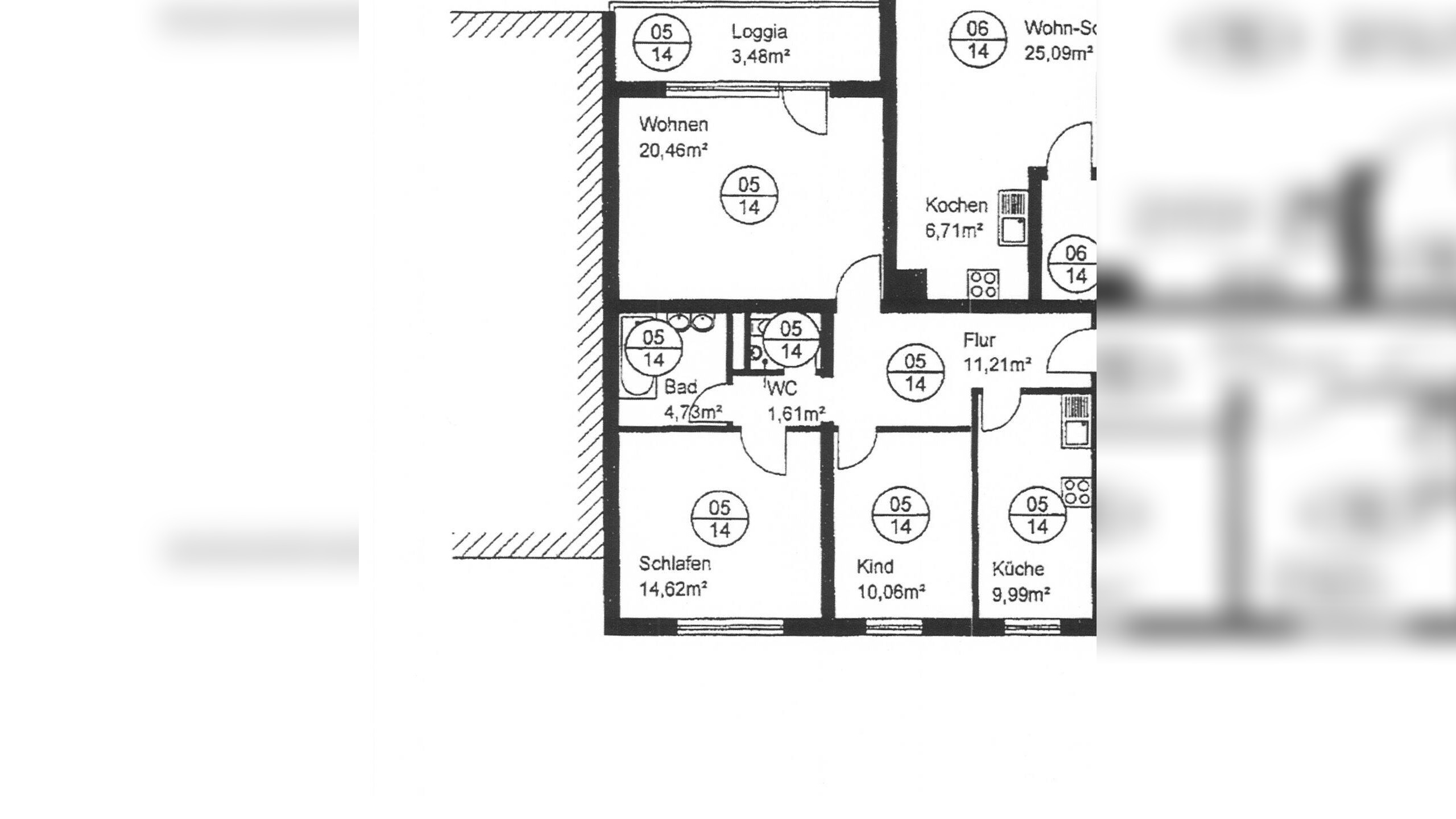
Zum Verkauf steht eine geräumige 3-Zimmer-Wohnung im 2. Obergeschoss eines im Jahr 1975 erbauten Mehrfamilienhauses. Die Wohnung ist bequem über einen Aufzug erreichbar und überzeugt durch eine durchdachte Grundrissgestaltung. Im Jahr 2011 wurde ein Erbbaurechtsvertrag mit einer Laufzeit von 198 Jahren geschlossen, im Zuge dessen erfolgte die Aufteilung nach WEG in Eigentumswohnungen.Die Wohnung verfügt über zwei Schlafzimmer, ein lichtdurchflutetes Wohnzimmer mit Zugang zum Westbalkon, ein Wannenbad sowie eine separate Küche. Alle Räume sind komfortabel vom zentralen Flur aus begehbar.Beheizt wird die Immobilie über eine Fernwärme-Zentralheizung. Zur Wohnung gehören außerdem ein Kellerraum sowie die Mitbenutzung eines gemeinschaftlichen Fahrradraums.Das Hausgeld beträgt derzeit 381,49 €, der monatliche Erbbauzins liegt bei 100,32 €. Die Wohnung ist aktuell vermietet und erwirtschaftet eine monatliche Kaltmiete von 350,00 €, was einer Miete von 4,58 €/m² entspricht und somit deutlich unter dem aktuellen Mietniveau liegt.Weitere Unterlagen lassen wir Ihnen gerne nach erfolgter Kontaktaufnahme zukommen. Wir freuen uns auf Ihre Anfrage!
So funktioniert es
- Alle neuen Anzeigen matchen wir kostenlos mit Deinen Suchparametern.
- Passende Angebote senden wir Dir in einer E-Mail pro Tag.
- Du kannst auch verschiedene Suchen anlegen und Dich jederzeit abmelden. Mehr dazu
Wir haben soeben eine E-Mail mit Deinem Suchauftrag an Dich geschickt. – Klicke in dieser Mail auf den Bestätigungslink und schon geht's los. Prüfe ggf. auch Deinen Spamordner.
Es gab ein Problem beim Absenden Deiner E-Mail-Adresse. Bitte versuche es erneut.
WARNUNG: Bitte bestätige Deine E-Mail-Adresse, um regelmäßige Updates zu erhalten.