Kaufpreis 459.000 €
Zimmer 5
Größe 151 m²
84109 Wörth a.d. Isar
Objektdaten
Veröffentlicht am: 2. Oktober 2025
Energieausweis: Liegt bei der Besichtigung vor
Danke! Bitte bestätige Deine E-Mail-Adresse – wir haben Dir soeben eine Mail geschickt.
Es gab ein Problem beim Absenden. Bitte versuche es erneut.
Bitte bestätige Deine E-Mail-Adresse, um Updates zu erhalten.
Objektbeschreibung
Objektbeschreibung
Objektbeschreibung mit Bau- und LeistungsbeschreibungDieses massiv errichtete Doppelhaus überzeugt durch Qualität, Langlebigkeit und eine moderne Ausstattung – bereits im Standard enthalten. Vom Fundament bis zum Dach ist jedes Detail durchdacht und auf Energieeffizienz, Komfort und Werterhalt ausgelegt. Das Haus wird schlüsselfertig übergeben – inklusive umfangreicher Ausstattungs- und Serviceleistungen.Bau- und Leistungsbeschreibung Erdarbeiten und Bodenplatte• Ausführung sämtlicher Erdarbeiten gemäß Baugrundgutachten• Hochwertige, wärmegedämmte Bodenplatte für optimalen Schutz vor Feuchtigkeit und WärmeverlustenMassives Mauerwerk• Massivbauweise in Ziegel (Stein auf Stein)• Mauerstärke bis zu 42 cm für hervorragenden Schall-, Wärme- und Brandschutz• Energetisch und baubiologisch besonders wertvollDachkonstruktion• Zimmermannsmäßiger Pfettendachstuhl• Mit Einbretterung und langlebiger Dacheindeckung aus Dachsteinen• Stabile, klassische Ausführung mit hoher LebensdauerFenster und Fensterbänke• Premium-Kunststofffenster mit 3-fach-Verglasung und „warmer Kante“ zur Minimierung von Wärmeverlusten• Energiesparend und schallisolierend• Innenfensterbänke aus hochwertigem SteinmaterialElektroinstallation• Komfortable Elektroausstattung im gesamten Haus inklusive• Durchdachte Platzierung von Steckdosen, Lichtschaltern und AnschlüssenHeizung und Energieeffizienz• Moderne Wärmepumpe für nachhaltige und kosteneffiziente Beheizung• Hervorragende Wärmedämmung für niedrige Heizkosten• Filigrandecken auch im Obergeschoss für verbesserten Wärme- und SchallschutzInnen- und Außenputz• Hochwertige Markenputze für Innen- und Außenflächen• Langlebig, pflegeleicht und optisch ansprechendSanitärinstallation – komplett inklusive• Komplette Sanitärrohinstallation im gesamten Gebäude• Enthalten: Dusche, WC, Waschtisch und Badewanne• Alle Anschlussleitungen für Kalt- und Warmwasser, Abwasser sowie Zu- und Abläufe inklusive• Hochwertige Ausstattung mit Markenprodukten führender Hersteller• Zeitgemäße Badgestaltung mit Fokus auf Funktionalität und DesignInnenausstattung• Hochwertige CPL-Innentüren in verschiedenen Dekoren wählbar• Zeitlose, robuste Türlösungen für langanhaltende QualitätPlanung und Baukontrolle• Inklusive individueller Architekten- und Planungsleistungen• Architektenhäuser realisierbar – Ihre Wünsche und Ideen stehen im Mittelpunkt• Regelmäßige Baukontrollen durch unabhängigen TÜV-BaugutachterSicherheit und Garantien• Bauzeitgarantie für maximale Planungssicherheit• Inklusive Bauherrenhaftpflicht- und Bauleistungsversicherung• Baugewährleistungsversicherung über 100.000 €• 5 Jahre gesetzliche Gewährleistung gemäß BGBFazitDieses Haus bietet Ihnen nicht nur ein Zuhause, sondern ein solides, zukunftssicheres und durchdachtes Baukonzept. Mit vollständiger Sanitärausstattung, energieeffizienter Haustechnik, massiver Bauweise und umfassendem Versicherungsschutz steht Ihrem sorgenfreien Start in die eigenen vier Wände nichts im Weg.
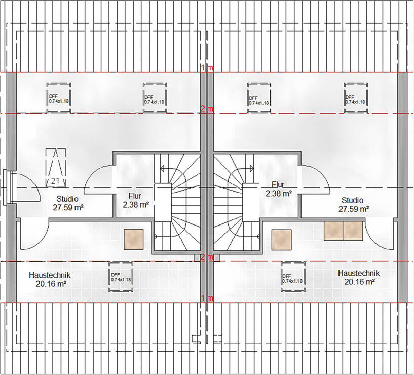
Raumaufteilung
Herzlich willkommen in Doppelhaus Salzburg – eine lichtdurchflutete Wohnwelt auf ca. 151 m² mit 5 Zimmern über 3 Ebenen. Im Erdgeschoss befindet sich eine große, funktionale Küche sowie ein offenes, helles Ess- und Wohnzimmergebiet mit direktem Zugang zur Terrasse und zur Gartenfläche. Im Obergeschoss erwarten Sie zwei Zimmer und ein großzügiges Schlafzimmer sowie ein Bad mit Dusche und Badewanne. Im Dachgeschoss finden Sie ein großzügiges Studio für individuelle Gestaltung – ideal als zusätzliches Kinderzimmer, Büro oder gemütlicher Rückzugsort. Dieses Haus überzeugt durch klare Architektur, durchdachten Raumfluss und helle, offene Räume – perfekt für modernes Familienleben.
So funktioniert es
- Alle neuen Anzeigen matchen wir kostenlos mit Deinen Suchparametern.
- Passende Angebote senden wir Dir in einer E-Mail pro Tag.
- Du kannst auch verschiedene Suchen anlegen und Dich jederzeit abmelden. Mehr dazu
Wir haben soeben eine E-Mail mit Deinem Suchauftrag an Dich geschickt. – Klicke in dieser Mail auf den Bestätigungslink und schon geht's los. Prüfe ggf. auch Deinen Spamordner.
Es gab ein Problem beim Absenden Deiner E-Mail-Adresse. Bitte versuche es erneut.
WARNUNG: Bitte bestätige Deine E-Mail-Adresse, um regelmäßige Updates zu erhalten.