Objektdaten
Objektbeschreibung
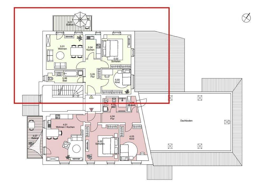
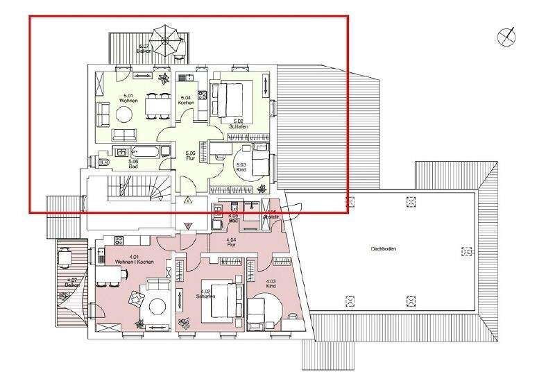
Zum Verkauf steht eine ca. 76 m² große 3-Zimmer-Wohnung im 1. Obergeschoss eines Mehrfamilienhauses.Der Verkäufer plant eine Kernsanierung der Immobilie. Vorgesehen ist der Umbau zu 7 3- bzw. 3,5-Raum Wohnungen mit Balkonen/Terrassen und Wohnflächen von ca. 66 m² bis ca. 135 m². Im Rahmen dieser Planung sind auch 6 Außenstellplätze berücksichtigt. 3 Wohnungen erhalten zusätzlich eine befestigte Außenterrasse mit mind. 10 m² und eine eigene Gartenfläche.Der Baubeginn erfolgt nach dem Verkauf und es wird mit einer Bauzeit von etwa 12 Monaten kalkuliert. Somit hat der Erwerber die Möglichkeit seine eigenen Ideen und Vorstellungen zur Ausstattung in Absprache mit dem Projektentwickler umzusetzen.Ein Außenstellplatz muss für 8.000,00 € zusätzlich erworben werden.Bei Interesse stimmen wir gern einen Besichtigungstermin ab bzw. stellen Ihnen weiterführende Unterlagen zur Verfügung.Der Erwerb der Liegenschaft ist für Sie provisionsfrei.Weitere interessante Angebote können Sie gern unter www.der-immo-tip.de anschauen.So funktioniert es
- Alle neuen Anzeigen matchen wir kostenlos mit Deinen Suchparametern.
- Passende Angebote senden wir Dir in einer E-Mail pro Tag.
- Du kannst auch verschiedene Suchen anlegen und Dich jederzeit abmelden. Mehr dazu




