Kaufpreis 320.000 €
Zimmer 5
24768 Rendsburg
Objektdaten
Veröffentlicht am: 10. Oktober 2025
Energieausweis: Liegt bei der Besichtigung vor
Danke! Bitte bestätige Deine E-Mail-Adresse – wir haben Dir soeben eine Mail geschickt.
Es gab ein Problem beim Absenden. Bitte versuche es erneut.
Bitte bestätige Deine E-Mail-Adresse, um Updates zu erhalten.
Objektbeschreibung
Objektbeschreibung
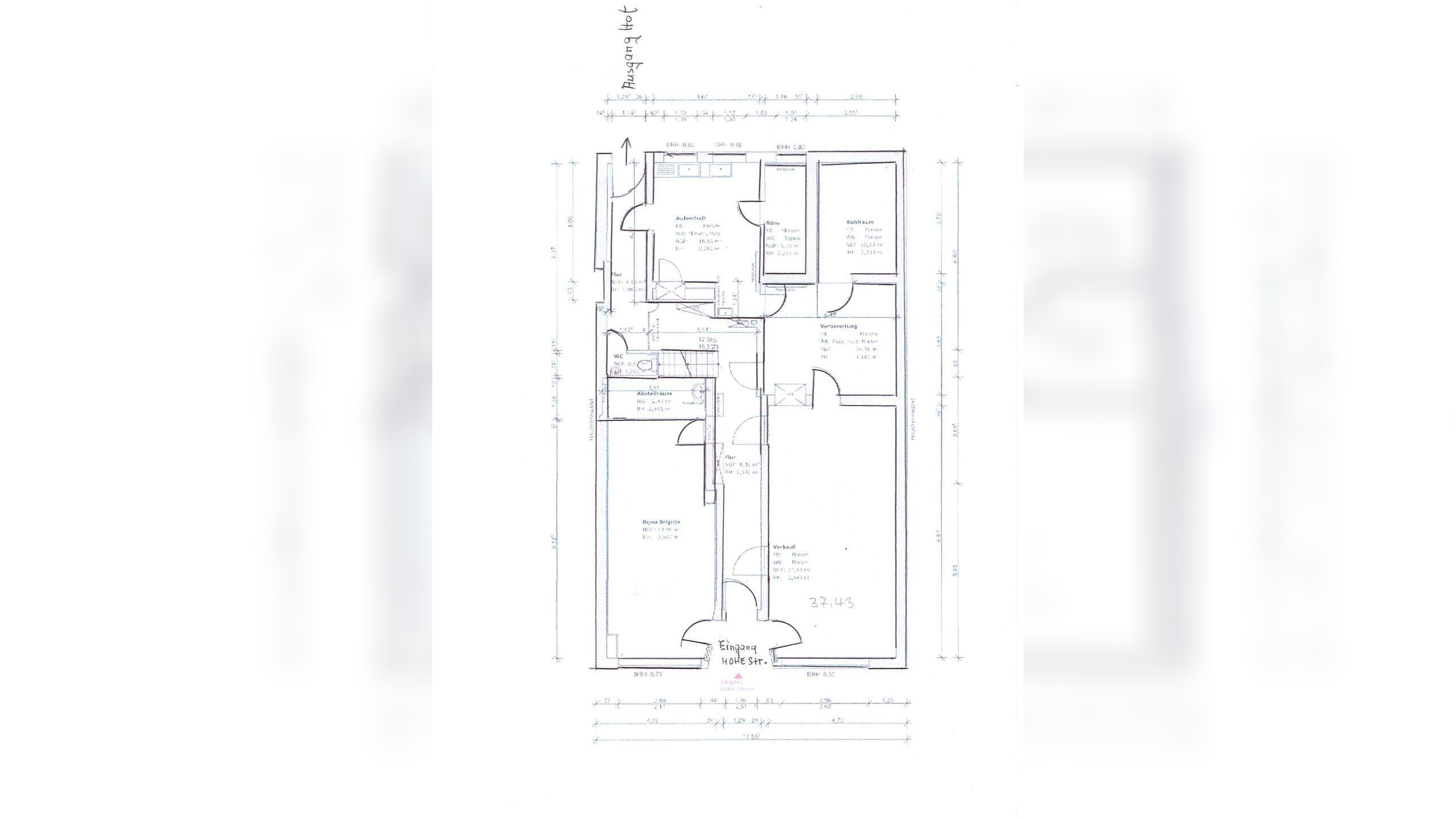
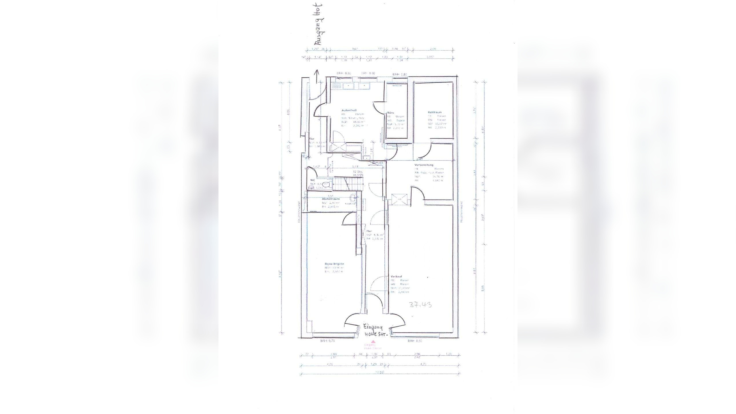
Es handelt sich sanierungsfälliges Wohn- und Geschäftshaus aus dem Jahr 1907. Die Substanz des Gebäudes ist gut. Die Verkaufsflächen im Erdgeschoss wurden entkernt, weil eine Zusammenlegung beider Flächen geplant war.Auf der rechten Seite des Hauses befand sich ein Schmuckgeschäft ca. 40 m², auf der linken Seite ein Schlachtereigeschäft mit ca. 84 m.Durch die Zusammenlegung war eine Nettofläche von 100 m² geplant! Im Obergeschoss befinden sich 2 Wohnungen, 1 Wohnung ist noch vermietet, die Deckenhöhe ist eingeschränkt! Beide Wohnungen sind ausbaufähig!
Raumaufteilung
Bei einer Flächenerweiterung Erdgeschoss, kann die Treppe zu den Wohnungen im hinteren Teil des Gebäudes verlegt werden.Fordern Sie für weitere Informationen unser Exposè an.Ehemaliger Grundriss Erdgeschoss siehe Objektangebot!
So funktioniert es
- Alle neuen Anzeigen matchen wir kostenlos mit Deinen Suchparametern.
- Passende Angebote senden wir Dir in einer E-Mail pro Tag.
- Du kannst auch verschiedene Suchen anlegen und Dich jederzeit abmelden. Mehr dazu
Wir haben soeben eine E-Mail mit Deinem Suchauftrag an Dich geschickt. – Klicke in dieser Mail auf den Bestätigungslink und schon geht's los. Prüfe ggf. auch Deinen Spamordner.
Es gab ein Problem beim Absenden Deiner E-Mail-Adresse. Bitte versuche es erneut.
WARNUNG: Bitte bestätige Deine E-Mail-Adresse, um regelmäßige Updates zu erhalten.