Objektdaten
Objektbeschreibung
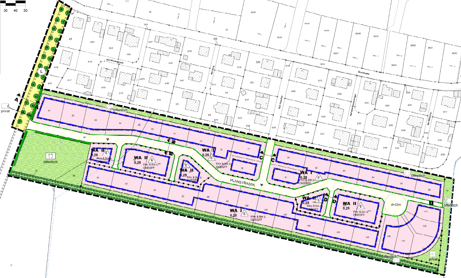
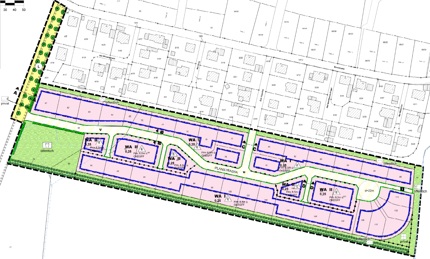
Der Bebauungsplan Nr. 8In der Gemeinde Göhl, 23758, befindet sich ein neues Baugebiet mit 40 Baugrundstücken. Dieses Gebiet liegt in einer ruhigen und grünen Umgebung und bietet eine ideale Wohnlage für Familien und Einzelpersonen. Die Grundstücke sind großzügig geschnitten und ermöglichen individuelle Gestaltungsmöglichkeiten, von eingeschossiger bis zweigeschossiger Bauweise. Das Baugebiet bietet Grundstücksgrößen ab ca. 605 bis ca. 974 m² an.Das Baugebiet ist gut an das öffentliche Verkehrsnetz angebunden, mit nahegelegenen Einkaufsmöglichkeiten, Schulen, Kindergärten und Freizeiteinrichtungen. Die Anbindung an Autobahnen und öffentliche Verkehrsmittel erleichtert den Zugang zu umliegenden Städten.Ähnliche Angebote
So funktioniert es
- Alle neuen Anzeigen matchen wir kostenlos mit Deinen Suchparametern.
- Passende Angebote senden wir Dir in einer E-Mail pro Tag.
- Du kannst auch verschiedene Suchen anlegen und Dich jederzeit abmelden. Mehr dazu




