Objektdaten
Objektbeschreibung
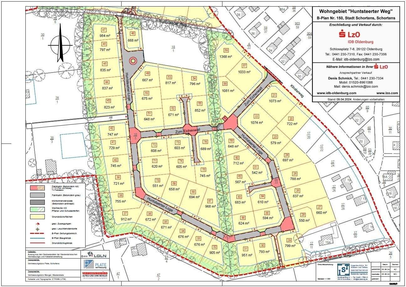
Die Nachfrage im benachbarten Neubaugebiet Diekenkamp war sehr groß. Insofern freuen wir uns, dass wir Ihnen im ersten Vermarktungsabschnitt des Neubaugebietes "Huntsteerter Weg" weitere 57 Grundstücke in zentrumsnaher Lage zur Erfüllung Ihres Wohntraums anbieten können.Die zu erhaltenen Grünzüge und die harmonische Einbettung in die vorhandene Siedlungsstruktur erzielen Wohnqualität von Anfang an. Moderne Bauformen und klassische Stile sind gleichermaßen möglich.Sie finden nicht nur das komplette Versorgungsangebot, sondern auch Einrichtungen für Bildung, Kultur und Sport im Stadtgebiet von Schortens oder im nahen Wilhelmshaven. Durch die sehr gute Verkehrsanbindung ist das Oberzentrum Wilhelmshaven in wenigen Autominuten erreichbar.Überzeugen Sie sich von der idealen Lage und dem familienfreundlichen Umfeld.Ähnliche Angebote
So funktioniert es
- Alle neuen Anzeigen matchen wir kostenlos mit Deinen Suchparametern.
- Passende Angebote senden wir Dir in einer E-Mail pro Tag.
- Du kannst auch verschiedene Suchen anlegen und Dich jederzeit abmelden. Mehr dazu




