Bremen Borgfeld Traumlage: Erschlossenes Baugrundstück für EFH mit Doppelgarage (Bauträgerfrei)
Kaufpreis 440.000 €
28357 Bremen
Objektdaten
Veröffentlicht am: 17. Oktober 2025
Frei ab: 1. Mai 2026
Danke! Bitte bestätige Deine E-Mail-Adresse – wir haben Dir soeben eine Mail geschickt.
Es gab ein Problem beim Absenden. Bitte versuche es erneut.
Bitte bestätige Deine E-Mail-Adresse, um Updates zu erhalten.
Objektbeschreibung
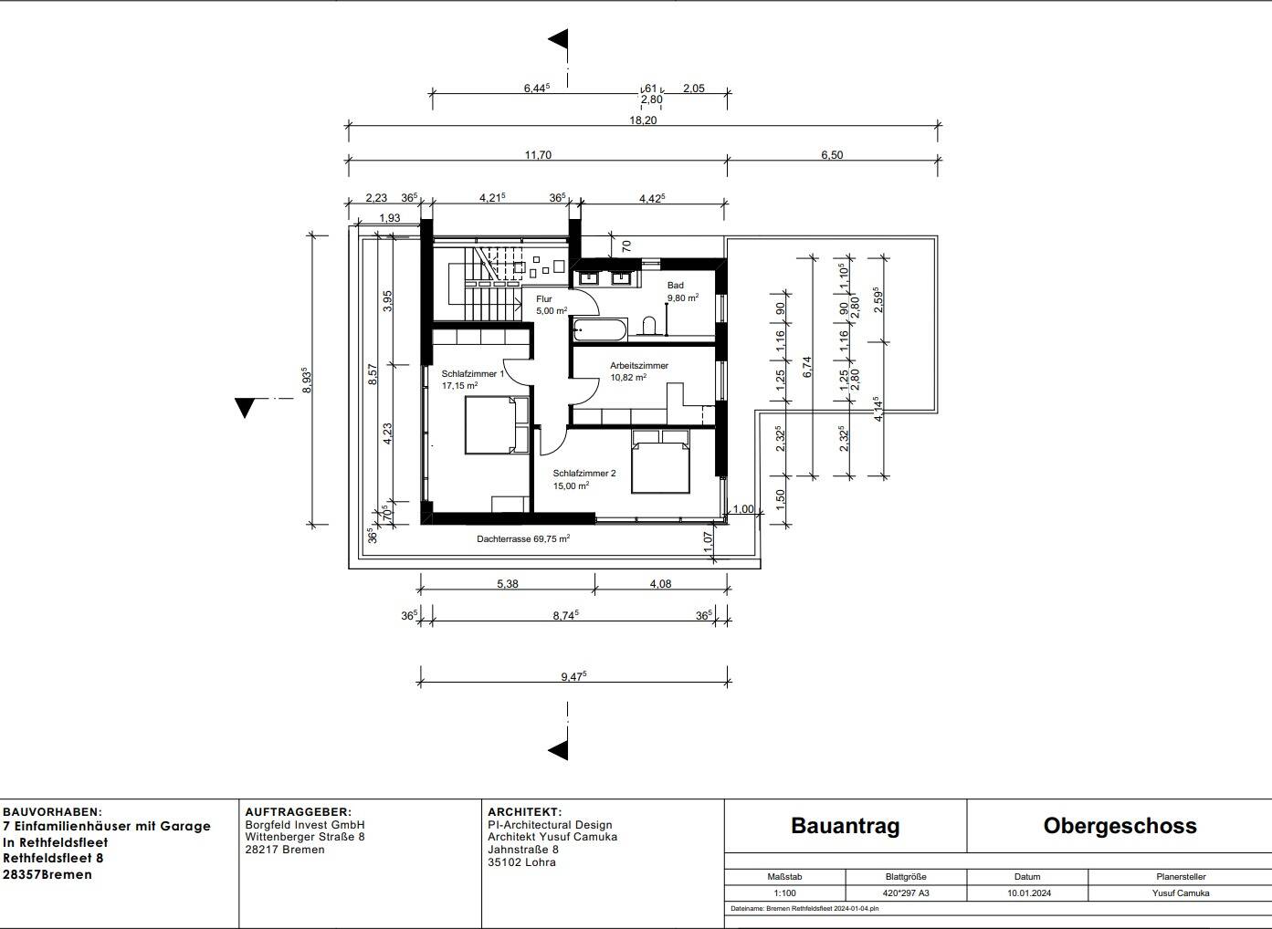
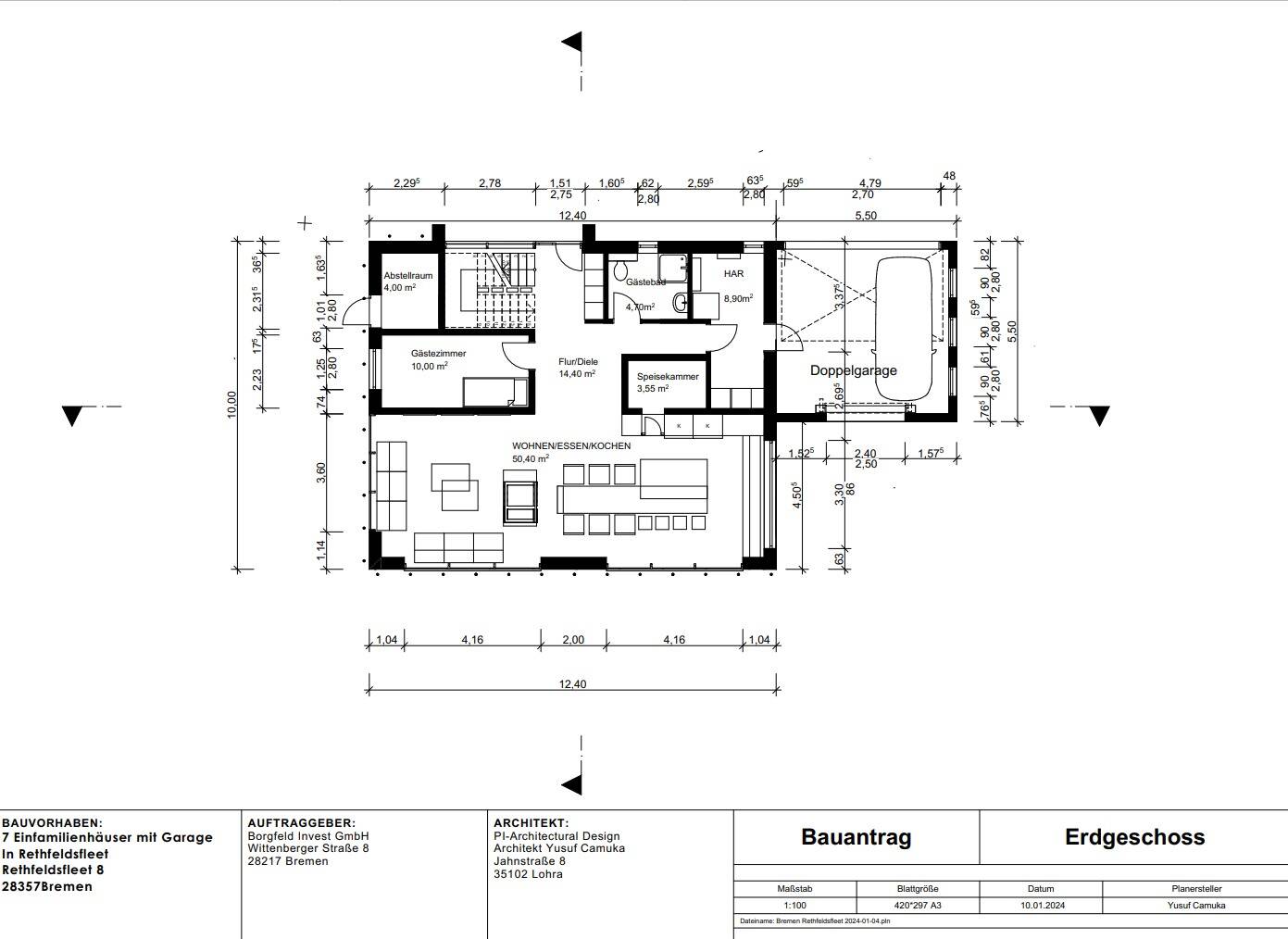
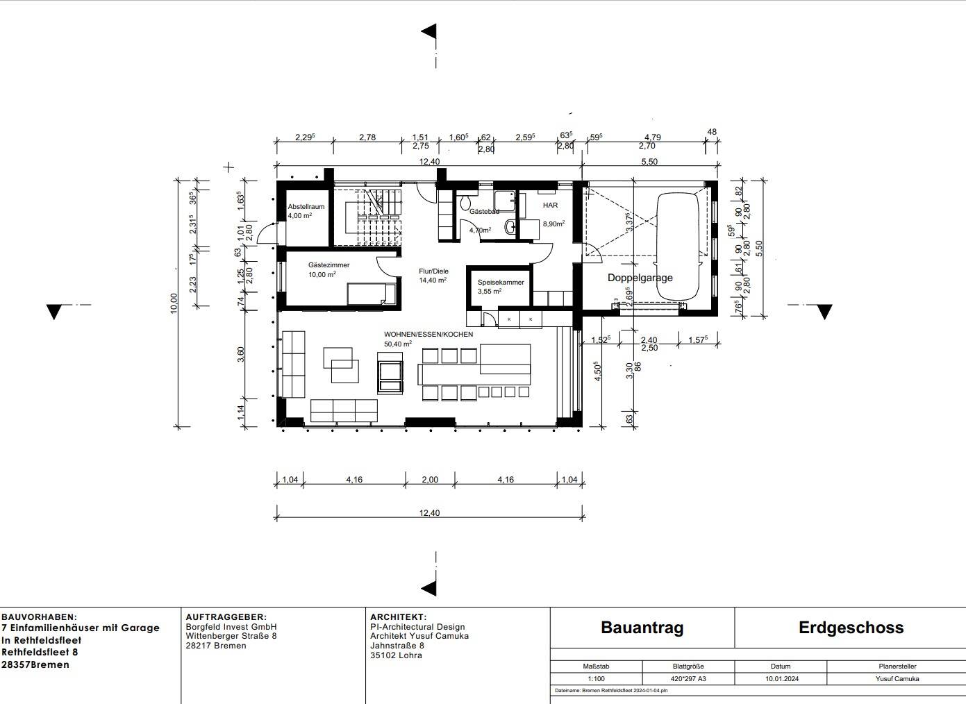
Das angebotenen Baugrundstück für ein großzügiges Einfamilienhaus mit Doppelgarage und einer großzügigen Grundstücksfläche von 849 Quadratmetern, ist eins von sieben Grundstücken, welche zum Verkauf stehen.. Das Grundstück befindet sich in einer ruhigen und gut angebundenen Gegend, ideal für den Bau eines neuen Wohnhauses. Die Umgebung bietet viel Platz und Grünflächen, perfekt für Familien oder Paare, die sich nach einem idyllischen Zuhause in einer exponierten Lage sehnen.Das Grundstück bietet ausreichend Platz für den Bau eines geräumigen Einfamilienhauses mit Doppelgarage. Durch die großzügige Fläche lassen sich sowohl Wohn- als auch Gartenbereiche nach individuellen Wünschen gestalten. Die Umgebung ist geprägt von einer angenehmen Nachbarschaft und einer guten Infrastruktur, was das Grundstück zu einem attraktiven Ort für den Bau eines Eigenheims macht.Die bereits erteilte Baugenehmigung erlaubt den Bau eines großzügigen freistehenden Einfamilienhauses mit einer Wohnfläche von ca. 200 m² Wohnfläche zzgl. Nutzfläche und einer sehr geräumigen Doppelgarage.In der näheren Umgebung finden sich Einkaufsmöglichkeiten, Schulen und öffentliche Verkehrsmittel, die eine gute Anbindung an die umliegenden Städte garantieren. Die Natur in der Umgebung lädt zu Spaziergängen und Erholung ein und bietet somit ein harmonisches Lebensumfeld. Das Grundstück bietet die ideale Basis für Bauherren, die ihren Traum vom Eigenheim verwirklichen möchten, sowie für Investoren, die nach einer attraktiven Bauparzelle suchen.
Alle neuen Anzeigen matchen wir kostenlos mit Deinen Suchparametern.
Passende Angebote senden wir Dir in einer E-Mail pro Tag.
Du kannst auch verschiedene Suchen anlegen und Dich jederzeit abmelden. Mehr dazu
Wir haben soeben eine E-Mail mit Deinem Suchauftrag an Dich geschickt. – Klicke in dieser Mail auf den Bestätigungslink und schon geht's los. Prüfe ggf. auch Deinen Spamordner.
Es gab ein Problem beim Absenden Deiner E-Mail-Adresse. Bitte versuche es erneut.
WARNUNG: Bitte bestätige Deine E-Mail-Adresse, um regelmäßige Updates zu erhalten.
Sie sehen gerade einen Platzhalterinhalt von Turnstile. Um auf den eigentlichen Inhalt zuzugreifen, klicken Sie auf die Schaltfläche unten. Bitte beachten Sie, dass dabei Daten an Drittanbieter weitergegeben werden.
Sie sehen gerade einen Platzhalterinhalt von Vimeo. Um auf den eigentlichen Inhalt zuzugreifen, klicken Sie auf die Schaltfläche unten. Bitte beachten Sie, dass dabei Daten an Drittanbieter weitergegeben werden.
Sie sehen gerade einen Platzhalterinhalt von YouTube. Um auf den eigentlichen Inhalt zuzugreifen, klicken Sie auf die Schaltfläche unten. Bitte beachten Sie, dass dabei Daten an Drittanbieter weitergegeben werden.
Sie sehen gerade einen Platzhalterinhalt von Turnstile. Um auf den eigentlichen Inhalt zuzugreifen, klicken Sie auf die Schaltfläche unten. Bitte beachten Sie, dass dabei Daten an Drittanbieter weitergegeben werden.