Kaufpreis 98.312 €
07613 Silbitz
Objektdaten
Veröffentlicht am: 17. Oktober 2025
Danke! Bitte bestätige Deine E-Mail-Adresse – wir haben Dir soeben eine Mail geschickt.
Es gab ein Problem beim Absenden. Bitte versuche es erneut.
Bitte bestätige Deine E-Mail-Adresse, um Updates zu erhalten.
Objektbeschreibung
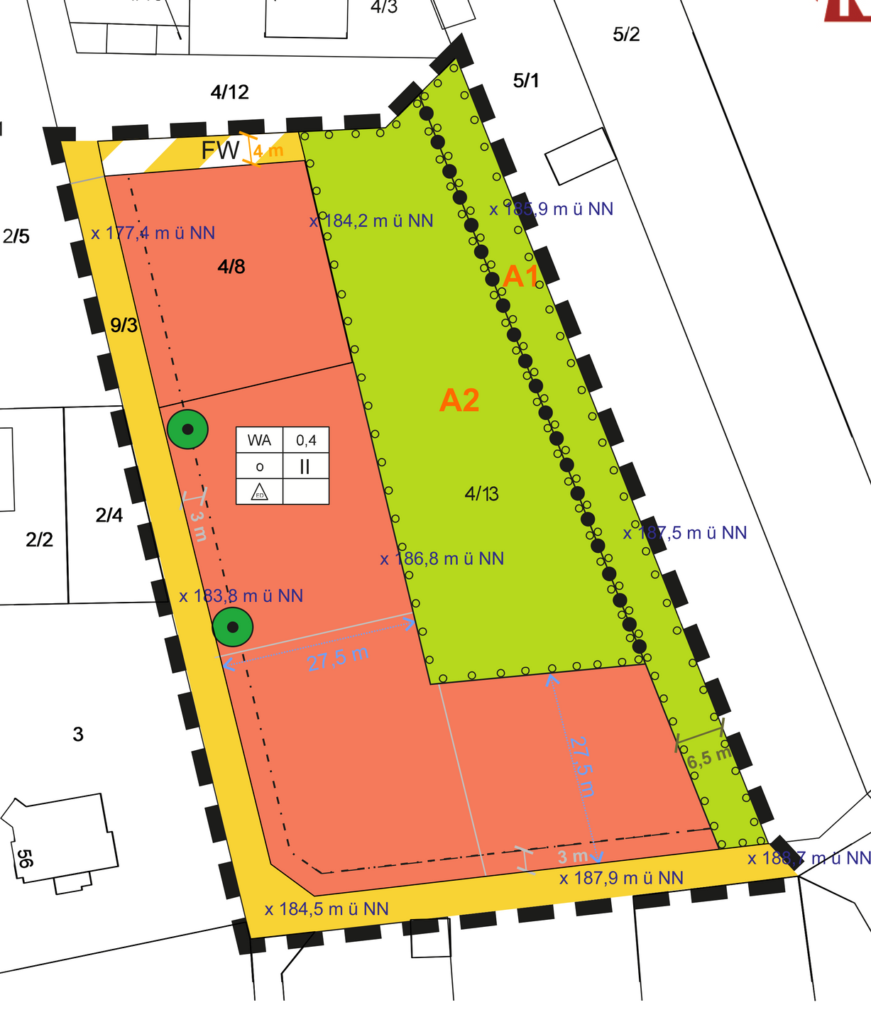
In ruhiger Lage am nördlichen Ortsrand von Silbitz, an der Tauchlitzer Straße gelegen, werden im Anschluss an das bestehende Einfamilienhaus-Wohngebiet "Die Neuscheffelsfelder II" weitere 10 Einfamilienhausgrundstücke entwickelt, deren Ver- und Entsorgung durch die örtlichen Unternehmen bestätigt wurden.Die Grundstücke werden im Westen durch eine Böschung begrenzt, die nicht zum Plangebiet gehört. Die Grundstücke dürfen im vorgesehenen reinen Wohngebiet (WR) zu 40% ihrer Fläche überbaut werden mit Einfamilien- und Doppelhäusern mit maximal 2 Vollgeschossen und einer Firsthöhe vom max. 9,0 m. Die Baugrundstücke weisen eine Größe von 561m² bis 715m² auf und können selbstverständlich auch zusammen gelegt Verkauft werden."Du wohnst so, wie du lebst." - Klingberg Immobilien GmbH
So funktioniert es
- Alle neuen Anzeigen matchen wir kostenlos mit Deinen Suchparametern.
- Passende Angebote senden wir Dir in einer E-Mail pro Tag.
- Du kannst auch verschiedene Suchen anlegen und Dich jederzeit abmelden. Mehr dazu
Wir haben soeben eine E-Mail mit Deinem Suchauftrag an Dich geschickt. – Klicke in dieser Mail auf den Bestätigungslink und schon geht's los. Prüfe ggf. auch Deinen Spamordner.
Es gab ein Problem beim Absenden Deiner E-Mail-Adresse. Bitte versuche es erneut.
WARNUNG: Bitte bestätige Deine E-Mail-Adresse, um regelmäßige Updates zu erhalten.