Kaufpreis 199.000 €
89343 Jettingen-Scheppach
Objektdaten
Veröffentlicht am: 17. Oktober 2025
Danke! Bitte bestätige Deine E-Mail-Adresse – wir haben Dir soeben eine Mail geschickt.
Es gab ein Problem beim Absenden. Bitte versuche es erneut.
Bitte bestätige Deine E-Mail-Adresse, um Updates zu erhalten.
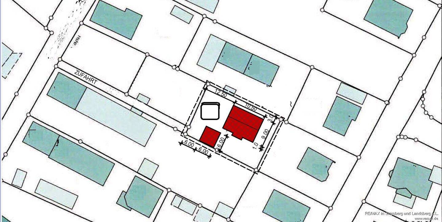
Objektbeschreibung
Hammer! Grundstück - Baugrund zwischen Ulm und Augsburg: Voll erschlossen, ruhige Lage, Bahnanschluß, zum Top Preis.Baugrund mit Ausrichtung nach Süd-Westen hin, voll erschlossen in Jettingen-Scheppach, OT Freihalden.Erfüllen Sie sich den Traum vom neu gebauten Eigenheim im Grünen, im Raum Günzburg. Starten Sie durch: baureifes Land, voll erschlossen, Genehmigter Bescheid (Antrag auf Vorbescheid für ein Ein-Familien-Haus) liegt vor.Hierfür haben wir den passenden Baugrund für Sie.Wohnen abseits des Großstadtrummels => Bauland ab mit 715 m² für Wohnhaus-Bebauung inkl. Zuwegung.Der Baugrund befindet sich im Ortsteil Freihalden der Gemeinde Jettingen-Scheppach im Landkreis Günzburg.Das Bau-Flurstück hat eine Gesamtgröße von ca. 632 m², die gem. Umgebungsbebauung mit mindestens einem Ein-Familien-Haus bebaubar ist. Hinzukommt ein 50%-Anteil an der 165 m² großen Zufahrt.Bebauung möglich mit EFH oder als DHH (ab 278 m² Grund, Wfl. ca. 160 m², KG*, EG und ausgebautem DG (als Vollgeschoss möglich nach derzeitigem Planungsstand als Ein-Familien-Haus). Grundlage für die Bebauung ist §34 BauGB (Orientierung an der Umgebungsbebauung). Platz für Doppelgarage bzw. Carport sowie ausreichende Stellplätze ist auch schon eingeplant und vorhanden.*.) KG Kellergeschoß: statisch bei dieser Immobilie nicht notwendig, da keine HanglageBei weiterem Interesse lassen wir Ihnen gerne die weiteren Planunterlagen zukommen. Genehmigter Vorbescheid für EFH-Bebauung liegt vor. Melden Sie sich einfach über das Kontaktformular bei uns.
So funktioniert es
- Alle neuen Anzeigen matchen wir kostenlos mit Deinen Suchparametern.
- Passende Angebote senden wir Dir in einer E-Mail pro Tag.
- Du kannst auch verschiedene Suchen anlegen und Dich jederzeit abmelden. Mehr dazu
Wir haben soeben eine E-Mail mit Deinem Suchauftrag an Dich geschickt. – Klicke in dieser Mail auf den Bestätigungslink und schon geht's los. Prüfe ggf. auch Deinen Spamordner.
Es gab ein Problem beim Absenden Deiner E-Mail-Adresse. Bitte versuche es erneut.
WARNUNG: Bitte bestätige Deine E-Mail-Adresse, um regelmäßige Updates zu erhalten.