Objektdaten
Objektbeschreibung
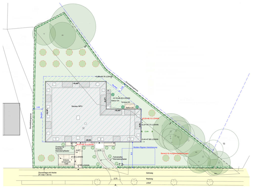
Der Kaufpreis von 5.700.000,00 € setzt sich zusammen aus:- Grundstückspreis inkl. Kaufnebenkosten- kalkulierte Entstehungskosten für das Projekt laut BauvertragDas Grundstück verfügt über eine Gesamtfläche von ca. 3.729 qm, wovon momentan eine Fläche von ca. 1.497 qm zur Bebauung mit einem Wohn- und Geschäftshaus genutzt werden kann. Die Baugenehmigung hierfür richtet sich nach dem aktuellen B-Plan und liegt vor:- realisierbare Fläche (Baugenehmigung) ca. 1.772 qm BGF- 5 Gewerbeeinheiten- 10 Wohneinheiten- TiefgarageNach Rücksprache mit dem Architekturbüro kann für die geplante Bebauung eine Änderungsgenehmigung mit nachfolgenden Inhalten beantragt werden:- Aufstockung des Gebäudes auf insgesamt 4 Etagen und Verzicht auf die bauliche Umsetzung der Tiefgarage- Nachweis von 15 Außenstellplätzen auf dem Grundstück - Nutzung für betreutes Wohnen- 5 Gewerbeeinheiten (Büro-/Serviceflächen)- 15 WohneinheitenEin Betreiber hat für das o. g. Vorhaben bereits direktes Interesse bekundet (Jahresnettokaltmiete ca. 331.046,00 € = 20,00 €/qm zzgl. Stellplätze, Laufzeit nach Absprache).Ein Bauvertrag für die Realisierung des Projektes kann auf Wunsch ebenfalls vermittelt werden [...]Ein ausführliches Exposé erhalten Sie auf Anfrage.So funktioniert es
- Alle neuen Anzeigen matchen wir kostenlos mit Deinen Suchparametern.
- Passende Angebote senden wir Dir in einer E-Mail pro Tag.
- Du kannst auch verschiedene Suchen anlegen und Dich jederzeit abmelden. Mehr dazu




