Objektdaten
Objektbeschreibung
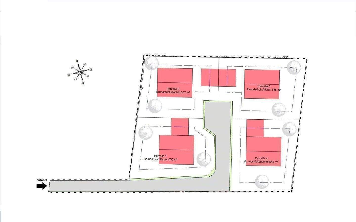
Das Grundstück hat eine Gesamtgröße von 9.739 m². Ein gültiger B-Plan liegt nicht vor. Laut Auskunft der Stadt ist die Fläche im Flächennutzungsplan für Wohnbebauung vorgesehen.So funktioniert es
- Alle neuen Anzeigen matchen wir kostenlos mit Deinen Suchparametern.
- Passende Angebote senden wir Dir in einer E-Mail pro Tag.
- Du kannst auch verschiedene Suchen anlegen und Dich jederzeit abmelden. Mehr dazu




