Objektdaten
Objektbeschreibung
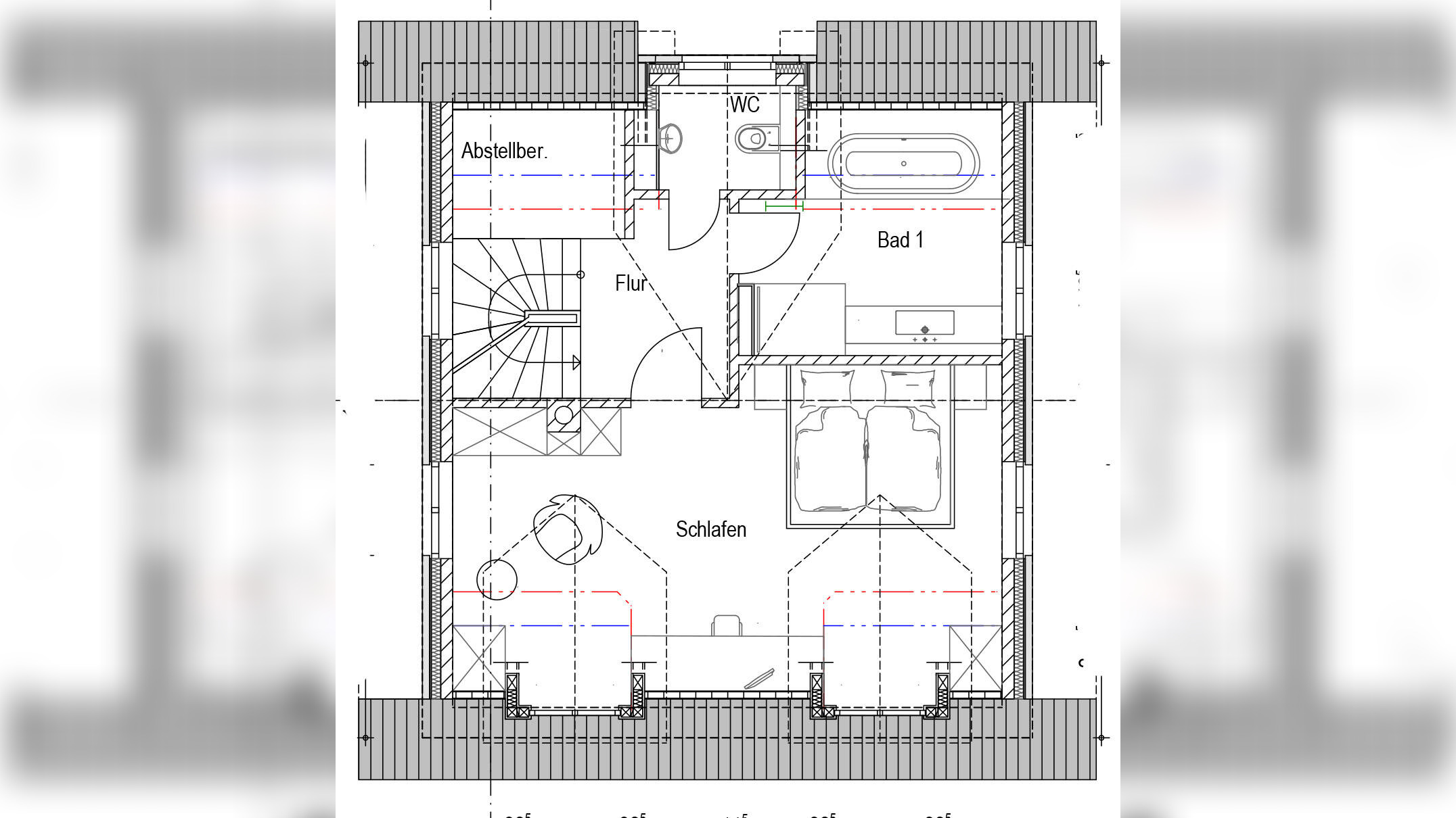
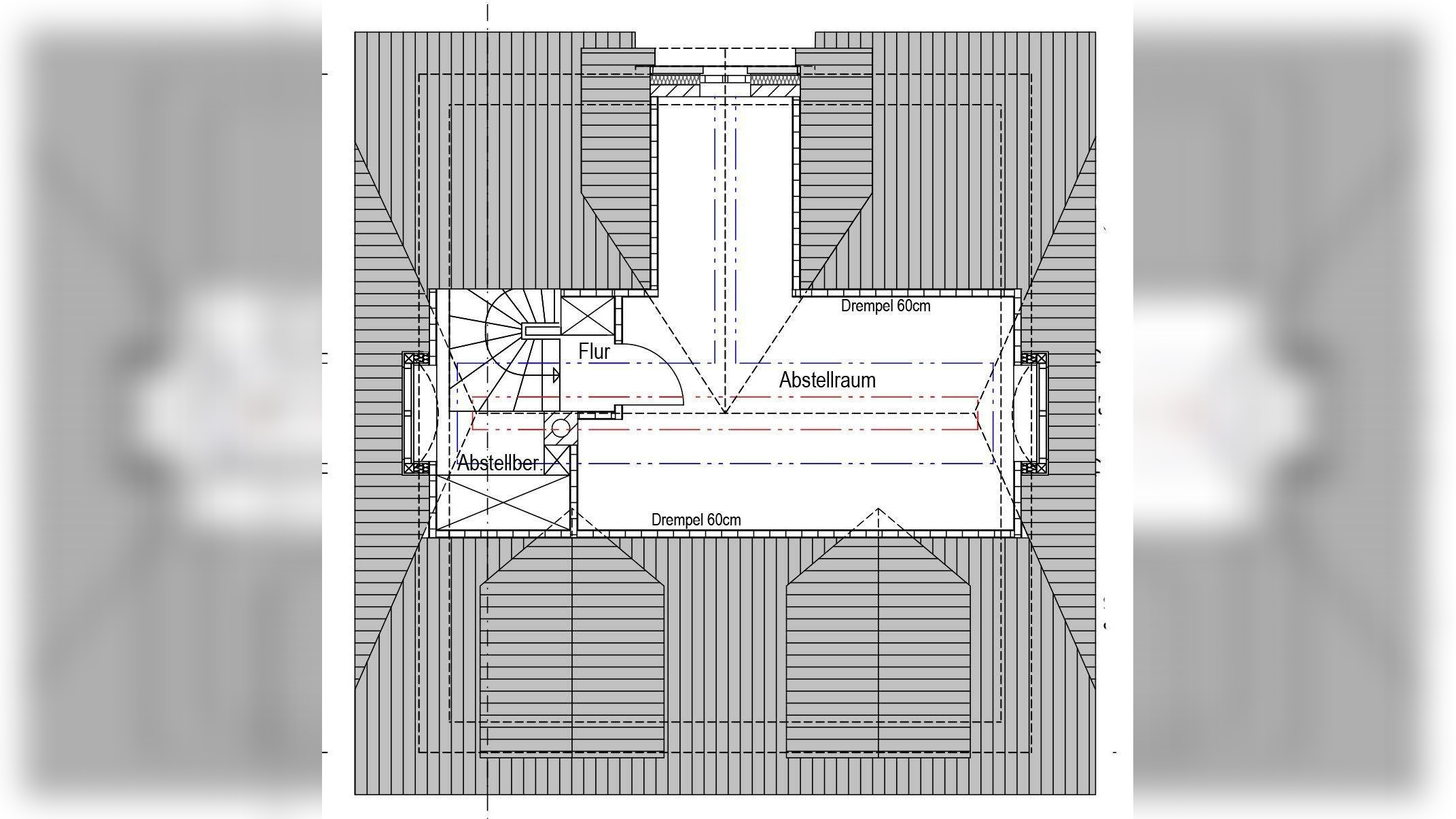
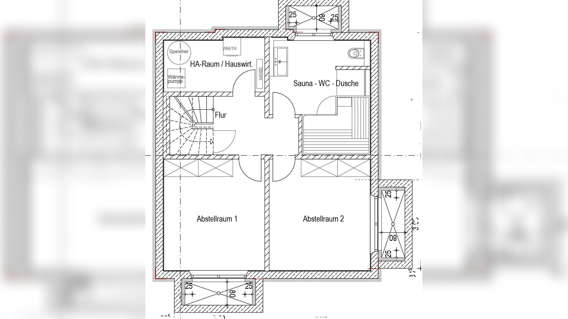
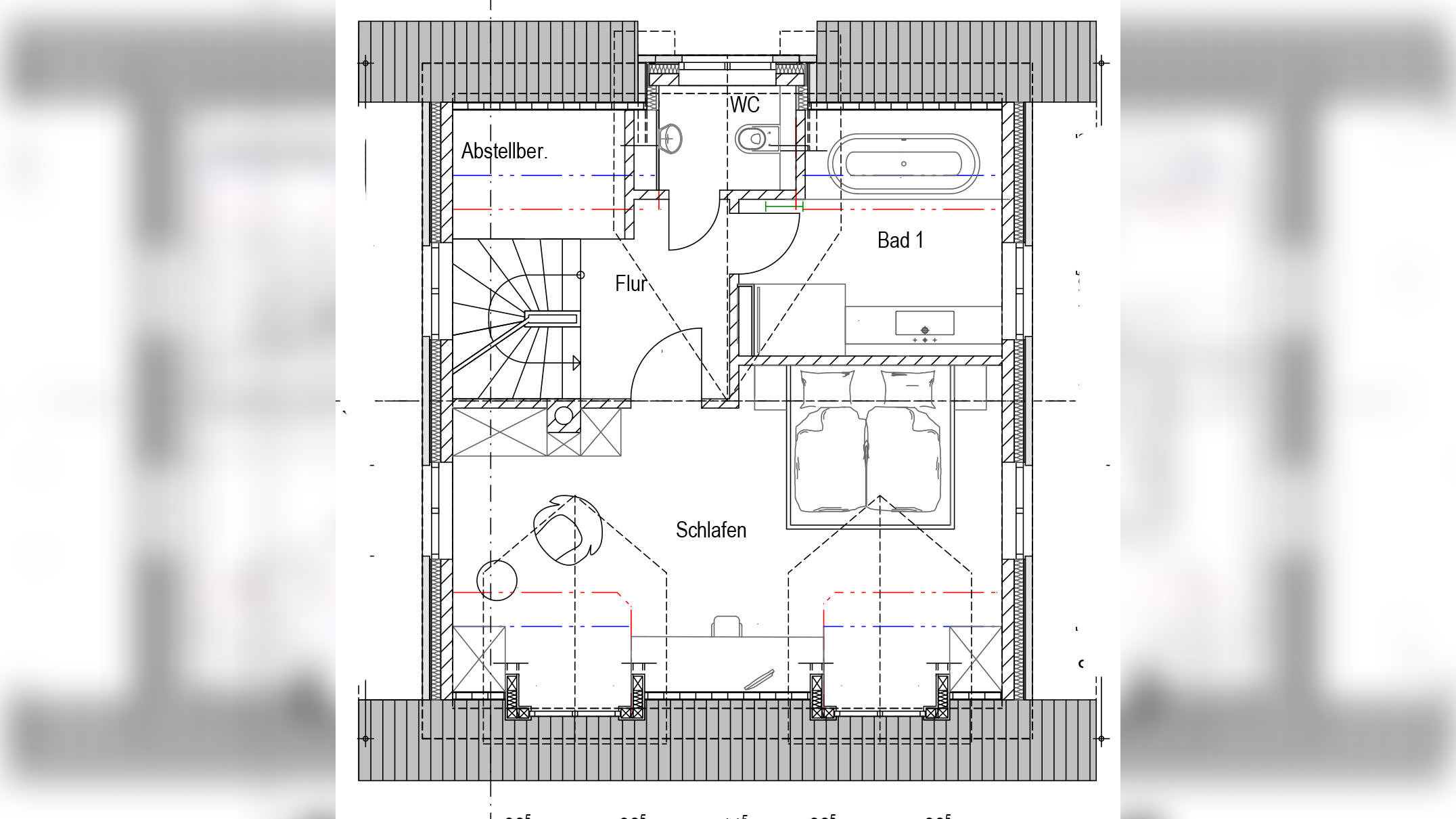
Beschreibung möglicher Neubau:Es gibt eine Baugenehmigung für den Neubau von zwei Wohngebäuden, jeweils mit einer Wohneinheit, sowie die Errichtung von zwei Pkw-Stellplätzen. Die Häuser umfassen eine geplante Bebauung von je 175 m² Gesamtfläche.Beide Wohneinheiten sind identisch geschnitten und überzeugen durch eine helle und großzügige Raumaufteilung.Der Preis pro Grundstück beträgt 1.200.000,- €Kein Energieausweis vorhanden / in Vorbereitung.Ähnliche Angebote
So funktioniert es
- Alle neuen Anzeigen matchen wir kostenlos mit Deinen Suchparametern.
- Passende Angebote senden wir Dir in einer E-Mail pro Tag.
- Du kannst auch verschiedene Suchen anlegen und Dich jederzeit abmelden. Mehr dazu

