Kaufpreis 339.000 €
19395 Plau am See
Objektdaten
Veröffentlicht am: 17. Oktober 2025
Danke! Bitte bestätige Deine E-Mail-Adresse – wir haben Dir soeben eine Mail geschickt.
Es gab ein Problem beim Absenden. Bitte versuche es erneut.
Bitte bestätige Deine E-Mail-Adresse, um Updates zu erhalten.
Objektbeschreibung
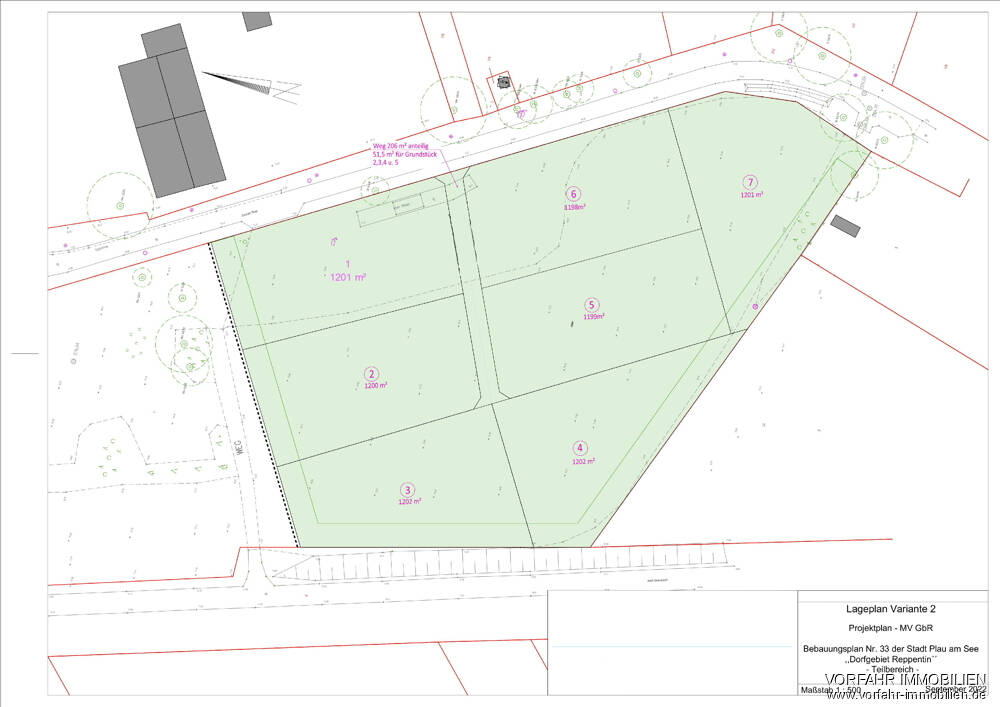
Insgesamt 7 schöne Baugrundstücke in 19395 Plau am See, OT Reppentin.Frische Luft, traumhafte Ruhe, idyllisches Landleben und das nur etwa 10 Minuten (5 km) vom Plauer See und ca. 7 Minuten (4,5 km) vom Plauer Stadtkern entfernt.In einem Baugebiet welches nach dem B-Plan Nr. 33 der Stadt Plau am See, Dorfgebiet Reppentin, mit verschiedenen Haustypen und Nutzungsmöglichkeiten wie z.B. mit Ferienwohnungen, Ein- oder auch Mehrfamilienhäusern bebaut werden kann. Die 7 verfügbaren Baugrundstücke haben eine Größe von jeweils ca. 1.200 m², insgesamt sind es ca. 8.000 m² Bauland. Es können natürlich auch Grundstücke zusammengelegt werden.Sechs Grundstücke verfügen über eine gemeinsame Zufahrt, ein Grundstück erreicht man über eine separate Zufahrt. Angrenzend befindet sich eine ca. 7.000 m² Wiese die Bestens als Pferdkoppel geeignet ist. Die Wiese ist im Kaufpreis bereits enthalten.Es besteht keine Bauträgerbindung. Gerne sind wir Ihnen bei der Suche nach einem Bauträger behilflich.
So funktioniert es
- Alle neuen Anzeigen matchen wir kostenlos mit Deinen Suchparametern.
- Passende Angebote senden wir Dir in einer E-Mail pro Tag.
- Du kannst auch verschiedene Suchen anlegen und Dich jederzeit abmelden. Mehr dazu
Wir haben soeben eine E-Mail mit Deinem Suchauftrag an Dich geschickt. – Klicke in dieser Mail auf den Bestätigungslink und schon geht's los. Prüfe ggf. auch Deinen Spamordner.
Es gab ein Problem beim Absenden Deiner E-Mail-Adresse. Bitte versuche es erneut.
WARNUNG: Bitte bestätige Deine E-Mail-Adresse, um regelmäßige Updates zu erhalten.