Kaufpreis 135.200 €
23715 Bosau
Objektdaten
Veröffentlicht am: 17. Oktober 2025
Danke! Bitte bestätige Deine E-Mail-Adresse – wir haben Dir soeben eine Mail geschickt.
Es gab ein Problem beim Absenden. Bitte versuche es erneut.
Bitte bestätige Deine E-Mail-Adresse, um Updates zu erhalten.
Objektbeschreibung
Kurzbeschreibung
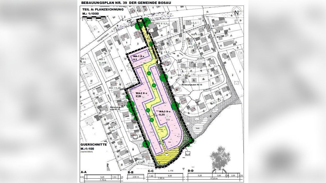
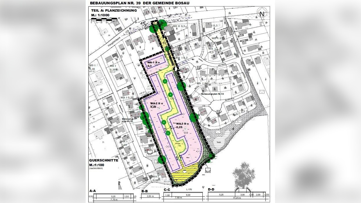
Interessantes Baugrundstück in Hutzfeld
Objekt
Zögern Sie nicht und sichern Sie sich jetzt noch eines der letzten begehrten Grundstücke im neu erschlossenen Baugebiet der Gemeinde Hutzfeld! Der Bebauungsplan Nr. 39 ist rechtskräftig und ermöglicht Ihnen die Verwirklichung Ihres Traumhauses in einer idyllischen Lage mit idealer Ausrichtung nach Südwesten.Die Erschließungsarbeiten sind bereits abgeschlossen, sodass Sie Ihre Wunschimmobilie sofort nach Genehmigung durch die Behörden errichten lassen können. Mehrere Neubauten in dem Baugebiet stehen bereits vor der Fertigstellung.Das gesamte Baugebiet fügt sich harmonisch in die bestehende Nachbarschaft ein, die von bereits realisierten Bauvorhaben geprägt ist. Alle wichtigen Einrichtungen des täglichen Bedarfs, wie ein fußläufig erreichbarer Einkaufsmarkt, befinden sich in unmittelbarer Nähe.Für einen ersten Eindruck präsentieren wir Ihnen hier ein exemplarisches Grundstück, das noch verfügbar ist. Weitere, aber nur noch wenige verfügbare Parzellen stellen wir Ihnen gerne auf Anfrage zur Verfügung. Vereinbaren Sie am besten gleich einen Besichtigungstermin, um sich von der hervorragenden Lage und den Vorzügen dieser Grundstücke persönlich zu überzeugen.Bitte beachten Sie, dass die Kosten für die Hausanschlüsse (z.B. Regenwasser, Frischwasser, Abwasser, Strom) sowie die entsprechenden Genehmigungsgebühren vom Erwerber zu tragen sind. Auch die Übergabeschächte für Wasser und Abwasser sind nicht im Kaufpreis enthalten. Ein Bodengutachten wurde für das gesamte Gebiet erstellt. Wir empfehlen jedoch immer, vor dem Bau ein individuelles Gutachten in Auftrag zu geben.Ein allgemeiner Vertragsentwurf liegt bereits vor und wird Ihnen auf Wunsch gerne zur Verfügung gestellt. Unsere Maklerprovision beträgt 6,0 % inkl. 19,0 % MwSt. auf den beurkundeten Kaufpreis.Sichern Sie sich Ihr Wunschgrundstück und gestalten Sie Ihre Zukunft in Hutzfeld - eine Übergabe erfolgt nach Absprache!
So funktioniert es
- Alle neuen Anzeigen matchen wir kostenlos mit Deinen Suchparametern.
- Passende Angebote senden wir Dir in einer E-Mail pro Tag.
- Du kannst auch verschiedene Suchen anlegen und Dich jederzeit abmelden. Mehr dazu
Wir haben soeben eine E-Mail mit Deinem Suchauftrag an Dich geschickt. – Klicke in dieser Mail auf den Bestätigungslink und schon geht's los. Prüfe ggf. auch Deinen Spamordner.
Es gab ein Problem beim Absenden Deiner E-Mail-Adresse. Bitte versuche es erneut.
WARNUNG: Bitte bestätige Deine E-Mail-Adresse, um regelmäßige Updates zu erhalten.