Objektdaten
Objektbeschreibung
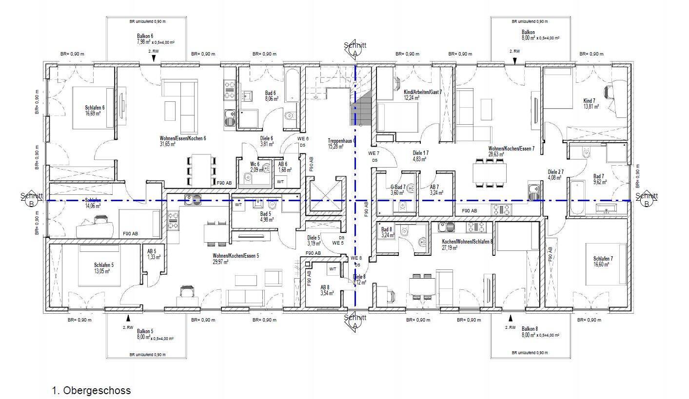
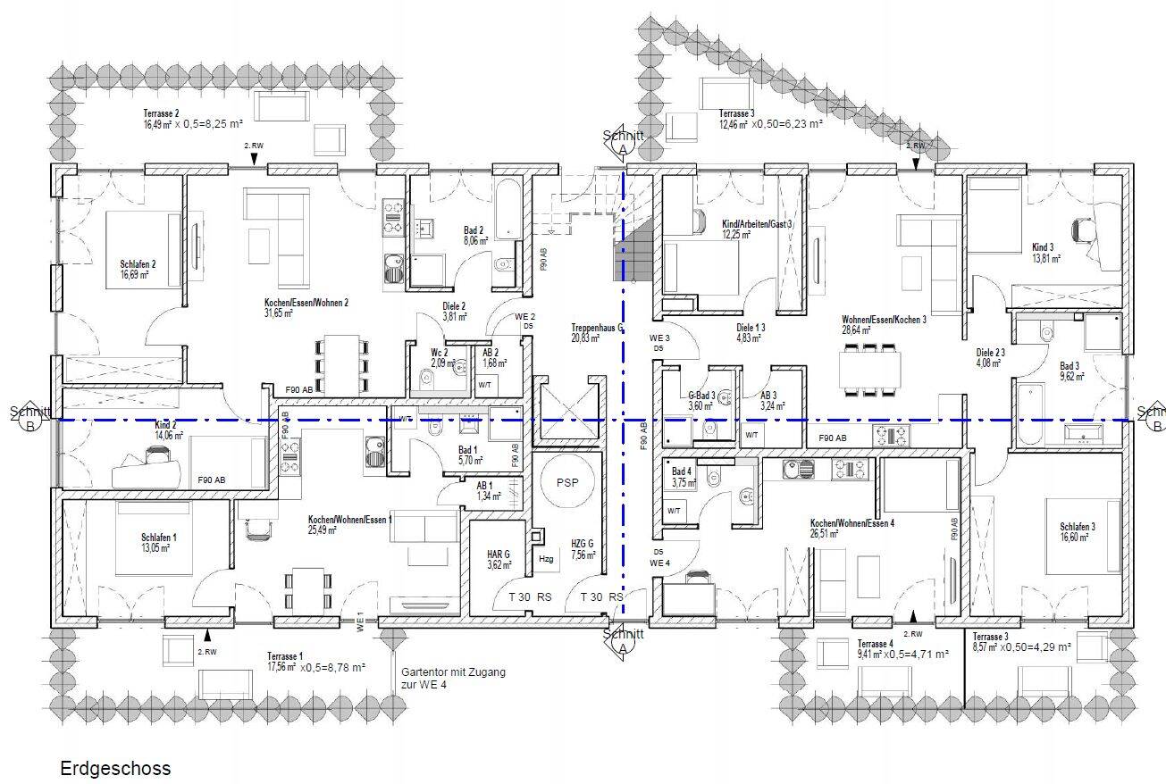
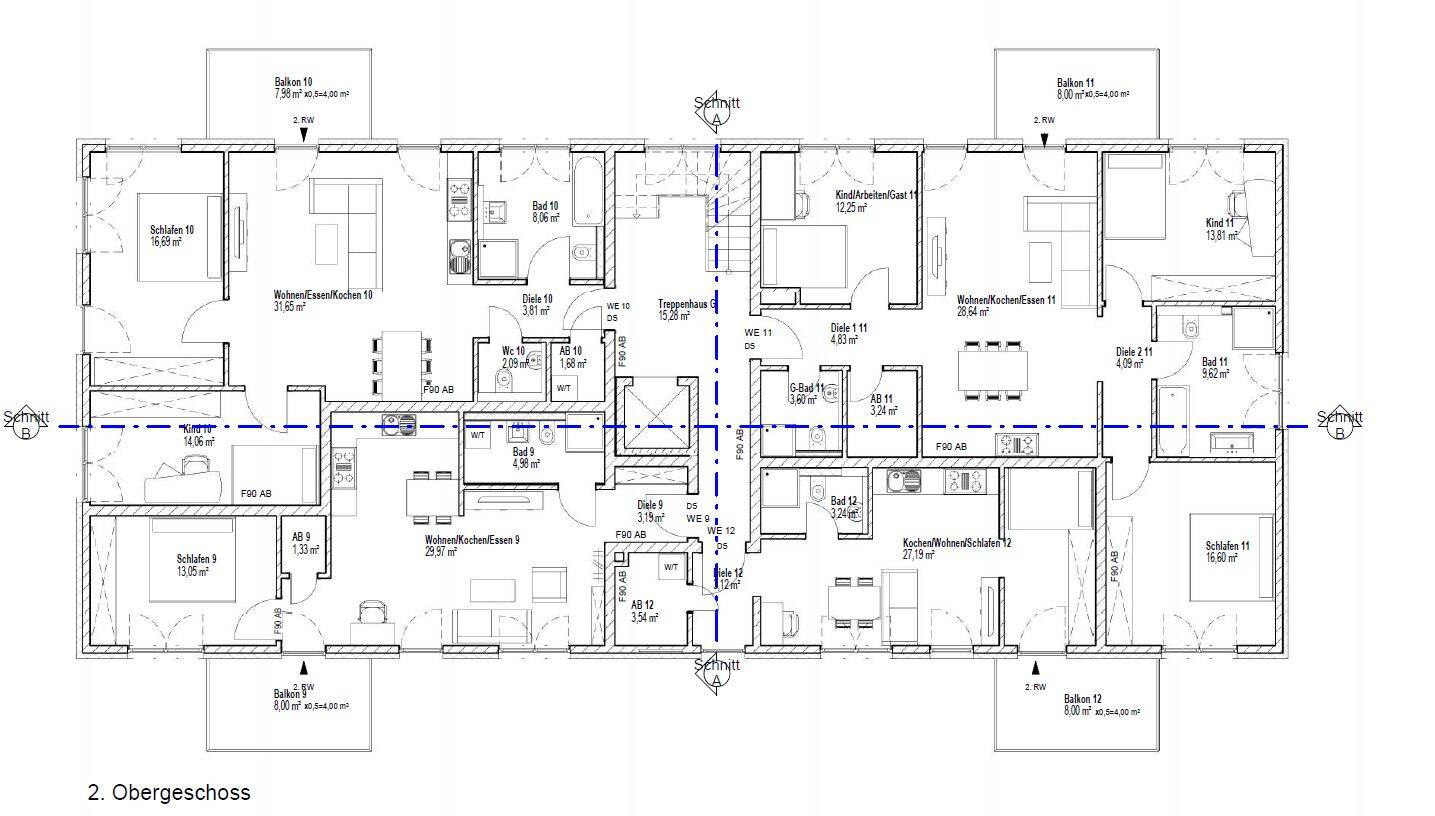
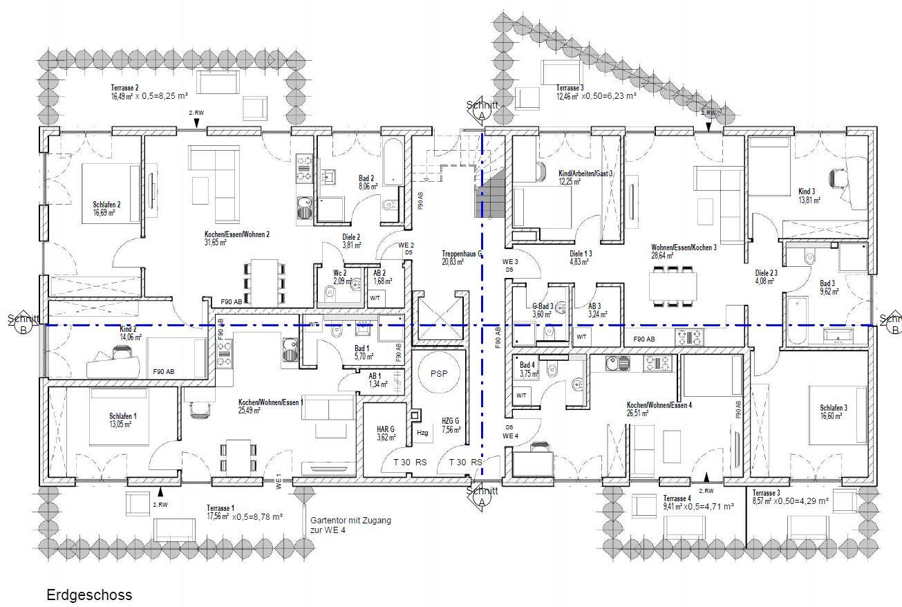
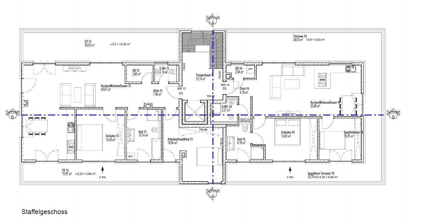
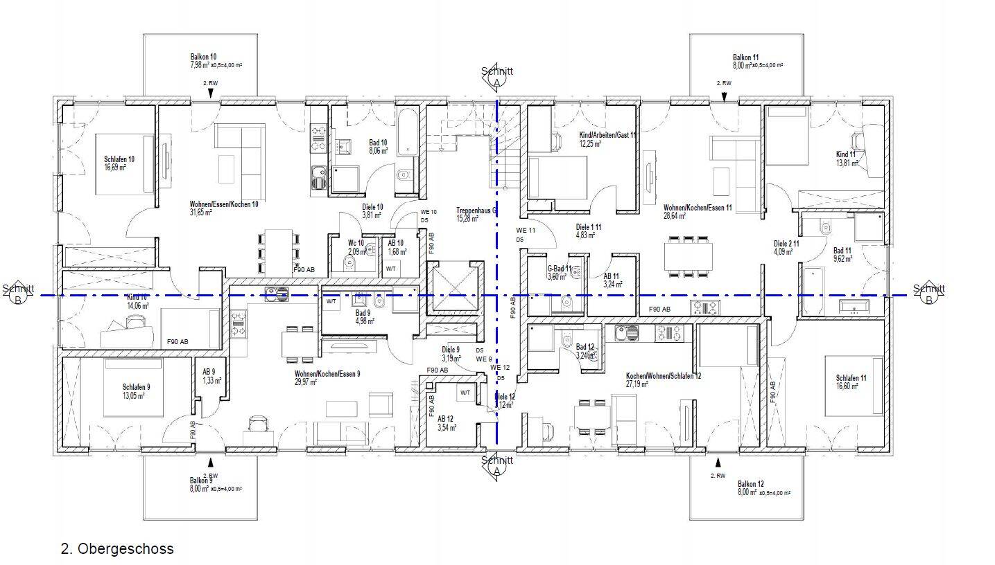
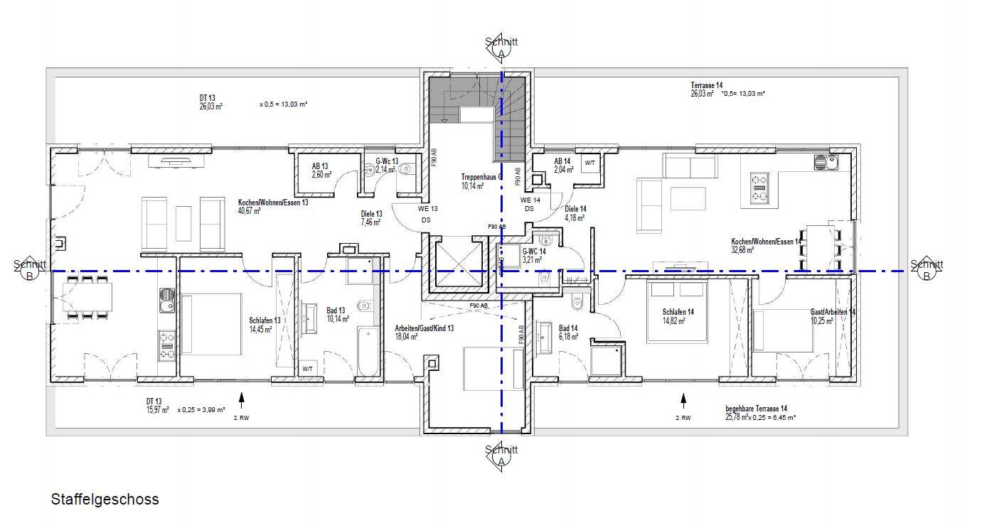
Baugrundstück mit genehmigter PlanungWir bieten Ihnen ein Baugrundstück in zentraler Lage von Oer-Erkenschwick zum Kauf. Für das Grundstück liegt eine genehmigte Planung vor für ein 14-Parteien-Haus mit 14 Garagen und 14 Außenabstellräumen.Die Gesamtwohnfläche beträgt 1048 Quadratmeter.Diese Planung kann geändert und erweitert werden. Beim Bau einer Tiefgarage kann eine Wohnfläche von ca 2000 Quadratmetern erreicht werden.Gerne informieren wir Sie detaillierter über dieses Grundstück. Hinweise / SonstigesSonstiges: Gerne sind wir Ihnen bei der Vermittlung einer maßgeschneiderten Finanzierung behilflich. Wir freuen uns auf Ihre Anfrage. Bitte haben Sie Verständnis dafür, dass wir nur vollständige Anfragen mit Anschrift und Tel.Nr. beantworten können. Die hier gemachten Angaben beruhen auf Auskünften des Eigentümers. Trotz sorgfältiger Bearbeitung wird eine Haftung für die Richtigkeit durch Soucek Immobilien ausgeschlossen.Ähnliche Angebote
So funktioniert es
- Alle neuen Anzeigen matchen wir kostenlos mit Deinen Suchparametern.
- Passende Angebote senden wir Dir in einer E-Mail pro Tag.
- Du kannst auch verschiedene Suchen anlegen und Dich jederzeit abmelden. Mehr dazu




