Objektdaten
Objektbeschreibung
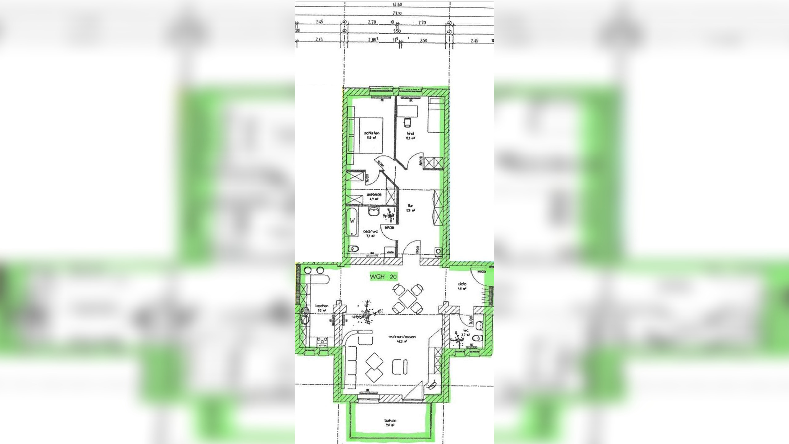
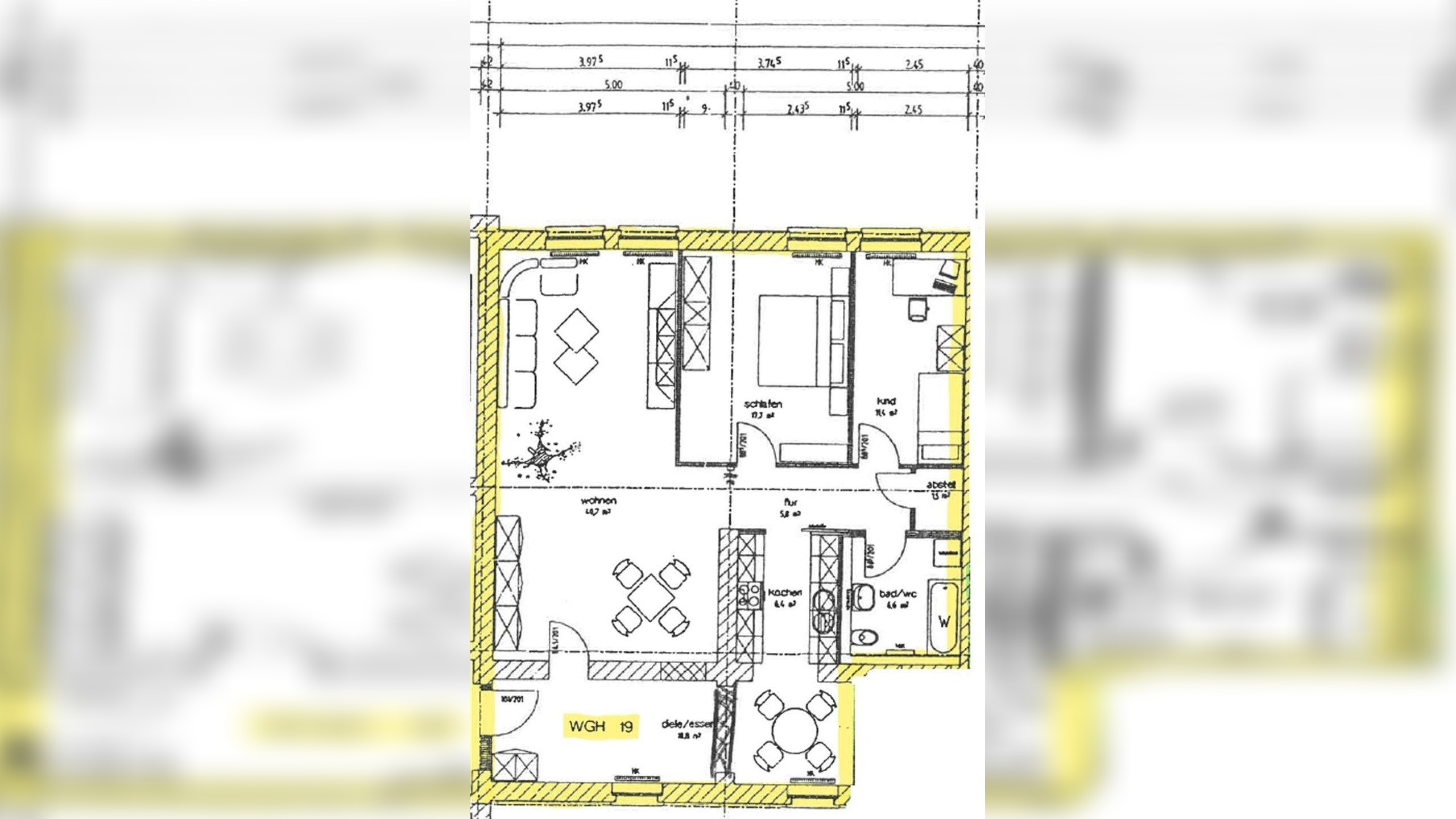
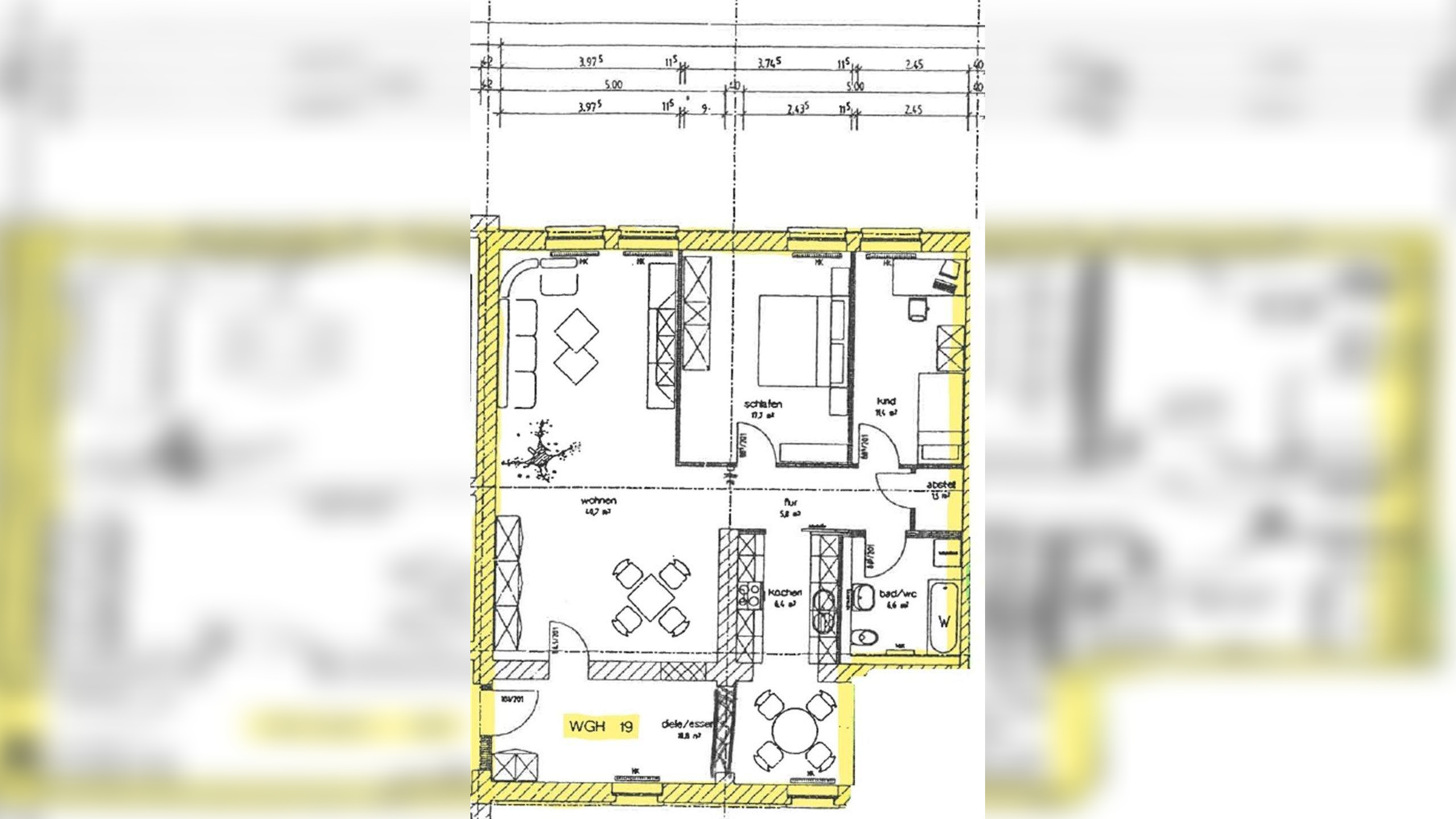
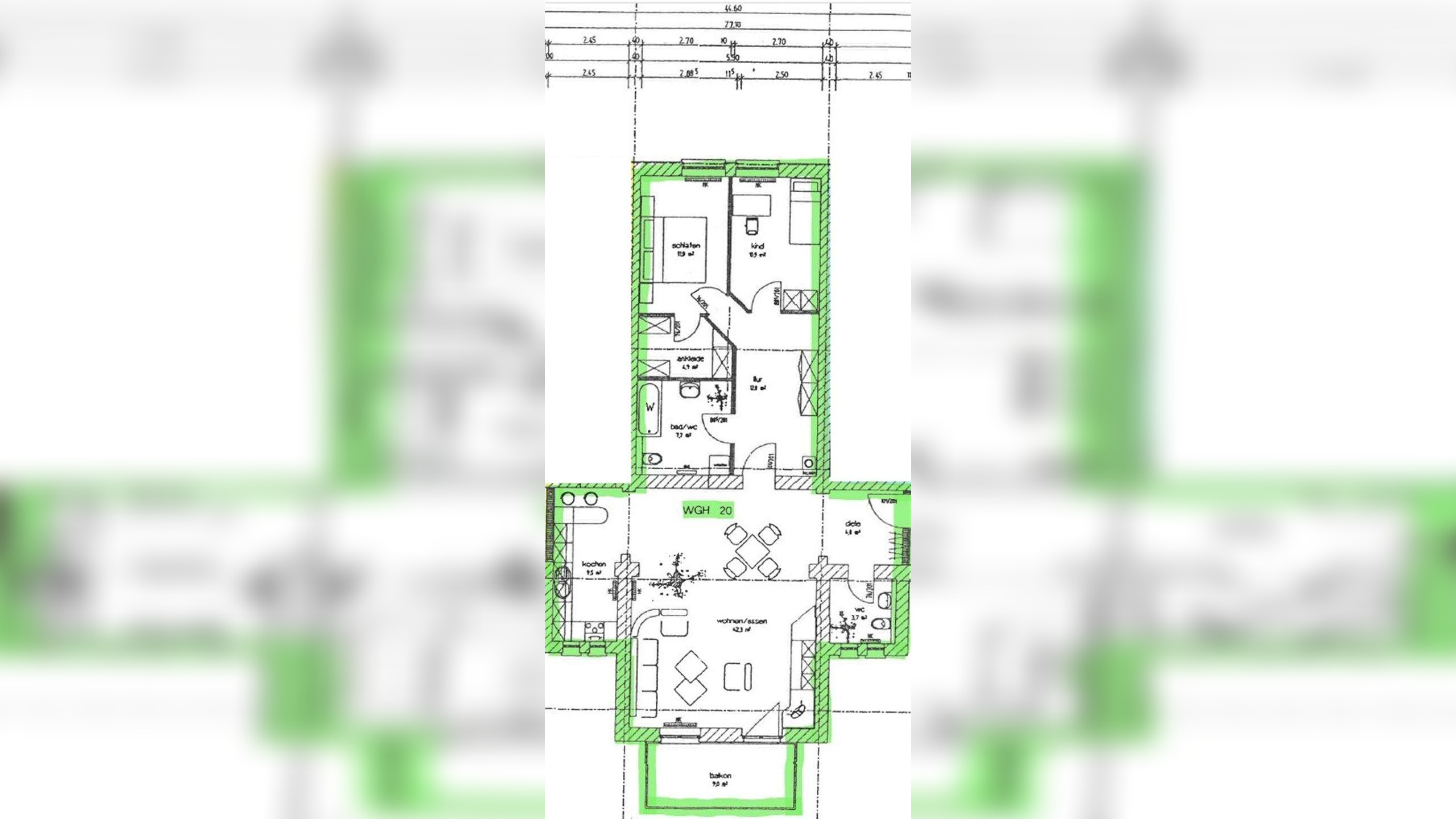
Zum Kauf angeboten werden drei vermietete Eigentumswohnungen im Husarenpark, in 04860 Torgau. Alle Wohnungen befinden sich im 2. OG. Das denkmalgeschützte, ehemalige Mannschaftshaus des Husaren-Regiments wurde um 1901 errichtet. Das Haus wurde 1995 nach WEG-Recht geteilt.
