Objektdaten
Objektbeschreibung
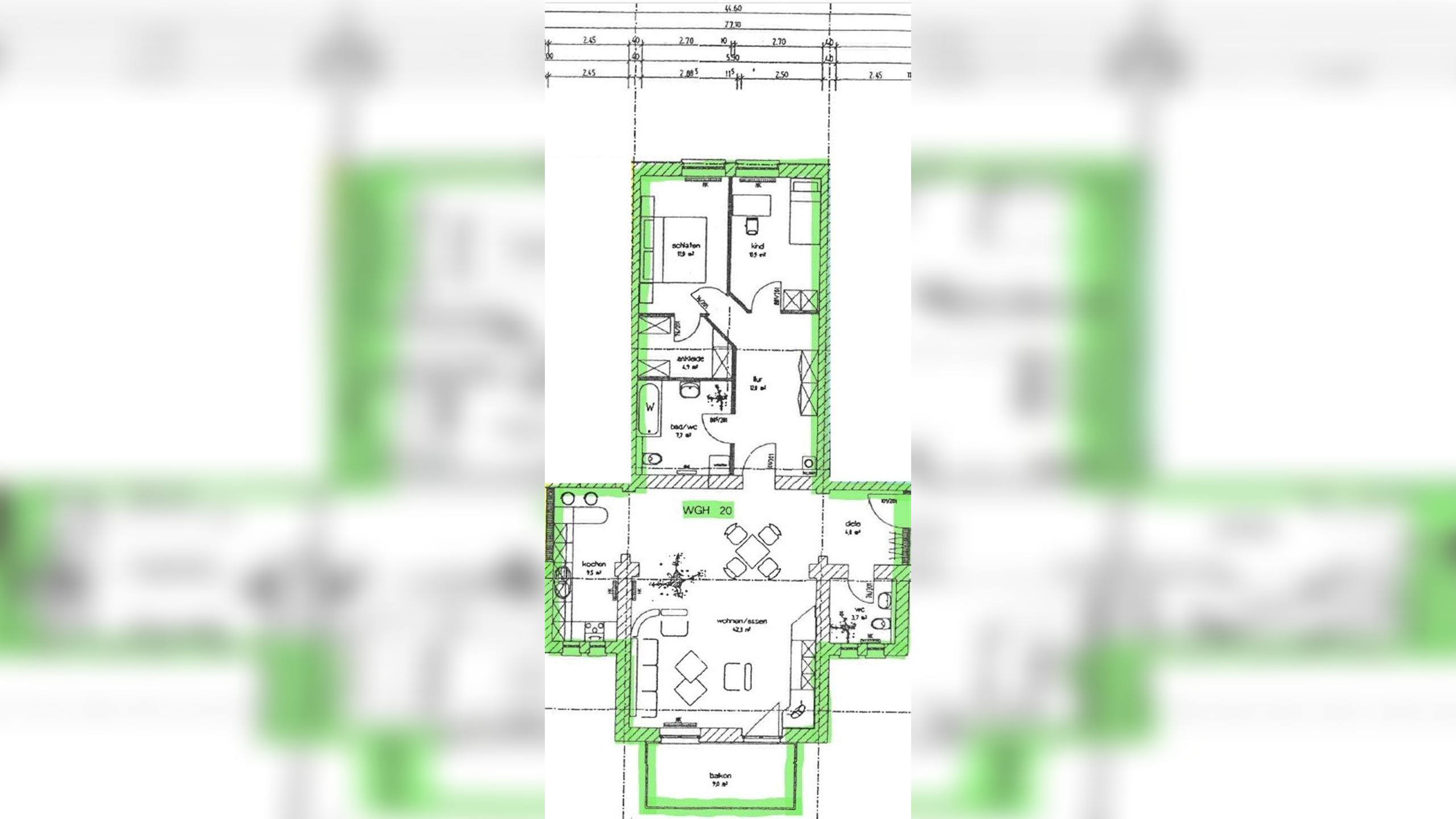
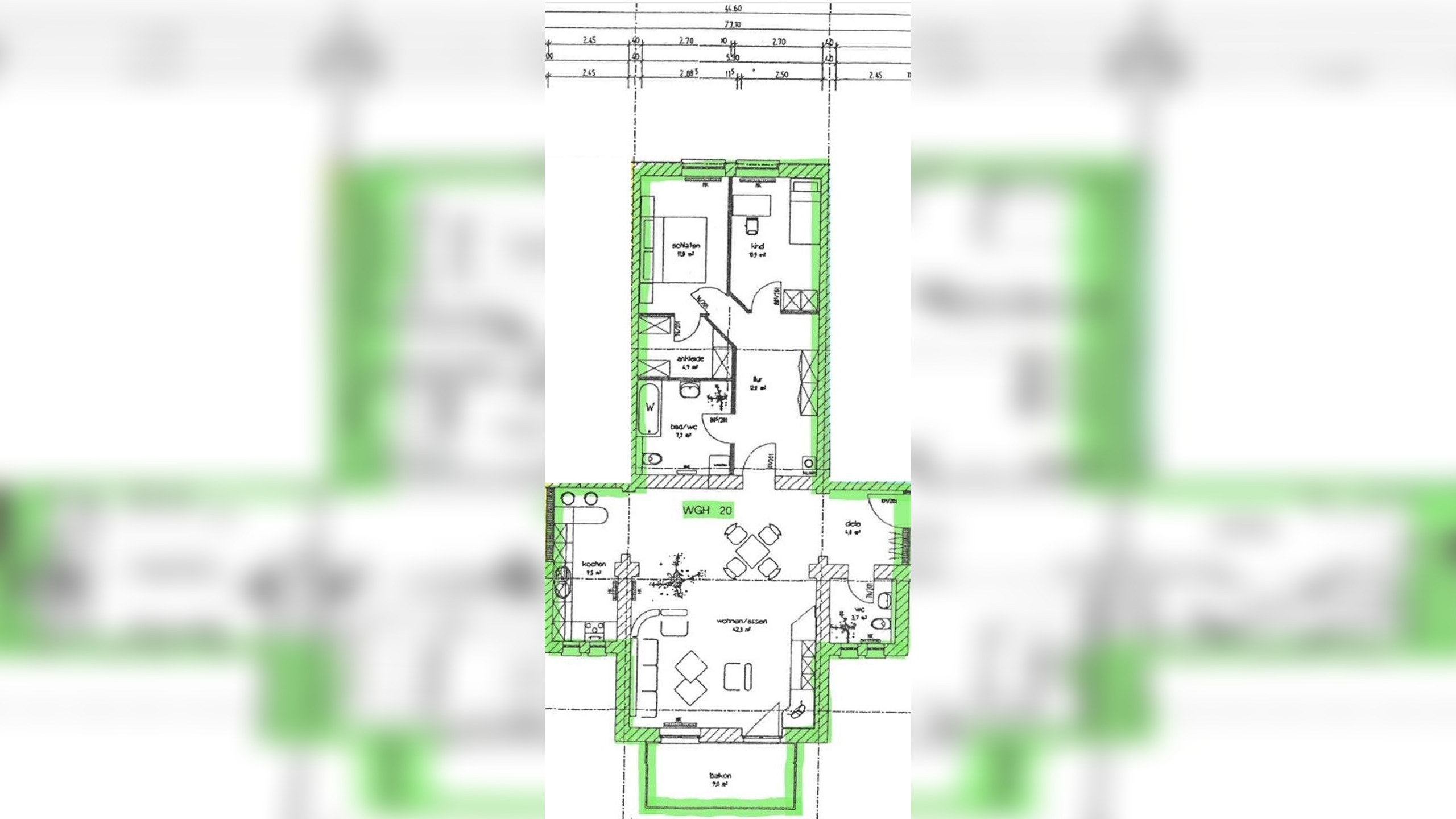
Zum Kauf angeboten wird eine vermietete 3-Raum-Wohnung im 2.OG im Husarenpark, in 04860 Torgau.Das denkmalgeschützte, ehemalige Mannschaftshaus des Husaren-Regiments wurde um 1901 errichtet.Das Haus wurde 1995 nach WEG-Recht geteilt und saniert.- Nettokaltmiete p.a,: 5518,56 €- Hausgeld/Monat: 440,00 €- Kaufpreisrendite: 3,6 % *auch Paketkauf möglich*So funktioniert es
- Alle neuen Anzeigen matchen wir kostenlos mit Deinen Suchparametern.
- Passende Angebote senden wir Dir in einer E-Mail pro Tag.
- Du kannst auch verschiedene Suchen anlegen und Dich jederzeit abmelden. Mehr dazu




