Kaufpreis 192.600 €
14943 Luckenwalde
Objektdaten
Veröffentlicht am: 23. Oktober 2025
Danke! Bitte bestätige Deine E-Mail-Adresse – wir haben Dir soeben eine Mail geschickt.
Es gab ein Problem beim Absenden. Bitte versuche es erneut.
Bitte bestätige Deine E-Mail-Adresse, um Updates zu erhalten.
Objektbeschreibung
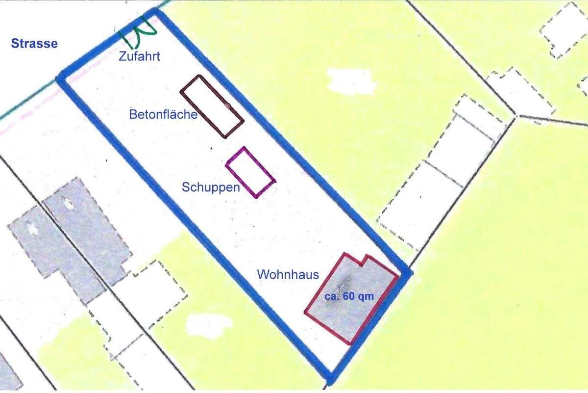
Verkauft wird ein erschlossenes Baugrundstück in Luckenwalde, mit einer Größe von 880 qm. Auf dem Grundstück liegen Strom, ein zentraler Trinkwasser- und Abwasseranschluss, sowie Glasfaser für schnelles Internet an. Die Gasleitung führt am Grundstück auf der öffentlichen Straße vorbei. Ein von der Stadt Luckenwalde beschiedener positiver Bescheid zur gestellten Bauvoranfrage, zur Errichtung eines Wohnhauses, liegt vor. Im vorderen Grundstücksbereich befindet sich eine intakte Betonplatte, die Basis einer massiven Garage war. Im mittleren Grundstücksbereich steht ein großräumiger Schuppen, der für Baumaterial und andere Abstellmöglichkeiten geeignet ist. Im hinteren Grunsdstücksbereich steht ein kleines massives Wohnhaus, das derzeit nicht bewohnt ist, aber mit wenig Aufwand wieder bewohnbar hergestellt werden kann. Auf ca. 60 qm Wohn- und Nutzfläche befinden sich ein Flur, 3 Zimmer, eine Küche mit Wirtschaftsraum, ein Bad mit Wanne und ein Abstellraum. Die Medien sind von den Anschlüssen bis ins Haus geführt. Beheizt wurde das Haus mit Nachtspeicheröfen. Das Haus ist als Dauerwohnsitz mit fester Adresse nutzbar. Es sind verschiedene Nutzungsmöglichkeiten der Immobilie denkbar. Sie eignet sich, nach Ertüchtigung des Wohnhauses, als Freizeitimmobilie. Das Haus und Nebengelass kann aber auch als Übergangsunterkunft wärend der Bauphase eines neuen Wohnhauses im vorderen Grundstücksbereich dienen. Das ist dem neuen Eigentümer überlassen. Neben dem Bescheid zur Bebaubarkeit liegen die Auskünfte aus dem Baulastenverzeichnis und dem Altlastenkataster vor. Hier gibt es keine Eintragungen.Die Immobilie wird lastenfrei verkauft. Dienstbarkeiten bestehen nicht. Das rechterhand gelegene Nachbargrundstück ist ein Doppelhaus. Das linkerhand befindliche Grundstück wird derzeit durch ein stilles Gewerbe genutzt. Beide Nachbargrundstücke lassen sich durch Hecken oder dichte Zäune optisch abgrenzen, wenn man es möchte. Hinter dem Wohnhaus ist unverbaubare Natur. .
So funktioniert es
- Alle neuen Anzeigen matchen wir kostenlos mit Deinen Suchparametern.
- Passende Angebote senden wir Dir in einer E-Mail pro Tag.
- Du kannst auch verschiedene Suchen anlegen und Dich jederzeit abmelden. Mehr dazu
Wir haben soeben eine E-Mail mit Deinem Suchauftrag an Dich geschickt. – Klicke in dieser Mail auf den Bestätigungslink und schon geht's los. Prüfe ggf. auch Deinen Spamordner.
Es gab ein Problem beim Absenden Deiner E-Mail-Adresse. Bitte versuche es erneut.
WARNUNG: Bitte bestätige Deine E-Mail-Adresse, um regelmäßige Updates zu erhalten.