Objektdaten
Objektbeschreibung
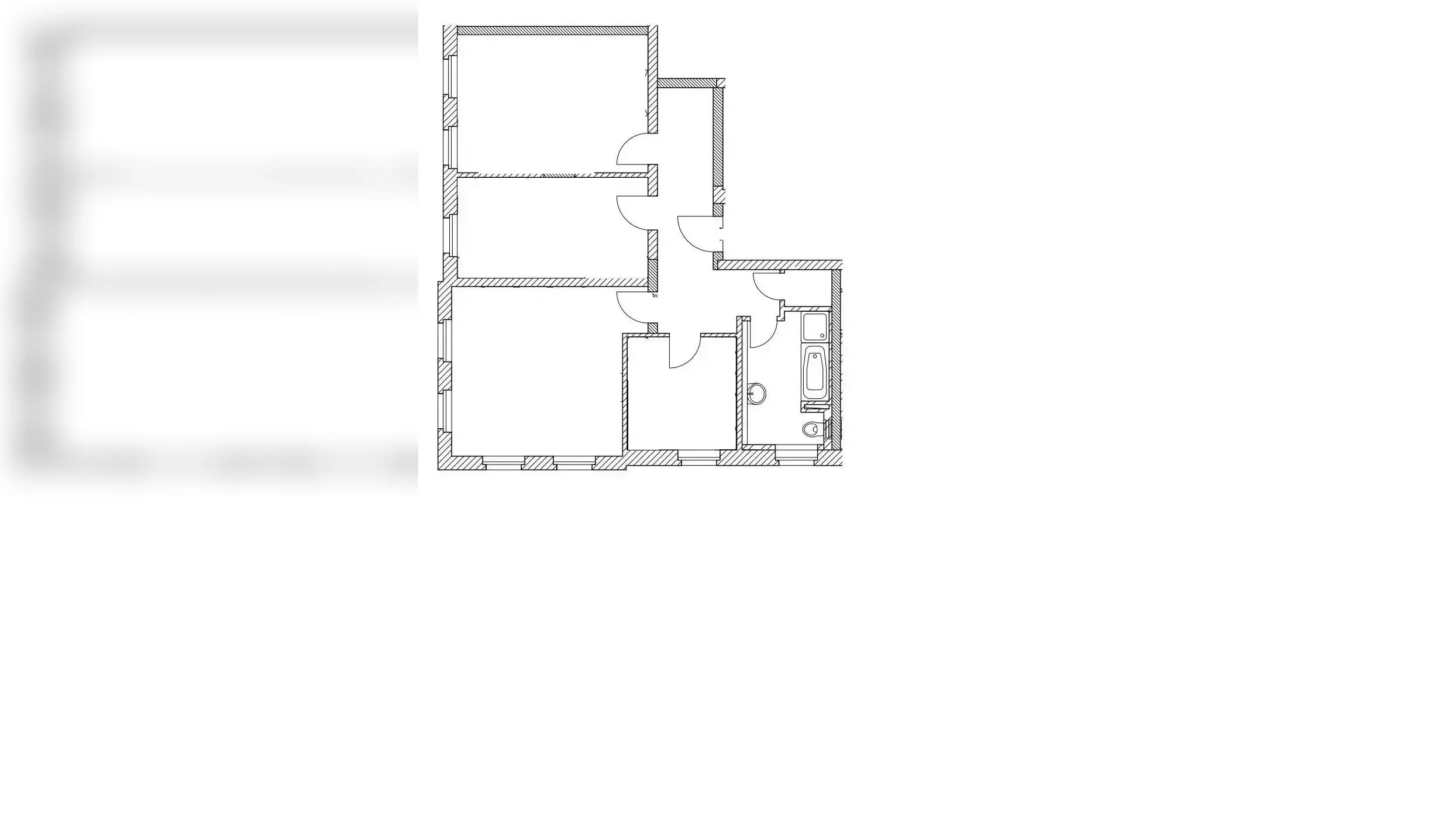
Objektbeschreibung Zur Miete angeboten wird eine frisch renovierte 3-Raum-Wohnung in zentraler Lage. Das Mehrfamilienhaus im Chemnitzer Stadtteil Bernsdorf, bietet seinen Mietern einen Fahrradabstellraum sowie einen Wäsche-/Trockenraum. Da die Immobilie vollständig unterkellert ist, wird ebenfalls weiterer Stauraum in einem Kellerabteil geboten. Raumaufteilung Die Wohnräume sind mit neuem, modernen Designbodenbelag ausgestattet.Das Highlight der Einheit ist der geräumige Wohnbereich mit vier Fenstern, welche für eine freundliche Atmosphäre sorgen.Alle Räume sind über den Flur verbunden, sodass keine Durchgangszimmer bestehen.Das Schlaf- sowie Kinderzimmer verfügen über eine angenehme Größe.Im Tageslichtbad ist sowohl eine Dusche als auch eine Badewanne vorhanden. Dieses wurde 2025 mit neuen Bodenfliesen, neuer Wanne und Duschkabine ausgestattet. In der Küche ist ausreichend Patz für eine Küchenzeile auf beiden Seiten.Ebenfalls gehören zur Wohnung eine interne Abstellkammer und ein Kellerabteil.Ein gemeinschaftlicher Waschmaschinen- und Trockenraum sowie ein Fahrradabstellraum ist für die Mieter des Hauses vorhanden.Ähnliche Angebote
So funktioniert es
- Alle neuen Anzeigen matchen wir kostenlos mit Deinen Suchparametern.
- Passende Angebote senden wir Dir in einer E-Mail pro Tag.
- Du kannst auch verschiedene Suchen anlegen und Dich jederzeit abmelden. Mehr dazu





