Kaufpreis 299.900 €
Zimmer 2
84371 Triftern
Objektdaten
Veröffentlicht am: 25. Oktober 2025
Energieausweis: Liegt bei der Besichtigung vor
Danke! Bitte bestätige Deine E-Mail-Adresse – wir haben Dir soeben eine Mail geschickt.
Es gab ein Problem beim Absenden. Bitte versuche es erneut.
Bitte bestätige Deine E-Mail-Adresse, um Updates zu erhalten.
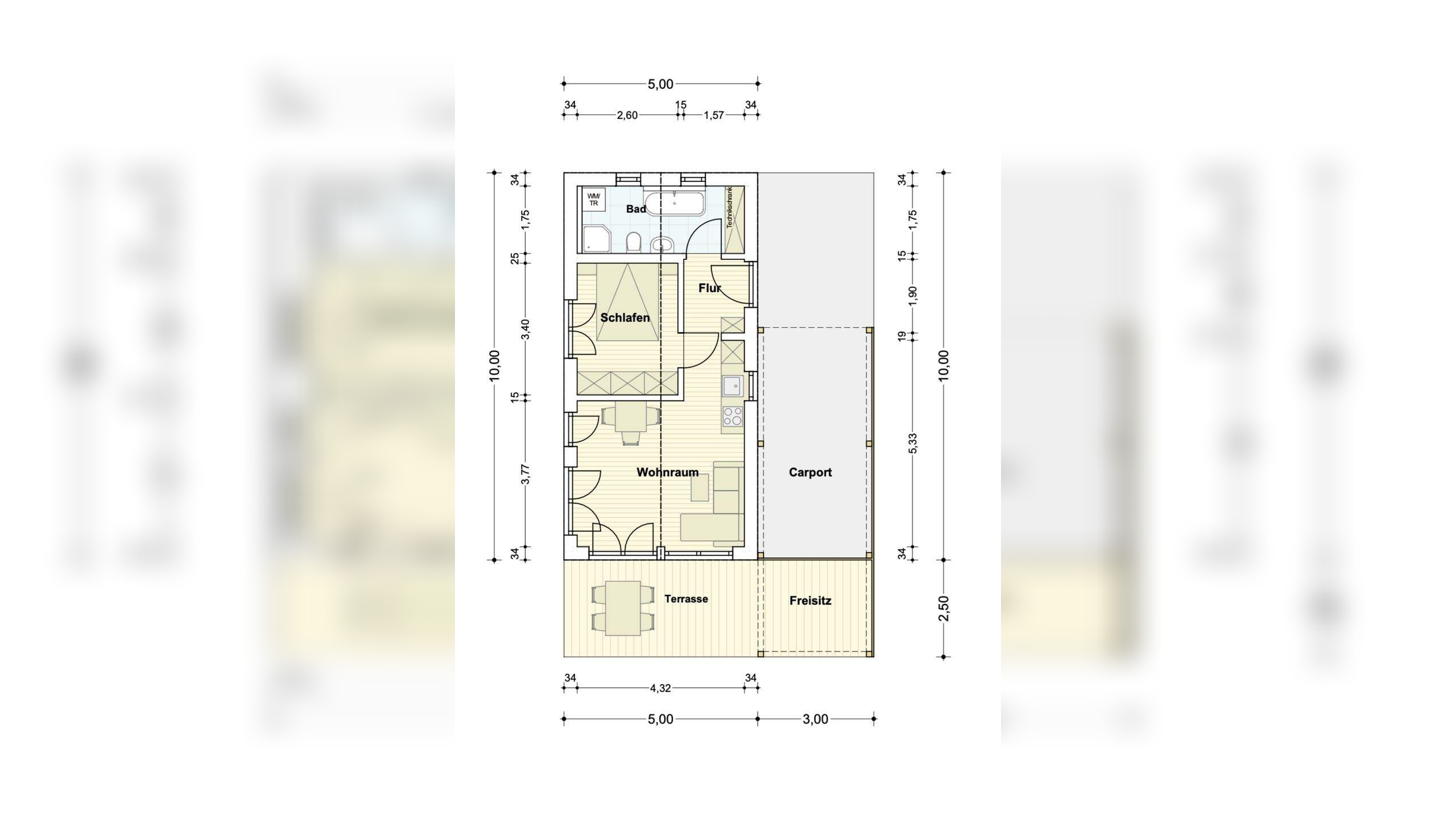
Objektbeschreibung
Hier steht ein bezahlbarer NeuBauBungalow incl. wunderschönen Grundstück zum Verkauf - direkt ab Eigentümerin (keine Marklerprovision): Sie erhalten ein kompaktes Haus-Neubaukonzept zum Preis einer EigentumswohnungWir sind ein Family Office, das mit Leidenschaft echten Wohnraum für Menschen schafft – bezahlbar, wertbeständig und mit Seele.Alle Details zu diesem Projekt finden Sie unten, sowie mehr unter www.isolagra.de/triftern.Im Quartier Sonnenhang Triftern entsteht ein neues Wohnkonzept im Herzen Niederbayerns. Hier verbinden sich Ruhe, Natur und Gemeinschaft zu einem Zuhause, das sich gut anfühlt. Unsere Projekte entstehen aus Überzeugung: nachhaltig, kompakt, energieeffizient – und vor allem lebenswert.Haus Salvia bietet aufeiner Ebene und einem Grundstück von ca. 250 m² ein durchdachtes Wohnkonzept für Singles, Paare oder Ruhesuchende auf einer sonnigen Süd/West-Terrasse/Freisitz mit kleinen Wohlfühlgarten und Weitsicht über Felder und Wiesen.Ein heller Wohnbereich mit bodentiefen Fenstern öffnet sich zur Terrasse – gemütlich, offen und funktional.Alles auf einer Ebene, barrierearm, energieeffizient und optional mit Solarlösung für dauerhaft minimierte und planbare Nebenkosten.Ausstattung & Highlights:- Grundstück im Eigentum statt Wohnung im Teileigentum- Energieeffizient & förderfähig- Optional mit Solaranlage für niedrige Nebenkosten- Holzbauweise mit TÜV-geprüfter Raumluftqualität- Barrierearm & altersgerecht – alles auf einer Ebene- Überdachter Freisitz – Ihr zweites Wohnzimmer im Freien- Carport direkt am Haus- Haustiere willkommen- Pflegeleichtes Grundstück mit überschaubarer Größe- Hochwertige Bauausführung mit regionalen PartnernPreis: 299.900 € inkl. MwSt. auf den Hausanteil, inkl. Grundstück, Planung & schlüsselfertigem Haus laut Bau- und Leistungsbeschreibung.Carport & Sonderausstattungen optional zusätzlich erhältlich.Das Angebot umfasst ein hausnahes Ausbaukonzept, bei dem bestimmte Gewerke bewusst offen gehalten sind, um Eigenleistungen und individuelle Gestaltung zu ermöglichen – beispielsweise Bodenbeläge, Innentüren und Malerarbeiten.So können Sie Ihr neues Zuhause ganz nach Ihrem Geschmack vollenden und gleichzeitig Kosten spareAlle Visualisierungen dienen der Veranschaulichung. Farben, Materialien und Ausstattung können abweichen. Maßgeblich sind die Bau- und Leistungsbeschreibung sowie der notarielle Kaufvertrag.
So funktioniert es
- Alle neuen Anzeigen matchen wir kostenlos mit Deinen Suchparametern.
- Passende Angebote senden wir Dir in einer E-Mail pro Tag.
- Du kannst auch verschiedene Suchen anlegen und Dich jederzeit abmelden. Mehr dazu
Wir haben soeben eine E-Mail mit Deinem Suchauftrag an Dich geschickt. – Klicke in dieser Mail auf den Bestätigungslink und schon geht's los. Prüfe ggf. auch Deinen Spamordner.
Es gab ein Problem beim Absenden Deiner E-Mail-Adresse. Bitte versuche es erneut.
WARNUNG: Bitte bestätige Deine E-Mail-Adresse, um regelmäßige Updates zu erhalten.