Objektdaten
Objektbeschreibung
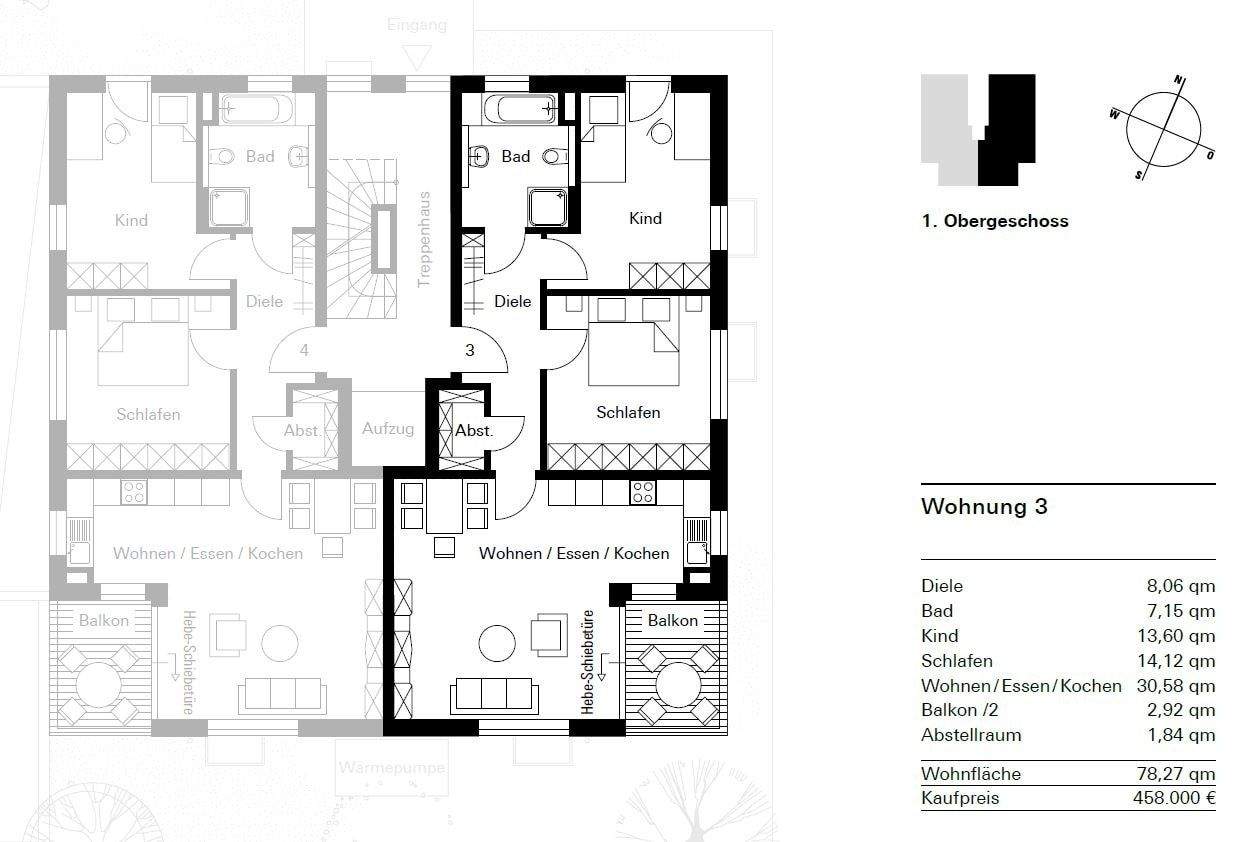
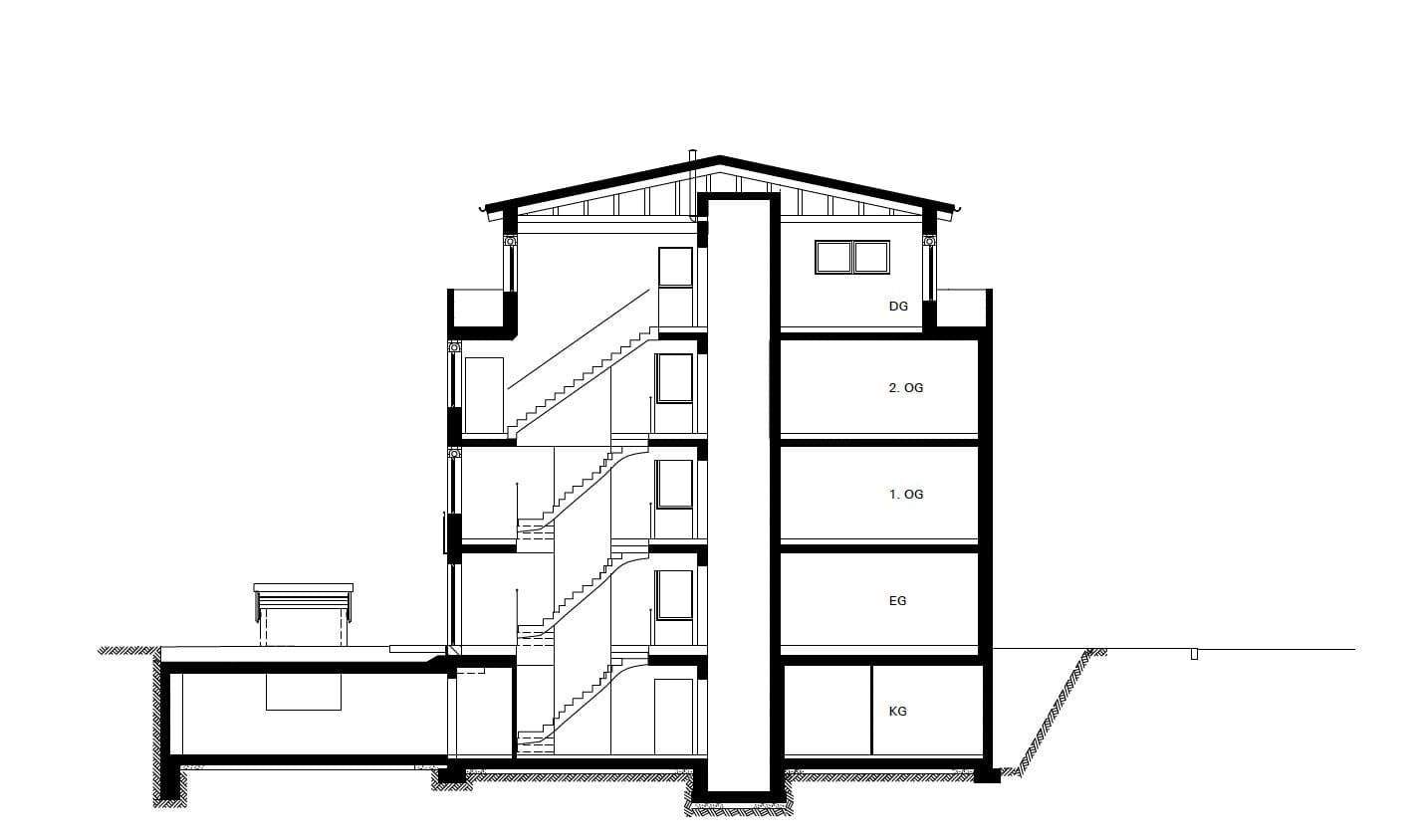
Kurzbeschreibung 3-Zimmer-Neubauwohnung in Memmingen Objekt Auf einem attraktiven Grundstück entsteht ein hochwertiges Mehrfamilienhaus mit insgesamt sieben Wohneinheiten:Sechs 3-Zimmer-Wohnungen mit jeweils ca. 78 qm WohnflächeEine exklusive Penthouse-Wohnung mit ca. 111 qm WohnflächeBaubeginn findet im Herbst 2025 statt, geplante Fertigstellung im Winter 2026/2027. - Erdgeschosswohnungen mit privatem Gartenanteil- Obergeschosswohnungen mit überdachten Balkonen- Im Dachgeschoss eine Penthousewohnung mit großzügiger Dachterrasse- Barrierefreie Architektur mit behinderten-freundlichem Aufzug- Tiefgarage mit Einzelstellplätzen- Sonderwünsche sind möglich, sofern der Bautenstand dies zulässt- Das Gebäude wird als Niedrigstenergiegebäude(GEG 2024) erstellt, welches im Standard einesKfW-Effizienzhauses 55 der EnEV von 2016 erfolgt.So funktioniert es
- Alle neuen Anzeigen matchen wir kostenlos mit Deinen Suchparametern.
- Passende Angebote senden wir Dir in einer E-Mail pro Tag.
- Du kannst auch verschiedene Suchen anlegen und Dich jederzeit abmelden. Mehr dazu




