Kaufpreis 449.500 €
Zimmer 4
Größe 120 m²
46499 Hamminkeln
Objektdaten
Veröffentlicht am: 26. Oktober 2025
Baujahr: 2026
Energieausweis: Liegt bei der Besichtigung vor
Danke! Bitte bestätige Deine E-Mail-Adresse – wir haben Dir soeben eine Mail geschickt.
Es gab ein Problem beim Absenden. Bitte versuche es erneut.
Bitte bestätige Deine E-Mail-Adresse, um Updates zu erhalten.
Objektbeschreibung
Objektbeschreibung
Das Haus – ein Zuhause, das begeistert!Hier entsteht mehr als nur ein Haus – hier entsteht Ihr Lebensmittelpunkt.Es entstehen 12 Doppelhaushälften mit einer Wohnfläche von ca. 120 m² und die Grundstücksgrößen betragen ca. 245 – 297 m² (Kaufpreise ab 443.500 EUR bis 454.000 EUR). Diese Doppelhaushälften vereinen moderne Architektur mit einer klaren, zeitlosen Gestaltung. Großzügige Fensterflächen lassen Licht in jedes Zimmer und schaffen eine angenehme Wohnatmosphäre, die das Haus offen und einladend wirken lässt.Im Erdgeschoss erwartet Sie der Mittelpunkt des Familienlebens: ein weitläufiger Wohn- und Essbereich in Kombination mit einer offenen/ geschlossenen Küche mit direktem Zugang zur Terrasse und in den Garten. Ob Familienfeier, Sommerabend mit Freunden oder gemütlicher Sonntag auf dem Sofa – hier entsteht Raum für all die Momente, die Ihr Leben ausmachen.Das Obergeschoss schenkt Ihnen Rückzugsmöglichkeiten für die ganze Familie. Das helle Elternschlafzimmer sowie zwei weitere Räume, die flexibel als Kinder-, Gäste- oder Arbeitszimmer genutzt werden können, bieten Platz für individuelle Lebenskonzepte. Das moderne Tageslichtbad überzeugt mit einer bodengleichen Dusche, einer Badewanne und hochwertigen Armaturen – ein Ort, an dem sich Funktionalität und Wohlgefühl verbinden lassen.Der Spitzboden erweitert Ihren Platzbedarf und Stauraum. Es besteht die Möglichkeit diesen als Abstellraum (ca. 18 m²) auszubauen. Die Bauweise ist massiv und nachhaltig, ausgestattet mit moderner Haustechnik: Fußbodenheizung, Luft-Wasser-Wärmepumpe und dreifach verglaste Fenster sorgen für Behaglichkeit und Energieeffizienz. Die Integration erneuerbarer Energien in Form einer Photovoltaikanlage senkt Ihren CO2-Fußabdruck und reduziert Ihre Betriebskosten. Eine Garage oder eine E-Ladestation stehen als Sonderwunsch zur Verfügung, damit Ihr Zuhause auch technisch zukunftssicher aufgestellt ist. Ein Zuhause, das alles vereint: modernes Design, clevere Raumaufteilung und nachhaltige Technik. Hier beginnt Ihr neues Kapitel – stilvoll, komfortabel, einzigartig.
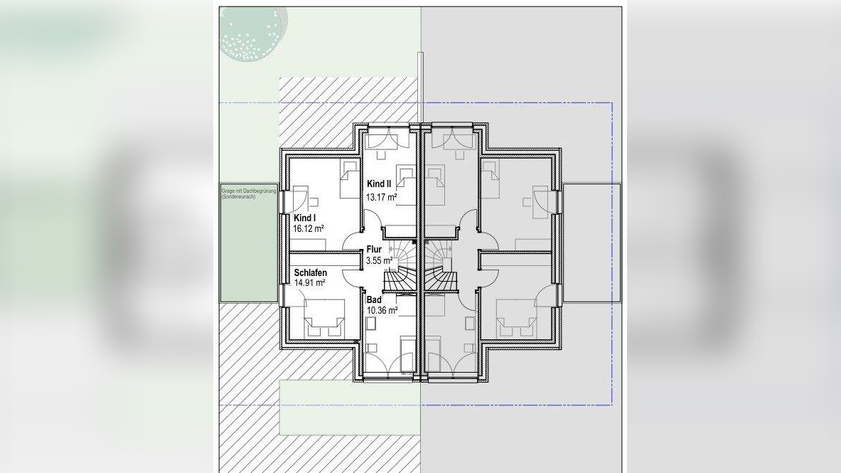
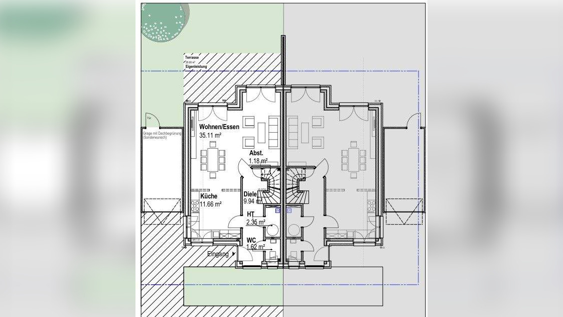
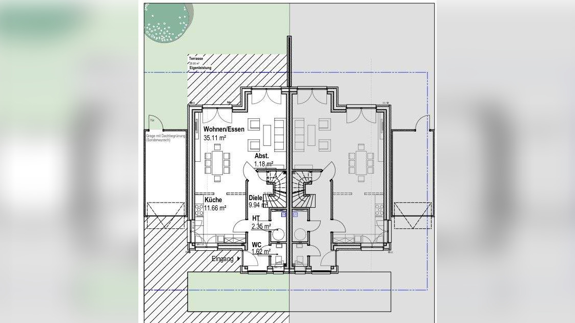
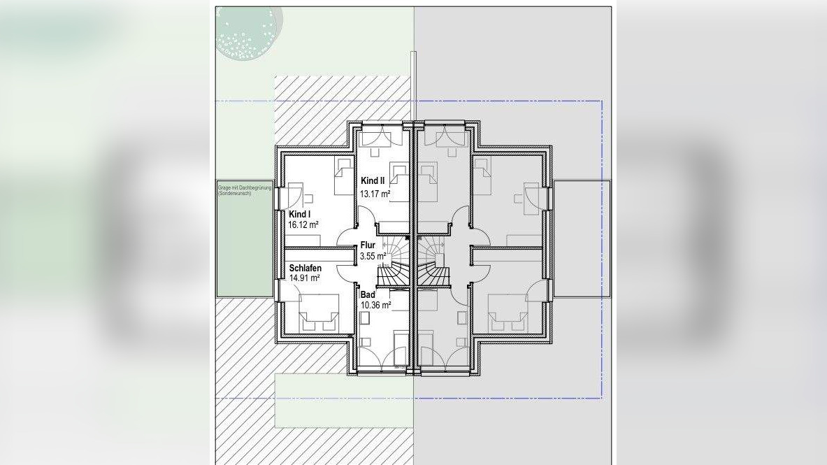
Raumaufteilung
EG- Wohn- und Essbereich- Küche- Zugang zu Terrasse und Garten- Gäste-WC mit Fenster- Diele/ Flur- Abstell- und HaustechnikraumOG- Flur- 3 Schlafzimmer - Tageslichtbad mit Wanne und Dusche - Ankleide- Zugang zum Spitzboden
So funktioniert es
- Alle neuen Anzeigen matchen wir kostenlos mit Deinen Suchparametern.
- Passende Angebote senden wir Dir in einer E-Mail pro Tag.
- Du kannst auch verschiedene Suchen anlegen und Dich jederzeit abmelden. Mehr dazu
Wir haben soeben eine E-Mail mit Deinem Suchauftrag an Dich geschickt. – Klicke in dieser Mail auf den Bestätigungslink und schon geht's los. Prüfe ggf. auch Deinen Spamordner.
Es gab ein Problem beim Absenden Deiner E-Mail-Adresse. Bitte versuche es erneut.
WARNUNG: Bitte bestätige Deine E-Mail-Adresse, um regelmäßige Updates zu erhalten.