Kaufpreis 595.000 €
Zimmer 5
Größe 153 m²
46499 Hamminkeln
Objektdaten
Veröffentlicht am: 26. Oktober 2025
Energieausweis: Liegt bei der Besichtigung vor
Danke! Bitte bestätige Deine E-Mail-Adresse – wir haben Dir soeben eine Mail geschickt.
Es gab ein Problem beim Absenden. Bitte versuche es erneut.
Bitte bestätige Deine E-Mail-Adresse, um Updates zu erhalten.
Objektbeschreibung
Objektbeschreibung
Das Haus – modern wohnen, wertbeständig leben!Hier trifft zeitlose Architektur auf ein Ambiente, das Wärme und Eleganz vereint. Die Kombination aus massiver Bauweise, anthrazitfarbenen Akzenten und großen Fensterflächen verleiht dem Haus seinen eleganten Charakter. Licht durchflutet die Räume und schafft eine Atmosphäre, in der sich jeder Tag wie ein Stück Urlaub anfühlt.Im Inneren öffnet sich ein Zuhause, das zum Verweilen einlädt: Der großzügige Wohn- und Essbereich mit offener Küche ist das Herzstück des Hauses – ein Ort, an dem Familie und Freunde zusammenkommen, gemeinsam lachen, kochen und genießen. Von hier führt der Weg direkt hinaus auf die Terrasse, die sich in den Garten öffnet und den Wohnraum ins Grüne erweitert.Das Obergeschoss bietet private Rückzugsorte: Zwei helle Kinderzimmer, in denen kleine und große Träume wachsen können, sowie ein Elternschlafzimmer mit angrenzender Ankleide – ein Ort der Ruhe. Das stilvolle Badezimmer verbindet Funktionalität mit Wohlfühlcharakter: eine bodengleiche Dusche, eine Badewanne zum Entspannen und moderne Ausstattung sorgen dafür, dass jeder Tag mit einem Hauch von Luxus beginnt.Auch die Technik sorgt für Komfort und Sicherheit: Fußbodenheizung in allen Räumen, elektrische Rollläden, hochwertige Türen und Fenster mit 3-fach-Verglasung schaffen Behaglichkeit und Energieeffizienz. Eine moderne Luft-Wasser-Wärmepumpe sowie die integrierte Photovoltaikanlage machen das Haus nicht nur zukunftssicher, sondern auch nachhaltig.Praktische Details wie ein Hauswirtschaftsraum, Abstellmöglichkeiten und die optionale Doppelgarage runden das Angebot ab. Die gepflasterte Zufahrt und der Garten mit Außenzapf-stelle eröffnen Raum für individuelle Gestaltungsideen – ob blühender Vorgarten, grüne Spielwiese oder gemütliche Lounge-Ecke.Dieses Haus ist mehr als vier Wände und ein Dach: Es ist der Ort, an dem Geschichten geschrieben werden, an dem Kinder aufwachsen, Freunde willkommen sind und jeder Tag ein Stück Heimat schenkt.
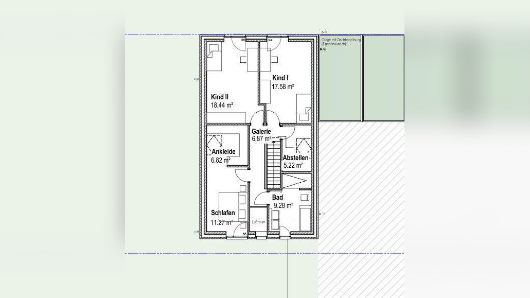
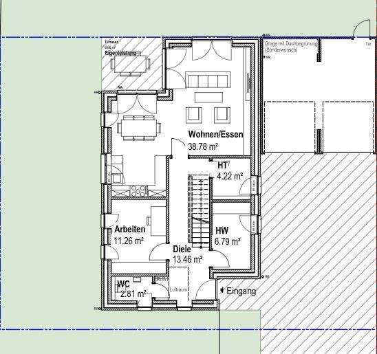
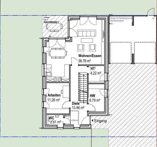
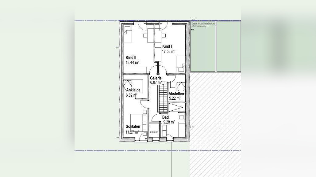
Raumaufteilung
EG- Wohn- und Essbereich- Küche- Arbeitszimmer- Hauswirtschafts- und Haustechnikraum- Zugang zu Terrasse und Garten- Gäste-WC mit Fenster- Diele/ FlurOG- Galerie- 2 Kinderzimmer- 1 Elternschlafzimmer mit Ankleide - Tageslichtbad mit Wanne und Dusche - Abstellraum
So funktioniert es
- Alle neuen Anzeigen matchen wir kostenlos mit Deinen Suchparametern.
- Passende Angebote senden wir Dir in einer E-Mail pro Tag.
- Du kannst auch verschiedene Suchen anlegen und Dich jederzeit abmelden. Mehr dazu
Wir haben soeben eine E-Mail mit Deinem Suchauftrag an Dich geschickt. – Klicke in dieser Mail auf den Bestätigungslink und schon geht's los. Prüfe ggf. auch Deinen Spamordner.
Es gab ein Problem beim Absenden Deiner E-Mail-Adresse. Bitte versuche es erneut.
WARNUNG: Bitte bestätige Deine E-Mail-Adresse, um regelmäßige Updates zu erhalten.