Kaufpreis 363.000 €
Zimmer 2
Größe 61 m²
89231 Neu-Ulm
Objektdaten
Veröffentlicht am: 26. Oktober 2025
Baujahr: 2026
Energieausweis: Liegt bei der Besichtigung vor
Danke! Bitte bestätige Deine E-Mail-Adresse – wir haben Dir soeben eine Mail geschickt.
Es gab ein Problem beim Absenden. Bitte versuche es erneut.
Bitte bestätige Deine E-Mail-Adresse, um Updates zu erhalten.
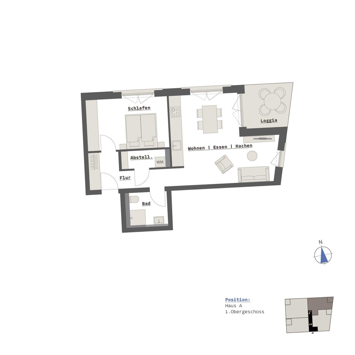
Objektbeschreibung
Willkommen in Ihrem neuen Zuhause! Hier treffen hochwertige Materialien auf ein durchdachtes Wohnkonzept.Auf rund 61?m² erwartet Sie eine helle Etagenwohnung mit zwei lichtdurchfluteten Zimmern. Das großzügige Schlafzimmer bietet Ihnen einen ruhigen Rückzugsort mit viel Tageslicht und viel Platz.Vom Flur aus, der praktische Stellfläche für einen Einbauschrank bietet, gelangen Sie in das stilvolle Badezimmer mit hochwertigen Feinsteinzeugfliesen. Ausgestattet mit einer bodengleichen Dusche, einem stilvollen Waschtisch sowie einem WC, vereint es Komfort und Design.Ein separater Abstellraum mit Anschluss für Ihre Waschmaschine schafft zusätzlichen Stauraum.Das Herzstück der Wohnung ist der sonnige Wohn- und Essbereich mit direktem Zugang zur überdachten Loggia - ein idealer Ort zum Entspannen. Dank der bodentiefen Fenster und dem eleganten Eichenparkett entsteht ein harmonisches Raumgefühl voller Licht, Wärme und stilvoller Wohnqualität.Ein clever geschnittener Grundriss, hochwertige Ausstattung und viel Liebe zum Detail machen diese Wohnung zu etwas Besonderem. Erleben Sie Bauqualität, erleben Sie unser Bauvorhaben "THERESE 4".
So funktioniert es
- Alle neuen Anzeigen matchen wir kostenlos mit Deinen Suchparametern.
- Passende Angebote senden wir Dir in einer E-Mail pro Tag.
- Du kannst auch verschiedene Suchen anlegen und Dich jederzeit abmelden. Mehr dazu
Wir haben soeben eine E-Mail mit Deinem Suchauftrag an Dich geschickt. – Klicke in dieser Mail auf den Bestätigungslink und schon geht's los. Prüfe ggf. auch Deinen Spamordner.
Es gab ein Problem beim Absenden Deiner E-Mail-Adresse. Bitte versuche es erneut.
WARNUNG: Bitte bestätige Deine E-Mail-Adresse, um regelmäßige Updates zu erhalten.