Kaufpreis 332.000 €
Zimmer 2
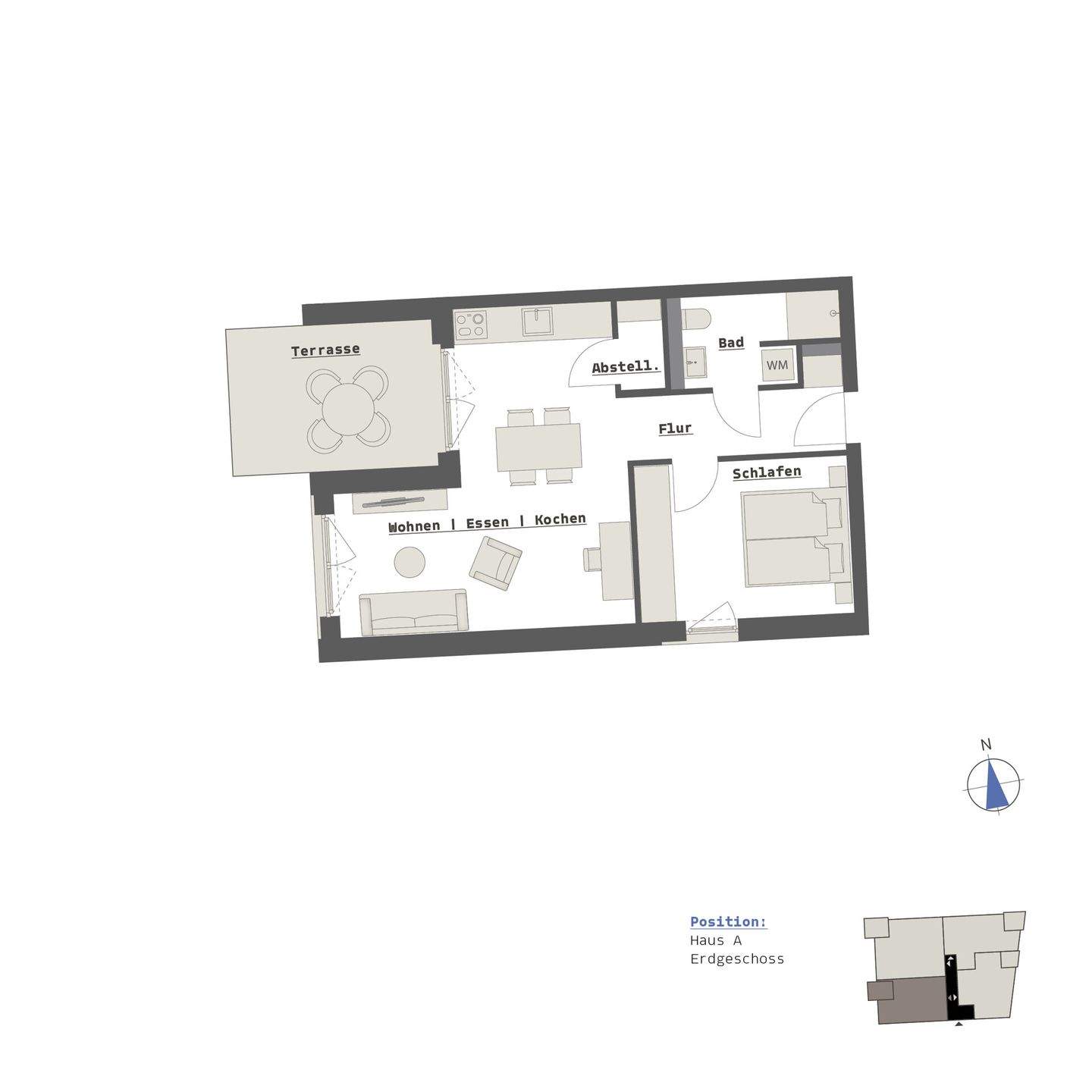
Größe 57 m²
89231 Neu-Ulm
Objektdaten
Veröffentlicht am: 26. Oktober 2025
Baujahr: 2026
Energieausweis: Liegt bei der Besichtigung vor
Danke! Bitte bestätige Deine E-Mail-Adresse – wir haben Dir soeben eine Mail geschickt.
Es gab ein Problem beim Absenden. Bitte versuche es erneut.
Bitte bestätige Deine E-Mail-Adresse, um Updates zu erhalten.
Objektbeschreibung
Herzlich willkommen in Ihrem neuen Zuhause! In dieser stilvollen Etagenwohnung verbinden sich hochwertige Materialien mit einem durchdachten Wohnkonzept auf rund 57 m².Zwei helle, gut geschnittene Zimmer schaffen ein angenehmes Wohnambiente. Das großzügige Schlafzimmer bietet viel Platz und eine ruhige Atmosphäre - ideal zum Abschalten und Erholen.Der einladende Flur bietet nicht nur Zugang zu allen Räumen, sondern auch praktische Stellfläche, etwa für einen Einbauschrank. Von hier aus betreten Sie das geschmackvoll gestaltete Badezimmer: Ausgestattet mit edlen Feinsteinzeugfliesen, bodengleicher Dusche, sowie einer eleganten Nische für eine Waschmaschine.Das Highlight der Wohnung ist der sonnige Wohn- und Essbereich mit direktem Zugang zur überdachten Terrasse - ein perfekter Ort, um den Tag entspannt ausklingen zu lassen. Die bodentiefen Fenster in Verbindung mit hochwertigem Eichen-Parkettboden verleihen den Räumlichkeiten ein besonderes Wohngefühl. Von der offenen Küche aus gelangen Sie direkt zur praktischen Abstellkammer.Ein durchdachter Grundriss, erstklassige Ausstattung und viel Liebe zum Detail machen diese Wohnung zu einem ganz besonderen Zuhause. Erleben Sie moderne und langlebige Wohnqualität - erleben Sie unser Projekt "THERESE 4".
So funktioniert es
- Alle neuen Anzeigen matchen wir kostenlos mit Deinen Suchparametern.
- Passende Angebote senden wir Dir in einer E-Mail pro Tag.
- Du kannst auch verschiedene Suchen anlegen und Dich jederzeit abmelden. Mehr dazu
Wir haben soeben eine E-Mail mit Deinem Suchauftrag an Dich geschickt. – Klicke in dieser Mail auf den Bestätigungslink und schon geht's los. Prüfe ggf. auch Deinen Spamordner.
Es gab ein Problem beim Absenden Deiner E-Mail-Adresse. Bitte versuche es erneut.
WARNUNG: Bitte bestätige Deine E-Mail-Adresse, um regelmäßige Updates zu erhalten.