Objektdaten
Objektbeschreibung
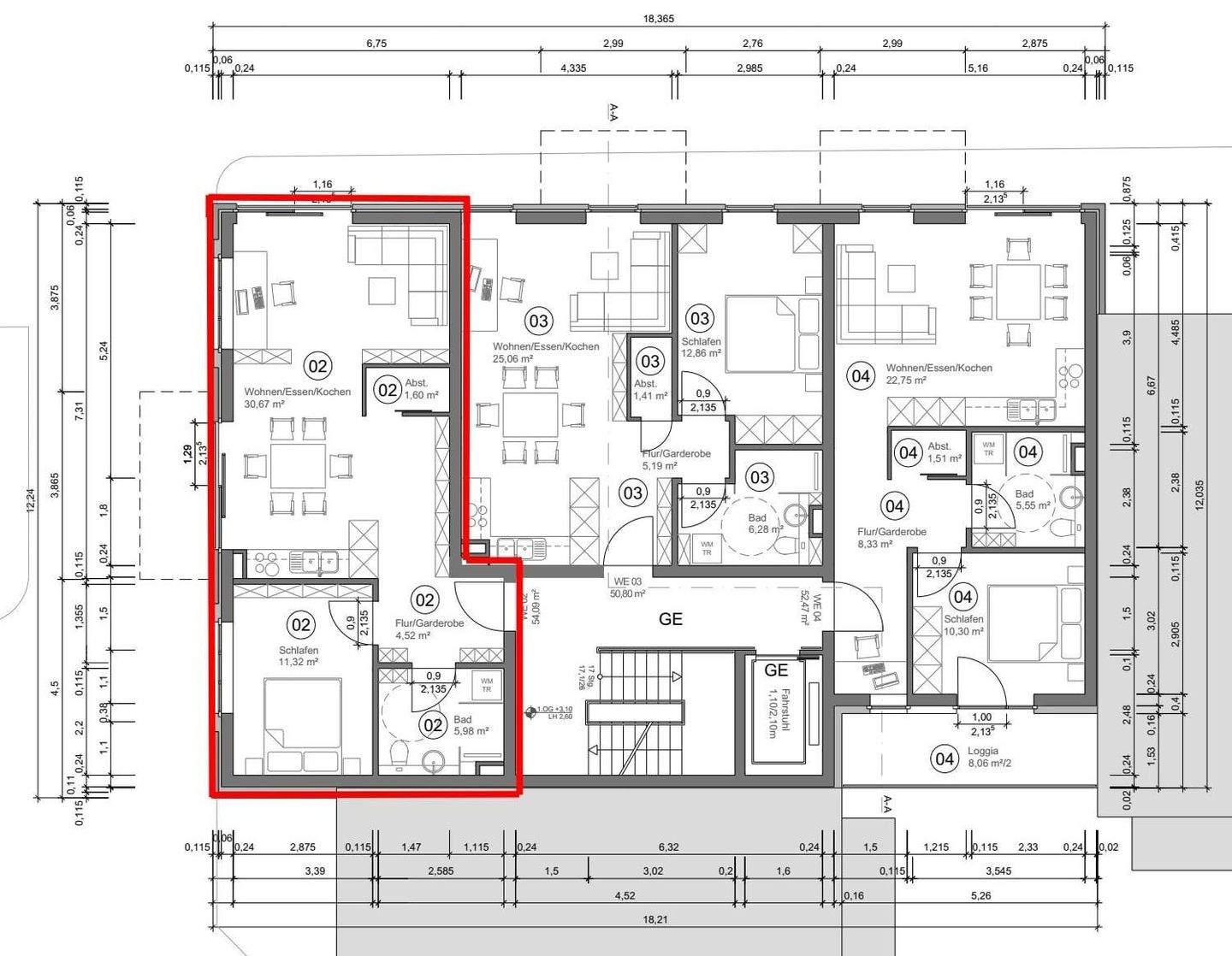
Diese attraktive Wohnung im 1. Obergeschoss ist Teil eines ansprechenden Neubauprojekts im Herzen von Fürstenwalde/Spree. Die Wohnfläche von ca. 54,09 m² verteilt sich geschickt auf zwei Zimmer, eine offene Küche und ein Badezimmer mit einladender Dusche. Die Fertigstellung ist für das Jahr 2026 geplant. Die Wohnung ist bequem mit einem Aufzug erreichbar. Für das Auto kann ein separater Außenstellplatz dazu erworben werden. Für das Fahrrad finden Sie einen eigens dafür geplanten Bereich im Untergeschoss.Diese Wohnung ist sowohl für jüngere als auch fortgeschrittene Geneartionen geeignet. Lassen Sie sich diese einmalige Chance nicht entgehen!So funktioniert es
- Alle neuen Anzeigen matchen wir kostenlos mit Deinen Suchparametern.
- Passende Angebote senden wir Dir in einer E-Mail pro Tag.
- Du kannst auch verschiedene Suchen anlegen und Dich jederzeit abmelden. Mehr dazu




