Kaufpreis 425.000 €
Zimmer 4
Größe 112 m²
23714 Malente
Objektdaten
Veröffentlicht am: 2. November 2025
Frei ab: 1. März 2026
Baujahr: 2025
Energieausweis: Liegt bei der Besichtigung vor
Danke! Bitte bestätige Deine E-Mail-Adresse – wir haben Dir soeben eine Mail geschickt.
Es gab ein Problem beim Absenden. Bitte versuche es erneut.
Bitte bestätige Deine E-Mail-Adresse, um Updates zu erhalten.
Objektbeschreibung
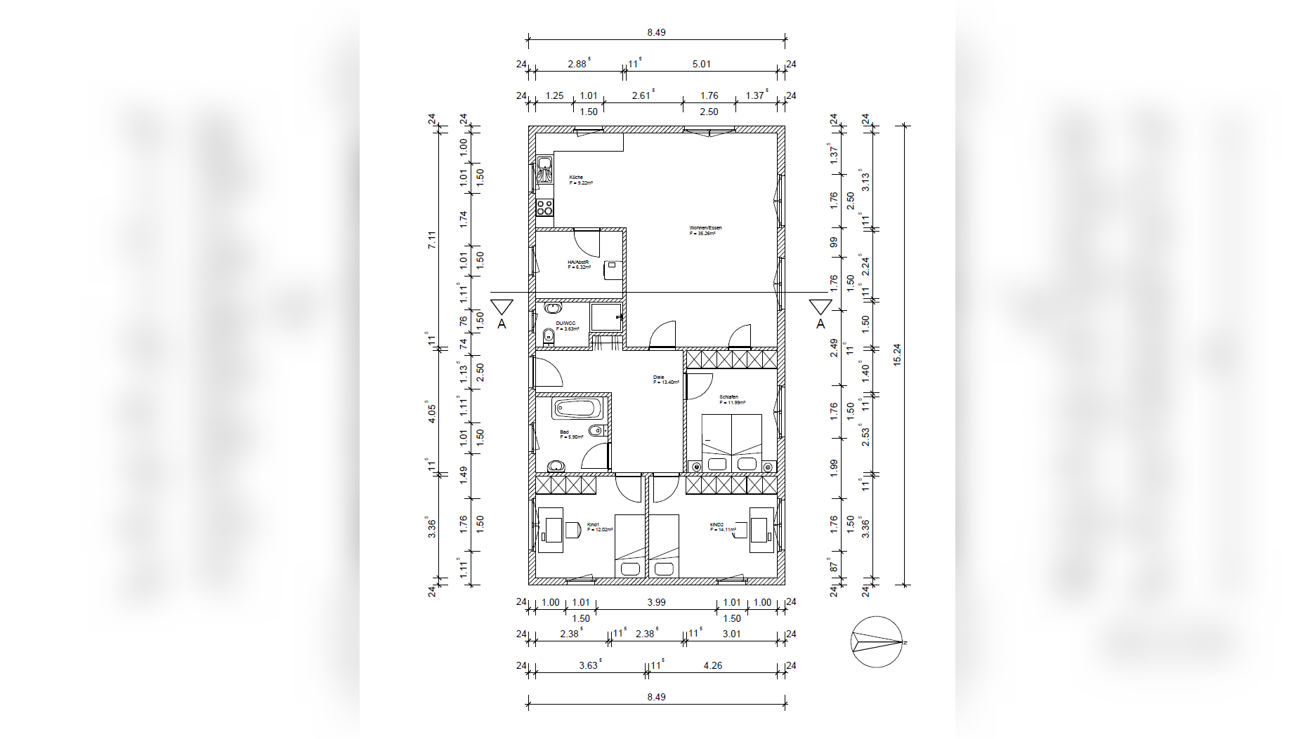
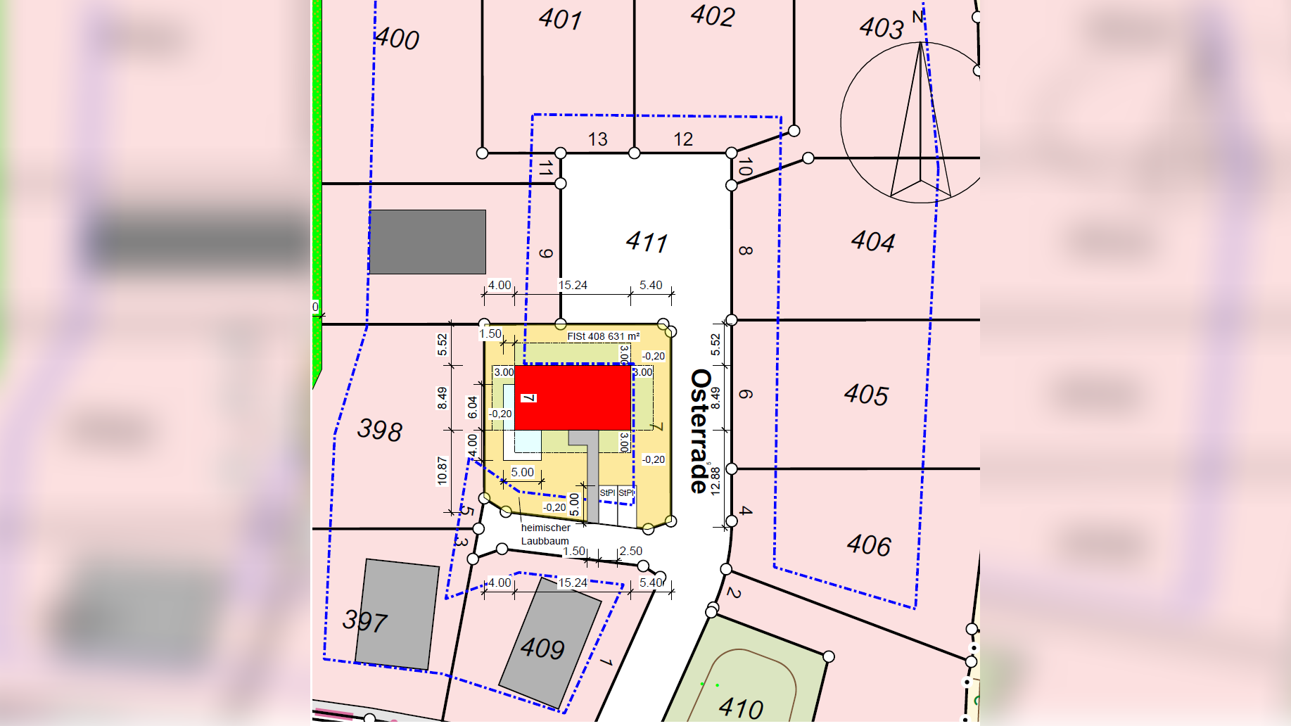
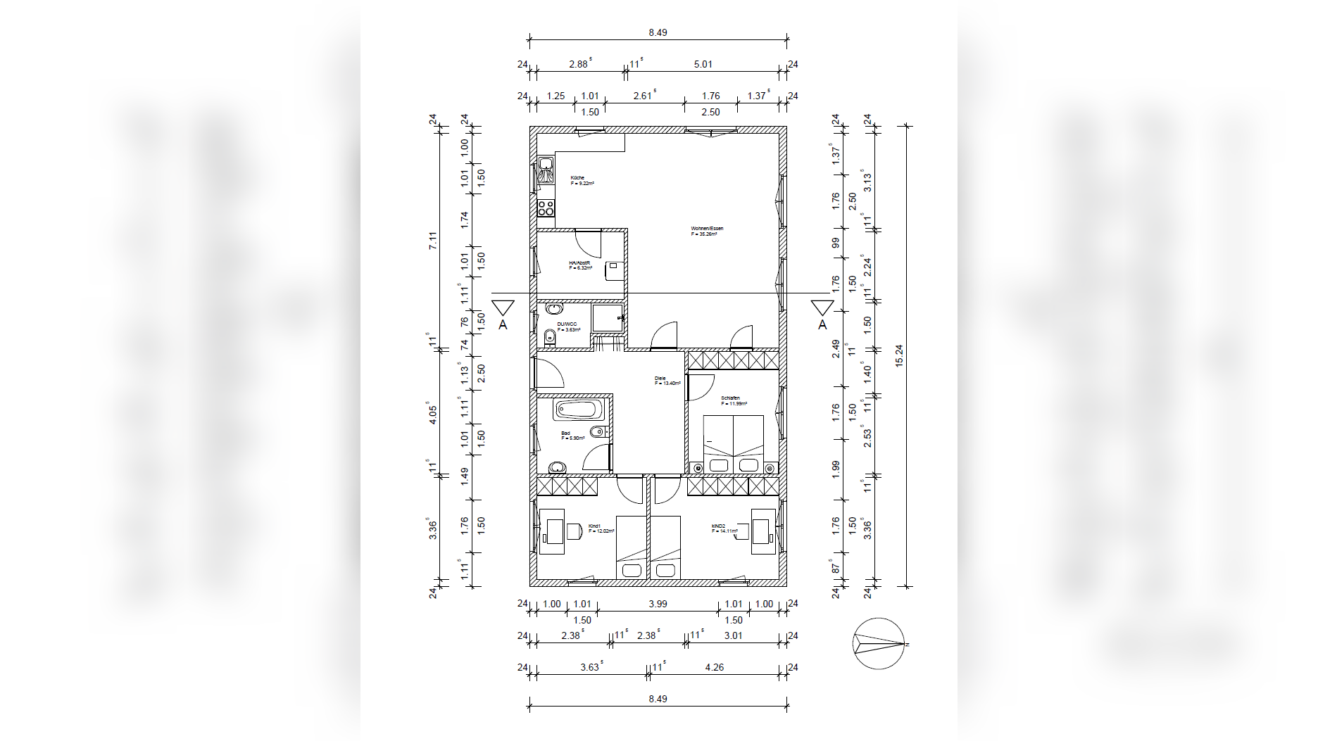
In 23714 Malente, Ortsteil Benz, entsteht in einem neu erschlossenen Wohngebiet (Höhe Bergstraße 6) dieser attraktive Neubau-Bungalow mit einer Wohnfläche von ca. 112 m² auf einem 631 m² großen Grundstück. Das moderne Haus wird in energieeffizienter Bauweise nach KfW-55-Standard mit Luftwärmepumpe errichtet und überzeugt durch eine durchdachte Raumaufteilung sowie hochwertige Bausubstanz.Die Architektur ist zeitlos und klassisch: Eine Putzfassade in dezentem hellem Grau-Ton, kombiniert mit einem Walmdach und grauen Dachpfannen, fügt sich harmonisch in das Wohnumfeld ein. Die Gründung erfolgt auf einer Stahlbetonsohle mit Streifenfundamenten zur Frostsicherung. Dreifachverglaste Kunststofffenster sorgen für optimale Wärmedämmung und ein angenehmes Wohnklima. Zwei Kfz-Stellplätze sind bereits eingeplant, zusätzlich besteht die Möglichkeit, ein Carport zu errichten.Der Grundriss des Bungalows ist auf die Bedürfnisse moderner Familien zugeschnitten. Mittelpunkt ist der großzügige, offene Wohn- und Essbereich mit integrierter Küche (die Küche ist nicht Bestandteil des Kaufpreises und muss vom Käufer eingebaut werden). Drei Schlafzimmer bieten ausreichend Platz für Familie, Gäste oder Homeoffice. Ergänzt wird das Raumangebot durch ein Badezimmer mit Badewanne, ein Gäste-Duschbad mit ebenerdiger Dusche sowie einen praktischen Abstellraum neben der Küche.Das Haus wird ohne Malerarbeiten, Bodenbeläge und Außenanlagen übergeben - diese Leistungen obliegen dem Käufer und ermöglichen eine individuelle Gestaltung nach eigenen Vorstellungen. Ein Glasfaseranschluss ist im Baugebiet verfügbar, der Hausanschluss muss noch gelegt werden.Der Neubau erreicht gemäß Energiebedarfsausweis die Klasse A mit einem Verbrauch von ca. 35 kWh/m²a und bietet damit ein hohes Maß an Zukunftssicherheit und Energieeffizienz. Die Fertigstellung ist zum 01.03.2026 vorgesehen. Eine detaillierte Baubeschreibung und die Bauantragsunterlagen stellen wir Ihnen auf Anfrage gerne zur Verfügung.Hinweis: Die gezeigten Außen- und Innenvisualisierungen dienen ausschließlich als Beispiele zur Illustration. Sie stellen keine verbindliche Bau- oder Ausstattungsbeschreibung dar und können von der tatsächlichen Ausführung abweichen.
So funktioniert es
- Alle neuen Anzeigen matchen wir kostenlos mit Deinen Suchparametern.
- Passende Angebote senden wir Dir in einer E-Mail pro Tag.
- Du kannst auch verschiedene Suchen anlegen und Dich jederzeit abmelden. Mehr dazu
Wir haben soeben eine E-Mail mit Deinem Suchauftrag an Dich geschickt. – Klicke in dieser Mail auf den Bestätigungslink und schon geht's los. Prüfe ggf. auch Deinen Spamordner.
Es gab ein Problem beim Absenden Deiner E-Mail-Adresse. Bitte versuche es erneut.
WARNUNG: Bitte bestätige Deine E-Mail-Adresse, um regelmäßige Updates zu erhalten.