Kaufpreis 1.740.000 €
Zimmer 4
Größe 148 m²
24105 Kiel
Objektdaten
Veröffentlicht am: 5. November 2025
Energieausweis: Liegt bei der Besichtigung vor
Danke! Bitte bestätige Deine E-Mail-Adresse – wir haben Dir soeben eine Mail geschickt.
Es gab ein Problem beim Absenden. Bitte versuche es erneut.
Bitte bestätige Deine E-Mail-Adresse, um Updates zu erhalten.
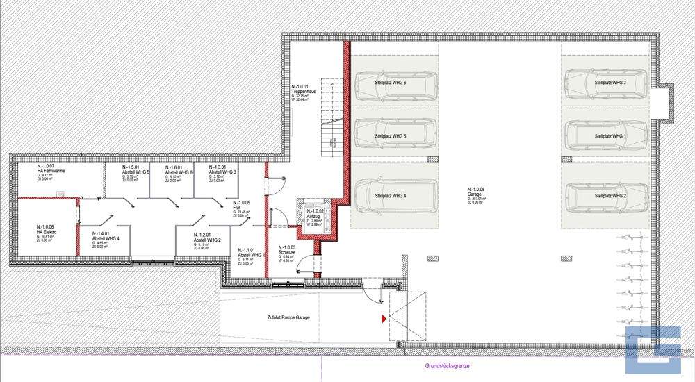
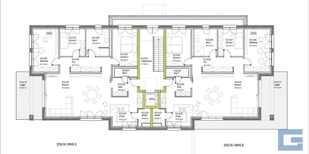
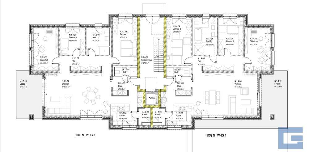
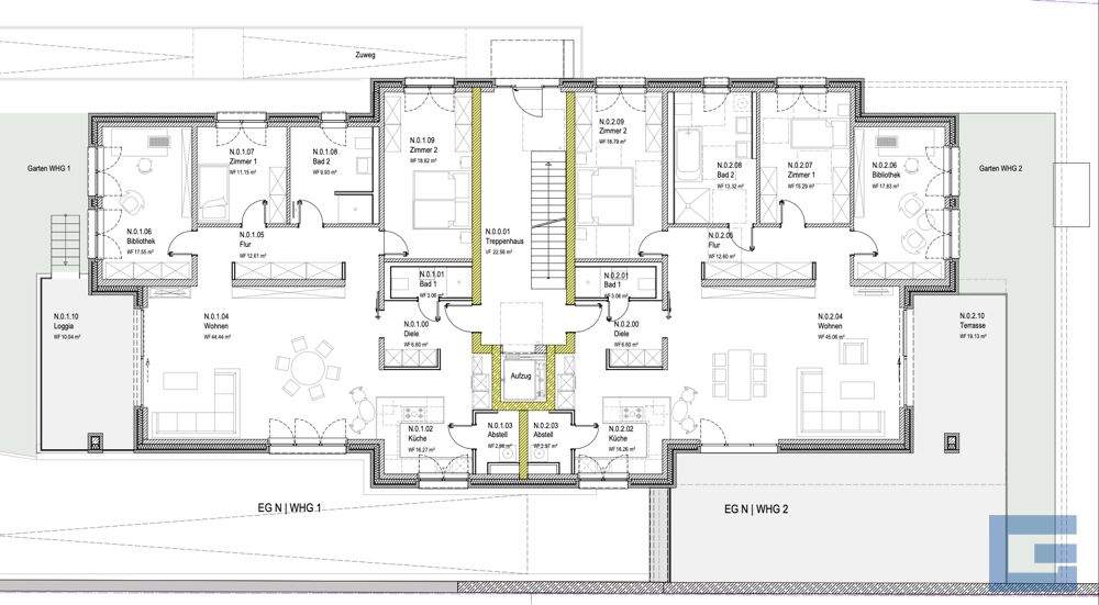
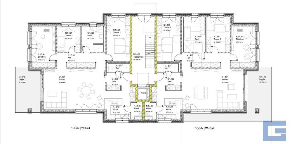
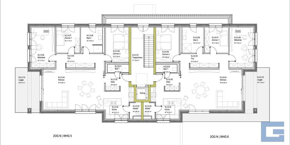
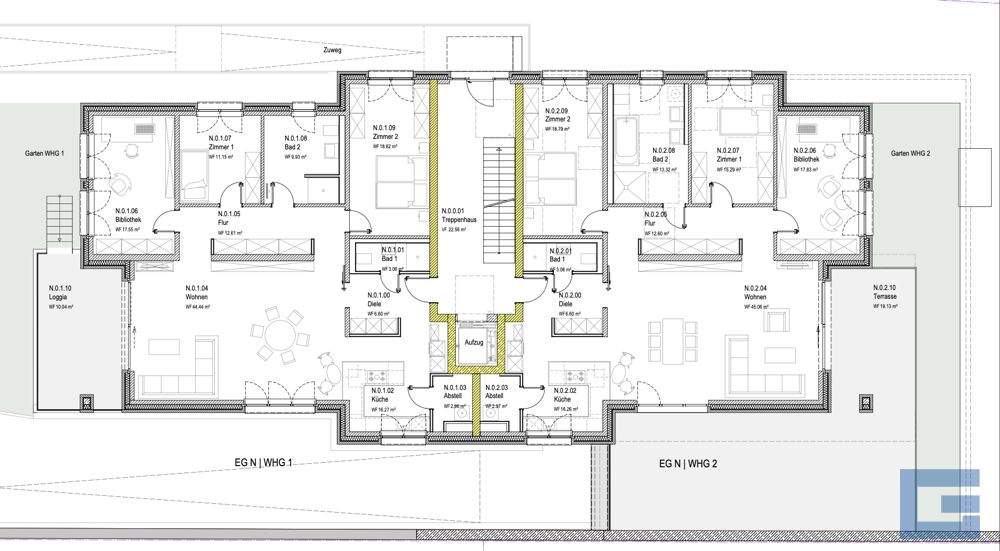
Objektbeschreibung
Zuhause in Düsternbrook - Stilvoll leben zwischen Förde und GehölzIn einer der feinsten Lagen Kiels, eingebettet zwischen dem traditionsreichen Niemannsweg und der ruhigen Hohenbergstraße, entstehen zwei exklusive Neubau-Mehrfamilienhäuser mit insgesamt zehn hochwertig ausgestatteten 4-Zimmerwohnungen. Die Architektur überzeugt durch klare Linien, hochwertige Materialien und ein durchdachtes Raumkonzept - modern, stilvoll und zeitlos zugleich.Zwei Adressen, ein Anspruch: Höchste WohnqualitätDas Haus Niemannsweg 20 mit sechs Wohneinheiten und das Haus Hohenbergstraße 13 mit vier Einheiten bieten Wohnkomfort auf höchstem Niveau - ideal für Familien, Paare mit Platzanspruch oder Menschen, die das Besondere suchen. Jede Wohnung ist ein Unikat, individuell gestaltet und mit viel Liebe zum Detail geplant.Ihr persönlicher Rückzugsort mit WeitblickAlle Wohnungen verfügen über großzügige 4 Zimmer, darunter drei komfortable Schlafzimmer, zwei voll ausgestattete Bäder mit bodengleichen Duschen, sowie einen lichtdurchfluteten Wohn-/Essbereich mit offener Design-Küche von SieMatic - das Herzstück jeder Wohnung.Großformatige Fenster schaffen ein helles, freundliches Ambiente und verbinden den Innenraum mit den jeweiligen Außenbereichen: Balkone, Loggien oder Terrassen, im Erdgeschoss mit eigenen Gartenanteilen, laden zum Entspannen und Genießen ein. Hier entstehen Lieblingsplätze für sonnige Morgenkaffees, entspannte Abende oder gesellige Stunden mit Freunden.Ein neues Kapitel beginnenDiese Wohnungen sind mehr als nur Räume - sie sind ein Versprechen für ein Leben voller Qualität, Ruhe und stilvoller Geborgenheit. Ob als Lebensmittelpunkt, Familiennest oder Rückzugsort in bester Lage: Hier verbinden sich architektonischer Anspruch, funktionale Eleganz und norddeutscher Charme auf eine Weise, die jeden Tag besonders macht.Geplante Fertigstellung Hohenbergstraße: Frühjahr 2027Geplante Fertigstellung Niemannsweg: Frühjahr 2028
So funktioniert es
- Alle neuen Anzeigen matchen wir kostenlos mit Deinen Suchparametern.
- Passende Angebote senden wir Dir in einer E-Mail pro Tag.
- Du kannst auch verschiedene Suchen anlegen und Dich jederzeit abmelden. Mehr dazu
Wir haben soeben eine E-Mail mit Deinem Suchauftrag an Dich geschickt. – Klicke in dieser Mail auf den Bestätigungslink und schon geht's los. Prüfe ggf. auch Deinen Spamordner.
Es gab ein Problem beim Absenden Deiner E-Mail-Adresse. Bitte versuche es erneut.
WARNUNG: Bitte bestätige Deine E-Mail-Adresse, um regelmäßige Updates zu erhalten.