Kaufpreis 245.000 €
99867 Gotha
Objektdaten
Veröffentlicht am: 8. November 2025
Energieausweis: Liegt bei der Besichtigung vor
Danke! Bitte bestätige Deine E-Mail-Adresse – wir haben Dir soeben eine Mail geschickt.
Es gab ein Problem beim Absenden. Bitte versuche es erneut.
Bitte bestätige Deine E-Mail-Adresse, um Updates zu erhalten.
Objektbeschreibung
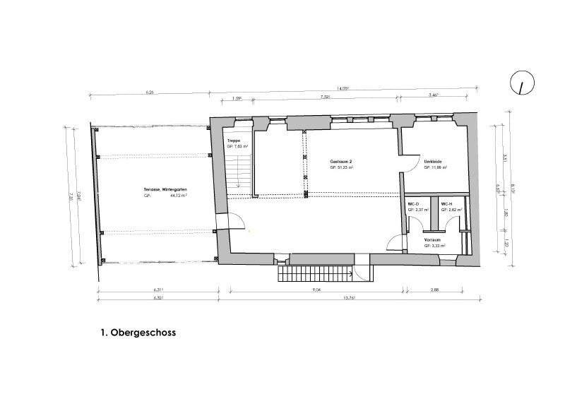
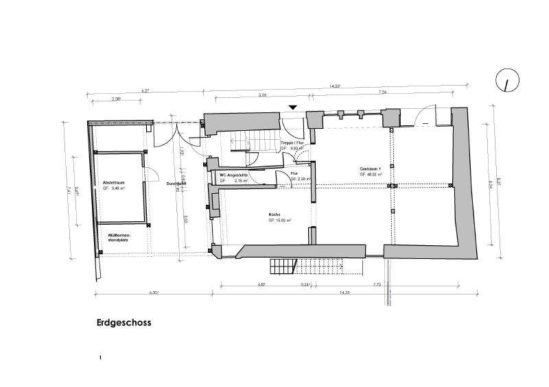
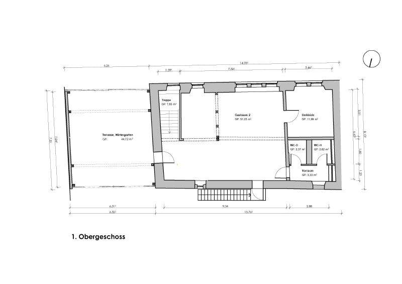
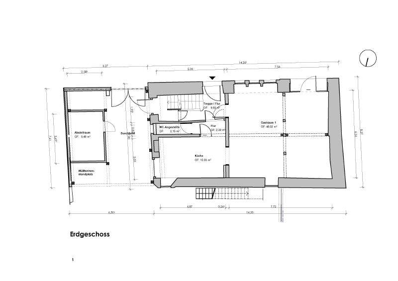
Der Grundbesitz besteht aus einem dreigeschossigen Gebäude mit Hofeinfahrt und neinem Grundstück von ca. 220 m². Teile des Baukörpers gehören vermutlich zu den ältesten Bauten der Stadt, vermutlich aus dem 17.JH.. Das Gebäude hat eine Länge von ca. 13 Meter bei einer Tiefe von ca. 8 Meter. Rechts vom Gebäude befindet sich die Einfahrt ins Grundstück. Über dieser Einfahrt befindet sich eine geschlossene, beidseitig verglaste Terrasse. Seit 2011 ist das Erd-und Obergeschoss an ein sizilianisches Restaurant vermietet, das unter Freunden der mediterranen Küche sehr beliebt ist. Das rustikale Flair des sanierten alten Gebäudes und die Qualität der Küche sind seit Jahren Garant für erfolgreiche Kundenbindung. Im Erdgeschoss befinden sich neben dem Eingang und der Küche ein gemütlicher Gastraum von ca. 50 m². Über eine Treppe erreicht man das Obergeschoss mit zwei schön gestalteten Gasträumen von ca. 60 m² und seit 2018 die neue verglaste Terrasse von ca. 44 m². Die Mieteinnahme p.a. beträgt 7.200 Euro. Ca. 85 m² Nutzfläche stehen im 2. Obergeschoss zur Erweiterung noch unsaniert zur Verfügung. Ausbaupläne dazu liegen bereits vor und sind genehmigt. Seit dem Jahr 2010 wurden nachweislich vom Eigentümer ca. 250.000 Euro in die Immobilie investiert, u.a. in -Einbau Erdgasheizung 2012,-Erneuerung der Dacheindeckung,-Modernisierung des Innenausbaus im Erd-und 1. Obergeschoss,-Einbau neuer Holzfenster im Erd-und 1. Obergeschoss,Durch die Lage im Denkmalensemble kommen vermietende Investoren in den Genuss der Denkmalschutz-Afa nach §7i Einkommenssteuergesetz.
So funktioniert es
- Alle neuen Anzeigen matchen wir kostenlos mit Deinen Suchparametern.
- Passende Angebote senden wir Dir in einer E-Mail pro Tag.
- Du kannst auch verschiedene Suchen anlegen und Dich jederzeit abmelden. Mehr dazu
Wir haben soeben eine E-Mail mit Deinem Suchauftrag an Dich geschickt. – Klicke in dieser Mail auf den Bestätigungslink und schon geht's los. Prüfe ggf. auch Deinen Spamordner.
Es gab ein Problem beim Absenden Deiner E-Mail-Adresse. Bitte versuche es erneut.
WARNUNG: Bitte bestätige Deine E-Mail-Adresse, um regelmäßige Updates zu erhalten.