Kaufpreis 345.990 €
Zimmer 4
Größe 117 m²
29229 Celle
Objektdaten
Veröffentlicht am: 8. November 2025
Energieausweis: Liegt bei der Besichtigung vor
Danke! Bitte bestätige Deine E-Mail-Adresse – wir haben Dir soeben eine Mail geschickt.
Es gab ein Problem beim Absenden. Bitte versuche es erneut.
Bitte bestätige Deine E-Mail-Adresse, um Updates zu erhalten.
Objektbeschreibung
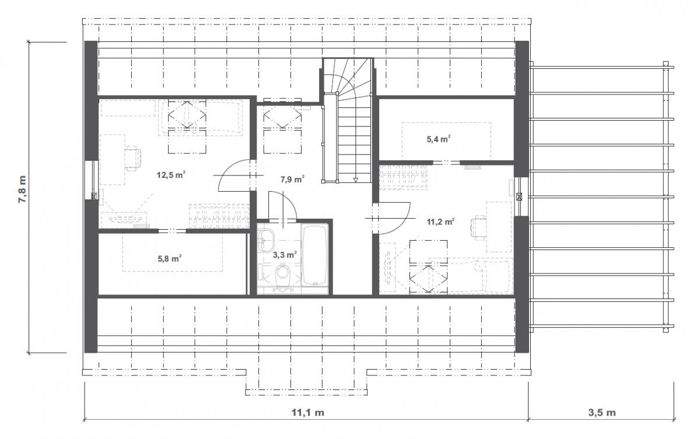
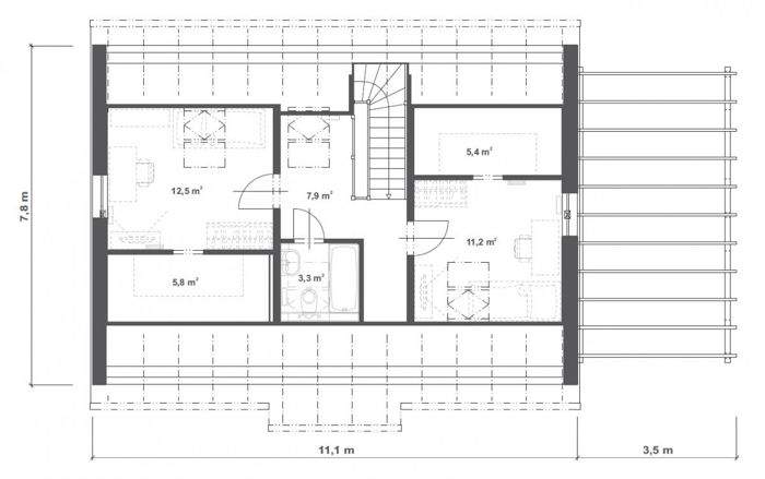
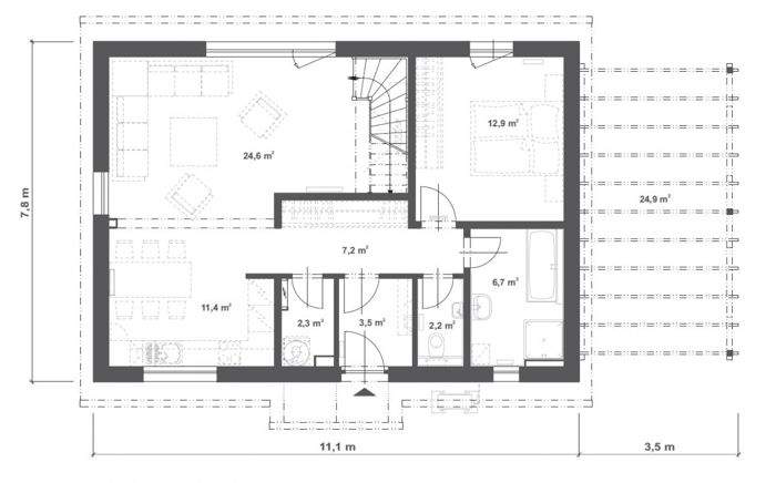
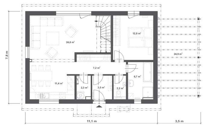
LARGO 85/ 40°SPDas Einfamilienhaus LARGO stellt einen idealen Kompromiss zwischen Bungalow und zweistöckigem Haus dar. Seine Vorteile liegen vor allem in der schlichten rechteckigen Form und dem traditionellen Satteldach, wodurch es sich perfekt in neue und ältere Gebäude einfügt. Das Haus LARGO 85 bietet komfortables und vor allem wirtschaftliches Wohnen für eine bis zu vierköpfige Familie. Der Grundriss wurde so gestaltet, dass alle Mitglieder des Haushalts ausreichend Platz haben. Im Preis des Hauses ist eine Garage in Form einer Pergola ohne Dach enthalten.Dank des einfachen rechteckigen Grundrisses von 11,14 × 7,81 m können Sie dieses Haus auf Grundstücken beliebiger Form errichten. Das Satteldach mit klassischen Dachfenstern ohne Gauben oder Erker sorgt ebenfalls für Schlichtheit. Die kompakte Form des Hauses wirkt sich zudem positiv auf die Energieeffizienz aus . Das Haus kann um einen praktischen Stellplatz für ein Auto oder eine Terrasse ergänzt werden. Ein großer Vorteil dieses Hauses ist die Möglichkeit, es bequem um einen Dachboden zu erweitern .Wie sieht modernes Wohnen aus? Großzügig , luftig und hell . Genau das bietet Ihnen das Erdgeschoss des LARGO 85. Es bildet den perfekten Rahmen für Familien- und Gesellschaftsleben. Das Erdgeschoss wird durch große Fenster erhellt, die direkt auf die Terrasse führen und so Ihr Zuhause mit dem Garten verbinden. Das 47 m² große Dachgeschoss bietet gemütliche, ruhige Räume, in denen jedes Haushaltsmitglied einen Moment für sich findet. Natürlich gibt es auch viel Stauraum .
So funktioniert es
- Alle neuen Anzeigen matchen wir kostenlos mit Deinen Suchparametern.
- Passende Angebote senden wir Dir in einer E-Mail pro Tag.
- Du kannst auch verschiedene Suchen anlegen und Dich jederzeit abmelden. Mehr dazu
Wir haben soeben eine E-Mail mit Deinem Suchauftrag an Dich geschickt. – Klicke in dieser Mail auf den Bestätigungslink und schon geht's los. Prüfe ggf. auch Deinen Spamordner.
Es gab ein Problem beim Absenden Deiner E-Mail-Adresse. Bitte versuche es erneut.
WARNUNG: Bitte bestätige Deine E-Mail-Adresse, um regelmäßige Updates zu erhalten.