Kaufpreis 371.600 €
Zimmer 4
Größe 106 m²
29392 Wesendorf
Objektdaten
Veröffentlicht am: 8. November 2025
Energieausweis: Liegt bei der Besichtigung vor
Danke! Bitte bestätige Deine E-Mail-Adresse – wir haben Dir soeben eine Mail geschickt.
Es gab ein Problem beim Absenden. Bitte versuche es erneut.
Bitte bestätige Deine E-Mail-Adresse, um Updates zu erhalten.
Objektbeschreibung
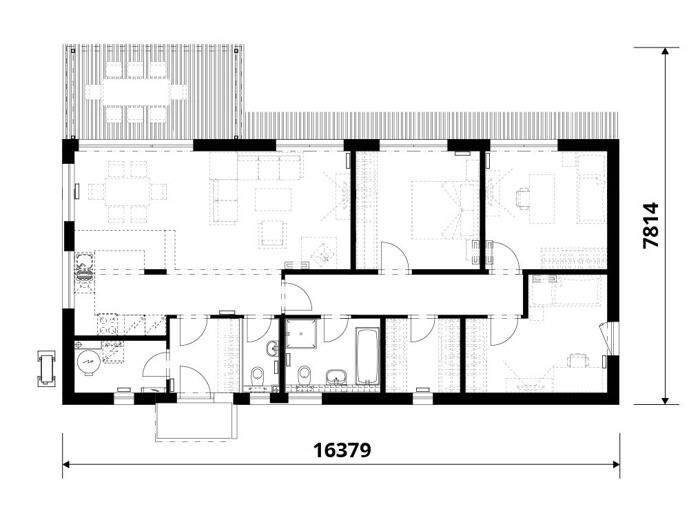
BUNGALOW 106Der typische Holzbau Bungalow 106 ist ein ideales Zuhause für eine große Familie. Die größte Stärke dieses Bungalows ist die praktische Raumnutzung. Der Wohnbereich, bestehend aus Küche, Esszimmer und Wohnzimmer, ist außergewöhnlich hell und dank des offenen Dachbodens ungewöhnlich luftig.Nutzfläche106 m 2Bebaute Fläche146 m 2Haus-Maße16,4 x 7,8 mDie traditionelle rechteckige Form des Bungalows 106 mit einer Grundfläche von 106 m² ermöglicht eine praktische Aufteilung des Grundrisses . In der einen Haushälfte befindet sich ein Gemeinschaftsbereich für die ganze Familie, der mit dem Garten verbunden ist, sowie technische Einrichtungen. Die andere Haushälfte dient als Ruhebereich, in dem sich Kinder- und Schlafzimmer befinden. Von außen beeindruckt das moderne Dach ohne Überlappungen, das die klaren, schlichten Linien des gesamten Hauses unterstreicht . Eine noch stärkere Verbindung zur Natur gewährleisten die Holzfassade und die großen Fenster , die den gesamten Innenraum beleuchten und einen ruhigen Blick in den Garten ermöglichen. Das attraktive Design des Hauses wird durch eine Terrasse oder Pergola ergänzt, die auch als Garage genutzt werden kann.Die Bautechnik, die Hausausstattung und das Projekt selbst des Bungalows 106 gewährleisten einen ganzjährigen wirtschaftlichen Betrieb .
So funktioniert es
- Alle neuen Anzeigen matchen wir kostenlos mit Deinen Suchparametern.
- Passende Angebote senden wir Dir in einer E-Mail pro Tag.
- Du kannst auch verschiedene Suchen anlegen und Dich jederzeit abmelden. Mehr dazu
Wir haben soeben eine E-Mail mit Deinem Suchauftrag an Dich geschickt. – Klicke in dieser Mail auf den Bestätigungslink und schon geht's los. Prüfe ggf. auch Deinen Spamordner.
Es gab ein Problem beim Absenden Deiner E-Mail-Adresse. Bitte versuche es erneut.
WARNUNG: Bitte bestätige Deine E-Mail-Adresse, um regelmäßige Updates zu erhalten.