Wohnen im Einfamilienhaus in der PARK- CITY Wesendorf / Gifhorn

Kaufpreis 335.208 €
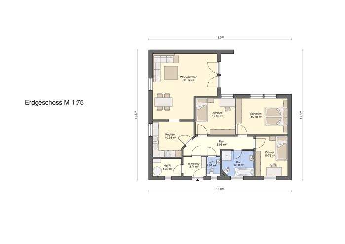
Zimmer 4
Größe 106 m²
29392 Wesendorf

Objektdaten

Veröffentlicht am: 8. November 2025
Energieausweis: Liegt bei der Besichtigung vor
Neu

Über ähnliche Angebote direkt informiert werden

  • Objektbeschreibung

    Die Häuser der Reihe LARGO sind als eingeschossige Bungalows mit nicht ausgebautem Dachraum konzipiert. Sie bieten eine natürliche Unterteilung in Wohn- und Ruhebereich und können individuell gestaltet werden.In Längsrichtung kann das Haus um Module von jeweils 600 mm vergrößert werden. Die Pfettendachkonstruktion gestattet eine hohe Variabilität der Raumaufteilung ganz nach den Vorstellungen des Kunden. Rechteckige oder L-förmige Grundrisse sind möglich.Die Häuser dieses Typs können auch in gespiegelter Ausführung geliefert werden.Standard 2024 - Familie - Sicherheit - Lebensqualität - Komfort -Familie/Sicherheit: Ü-Haus Basic Paket Smart HomeLebensqualität: Klima/Heizung/Luftwärmepumpe*Komfort: Steure Dein Haus mit Deiner StimmeInformieren Sie sich bei einem persönlichen Gespräch!Bosch Smart HomePhilips hue Lichtdesign*Gegen Aufpreis möglich.

    So funktioniert es

    • Alle neuen Anzeigen matchen wir kostenlos mit Deinen Suchparametern.
    • Passende Angebote senden wir Dir in einer E-Mail pro Tag.
    • Du kannst auch verschiedene Suchen anlegen und Dich jederzeit abmelden. Mehr dazu
    Nach oben scrollen