Kaufpreis 1.380.000 €
Zimmer 5
Größe 153 m²
25938 Utersum
Objektdaten
Veröffentlicht am: 10. November 2025
Energieausweis: Liegt bei der Besichtigung vor
Danke! Bitte bestätige Deine E-Mail-Adresse – wir haben Dir soeben eine Mail geschickt.
Es gab ein Problem beim Absenden. Bitte versuche es erneut.
Bitte bestätige Deine E-Mail-Adresse, um Updates zu erhalten.
Objektbeschreibung
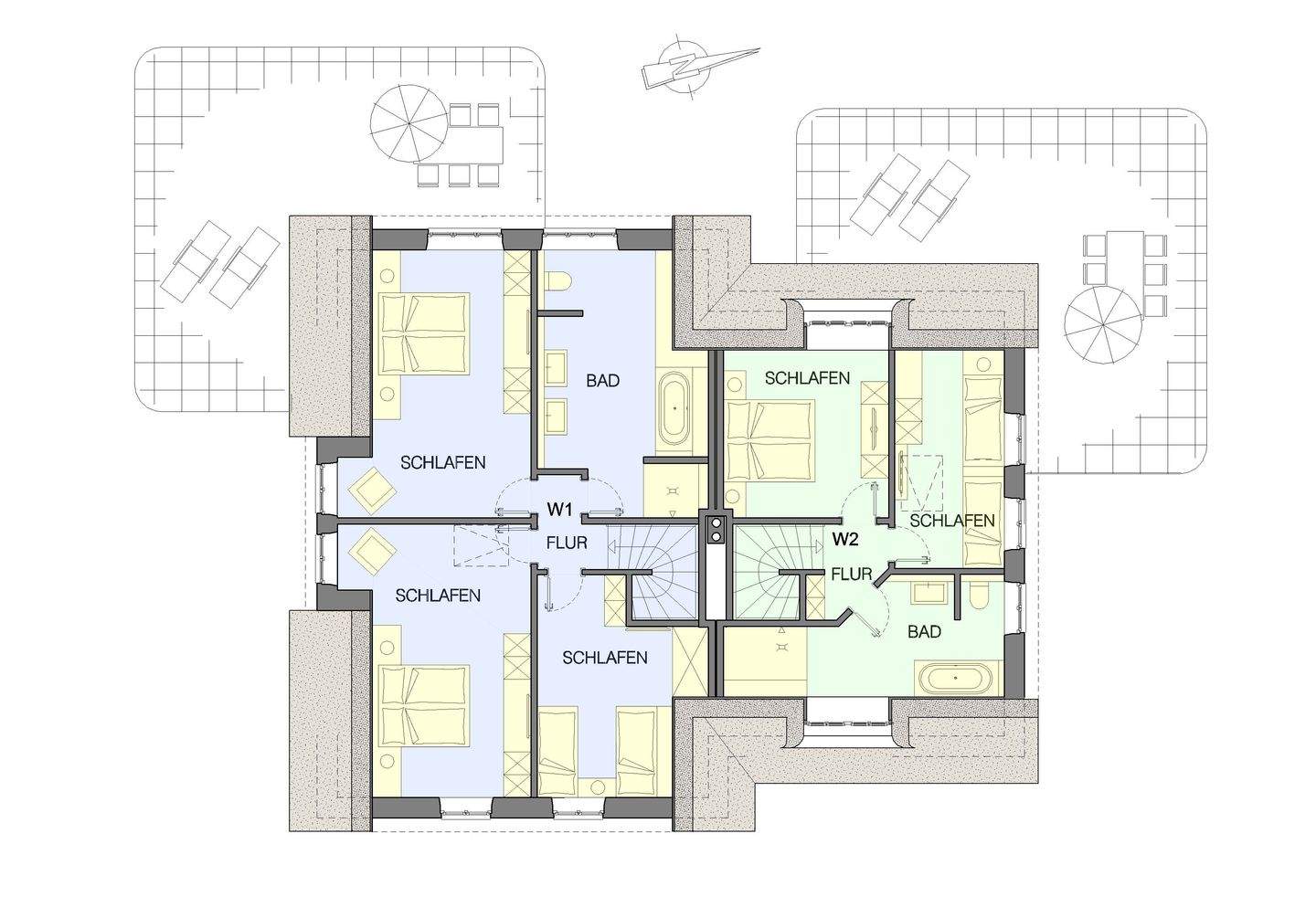
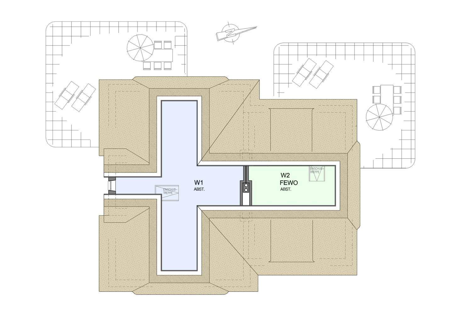
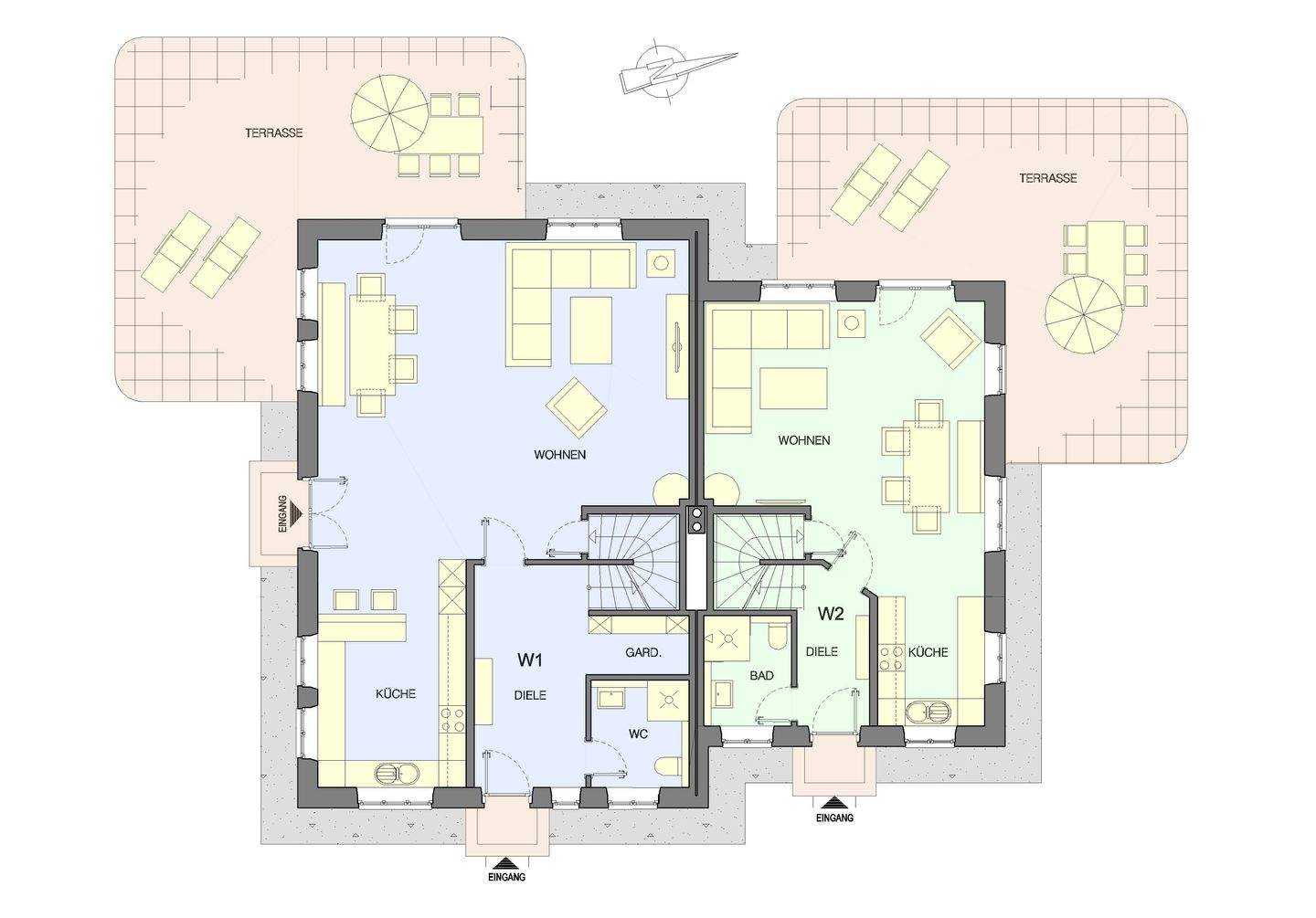
Ein typisches Friesenhaus mit sehr schöner Architektur und ausgezeichneter Bauqualität. Eine Summe schöner Details schafft eine hochwertige Spitzenimmobilie in traumhafter Lage von Utersum. Holzsprossenfenster, Reeteindeckung, zweischaliges Verblendmauerwerk, liebevolle Details mit schönen Fliesen und Holzarbeiten.Haus 1 (südliche Haushälfte) mit einer Wohn-/Nutzfläche von insgesamt 282,15 m².Das Sockelgeschoss bietet einen Hauswirtschaftsraum, Bad, Sauna, Schlafzimmer, Ruheraum, Flur, Abstellraum und einen gemeinsamen Heizungsraum.Im Erdgeschoss befindet sich ein großes Wohn/Esszimmer, integrierte Küche, WC und eine Diele.Im Dachgeschoss sind drei Schlafzimmer, ein Bad und ein Flur.Im Spitzboden befindet sich ein Abstellraum. In der allein zu nutzenden Gartenfläche (Sondernutzungsrecht) wird eine befestigte Terrassen-fläche von insgesamt ca. 52 m² angelegt. Diese ist aus dem Wohn-/Essbereich direkt erreichbar. Kaufpreis 1.770.000,--€ Haus 2 (nördliche Haushälfte) mit einer Wohn-/Nutzfläche von insgesamt 153,79 m² .Das Sockelgeschoss bietet einen Hauswirtschaftsraum, Bad, Sauna, Schlafzimmer, Ruheraum, Flur, Abstellraum und einen gemeinsamen Heizungsraum.Im Erdgeschoss befindet sich ein großes Wohn/Esszimmer, integrierte Küche, Bad und eine Diele. . Im Dachgeschoss sind zwei Schlafzimmer, ein Bad und ein Flur. Im Spitzboden befindet sich ein Abstellraum. In der allein zu nutzenden Gartenfläche (Sondernutzungsrecht) wird eine befestigte Terrassen-fläche von insgesamt ca. 52 m² angelegt. Diese ist aus dem Wohn-/Essbereich direkt erreichbar. Kaufpreis 1.380.000,-- €
So funktioniert es
- Alle neuen Anzeigen matchen wir kostenlos mit Deinen Suchparametern.
- Passende Angebote senden wir Dir in einer E-Mail pro Tag.
- Du kannst auch verschiedene Suchen anlegen und Dich jederzeit abmelden. Mehr dazu
Wir haben soeben eine E-Mail mit Deinem Suchauftrag an Dich geschickt. – Klicke in dieser Mail auf den Bestätigungslink und schon geht's los. Prüfe ggf. auch Deinen Spamordner.
Es gab ein Problem beim Absenden Deiner E-Mail-Adresse. Bitte versuche es erneut.
WARNUNG: Bitte bestätige Deine E-Mail-Adresse, um regelmäßige Updates zu erhalten.