Objektdaten
Objektbeschreibung
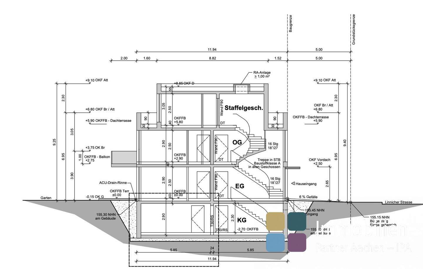
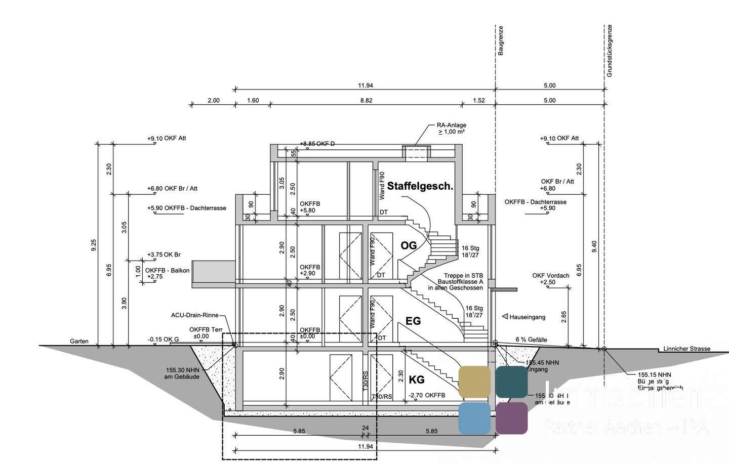
Es ist alles angerichtet.Diese Traumwohnung im Staffelgeschoß eines modernen 8 FH ist komplett fertig und steht Ihnen sofort zu Verfügung.Die Aufteilung stellt sich wie folgt dar :- Wohnzimmer - Esszimmer- Elternschlafzimmer- Bad- Kind- BalkonDer Stellplatz im Wert von 15.000 Euro ist im KP enthalten.So funktioniert es
- Alle neuen Anzeigen matchen wir kostenlos mit Deinen Suchparametern.
- Passende Angebote senden wir Dir in einer E-Mail pro Tag.
- Du kannst auch verschiedene Suchen anlegen und Dich jederzeit abmelden. Mehr dazu




