Kaufpreis 372.000 €
Zimmer 4
Größe 130 m²
84076 Pfeffenhausen
Objektdaten
Veröffentlicht am: 12. November 2025
Energieausweis: Liegt bei der Besichtigung vor
Danke! Bitte bestätige Deine E-Mail-Adresse – wir haben Dir soeben eine Mail geschickt.
Es gab ein Problem beim Absenden. Bitte versuche es erneut.
Bitte bestätige Deine E-Mail-Adresse, um Updates zu erhalten.
Objektbeschreibung
Objektbeschreibung
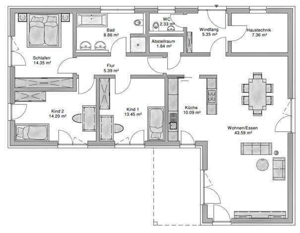
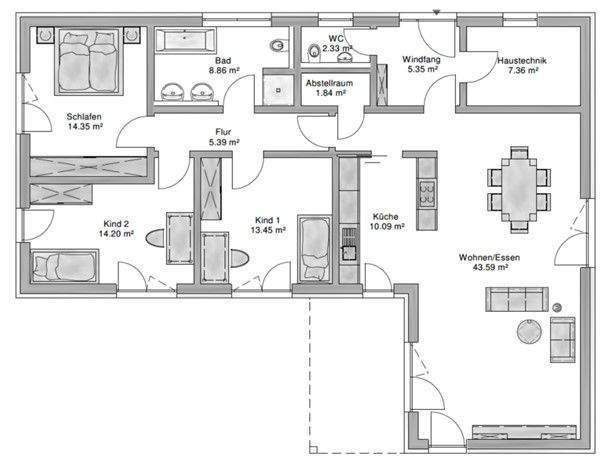
Dieses wunderschöne, schlüsselfertige Bungalow bietet auf 130 m² Wohnfläche ein modernes und komfortables Zuhause. Mit 4,5 Zimmern, einer offenen Wohnküche und gehobener Ausstattung erfüllt es alle Wünsche an ein behagliches Wohnen.Das Haus ist geplant und projektiert und kann nach Ihrer Freigabe der Detailplanungen bereits nach wenigen Monaten bezogen werden.Das Grundstück ist im Preis NICHT enthalten.Mit rund 130 Quadratmetern ist dieser Winkelbungalow fast schon großfamilientauglich.Und das auf einer Ebene! Eine Zwischentür im Flur trennt den „öffentlichen” Wohn-/Koch- und Essbereich von den privaten Rückzugsräumen im„Westflügel".Highlights: Wohnfläche: 130 m² Zimmer: 4,5 Zimmer, ideal für Familien oder Paare, die viel Platz schätzen Offene Wohnküche: Perfekt für gesellige Abende und gemeinsames Kochen Kinderzimmer: Zwei separate Kinderzimmer, flexibel nutzbar Schlüsselfertig: keine zusätzlichen Bauarbeiten notwendig Ausstattung: Hochwertige Materialien und moderne Technik für ein gehobenes Wohngefühl
Raumaufteilung
Dieses wunderschöne, schlüsselfertige Bungalow bietet auf 130 m² Wohnfläche ein modernes und komfortables Zuhause. Mit 4,5 Zimmern, einer offenen Wohnküche und gehobener Ausstattung erfüllt es alle Wünsche an ein behagliches Wohnen.Mit rund 130 Quadratmetern ist dieser Winkelbungalow fast schon großfamilientauglich.Und das auf einer Ebene! Eine Zwischentür im Flur trennt den „öffentlichen” Wohn-/Koch- und Essbereich von den privaten Rückzugsräumen im„Westflügel".
So funktioniert es
- Alle neuen Anzeigen matchen wir kostenlos mit Deinen Suchparametern.
- Passende Angebote senden wir Dir in einer E-Mail pro Tag.
- Du kannst auch verschiedene Suchen anlegen und Dich jederzeit abmelden. Mehr dazu
Wir haben soeben eine E-Mail mit Deinem Suchauftrag an Dich geschickt. – Klicke in dieser Mail auf den Bestätigungslink und schon geht's los. Prüfe ggf. auch Deinen Spamordner.
Es gab ein Problem beim Absenden Deiner E-Mail-Adresse. Bitte versuche es erneut.
WARNUNG: Bitte bestätige Deine E-Mail-Adresse, um regelmäßige Updates zu erhalten.