Kaufpreis 217.000 €
Zimmer 2
Größe 54 m²
93413 Cham
Objektdaten
Veröffentlicht am: 12. November 2025
Baujahr: 2025
Energieausweis: Liegt bei der Besichtigung vor
Danke! Bitte bestätige Deine E-Mail-Adresse – wir haben Dir soeben eine Mail geschickt.
Es gab ein Problem beim Absenden. Bitte versuche es erneut.
Bitte bestätige Deine E-Mail-Adresse, um Updates zu erhalten.
Objektbeschreibung
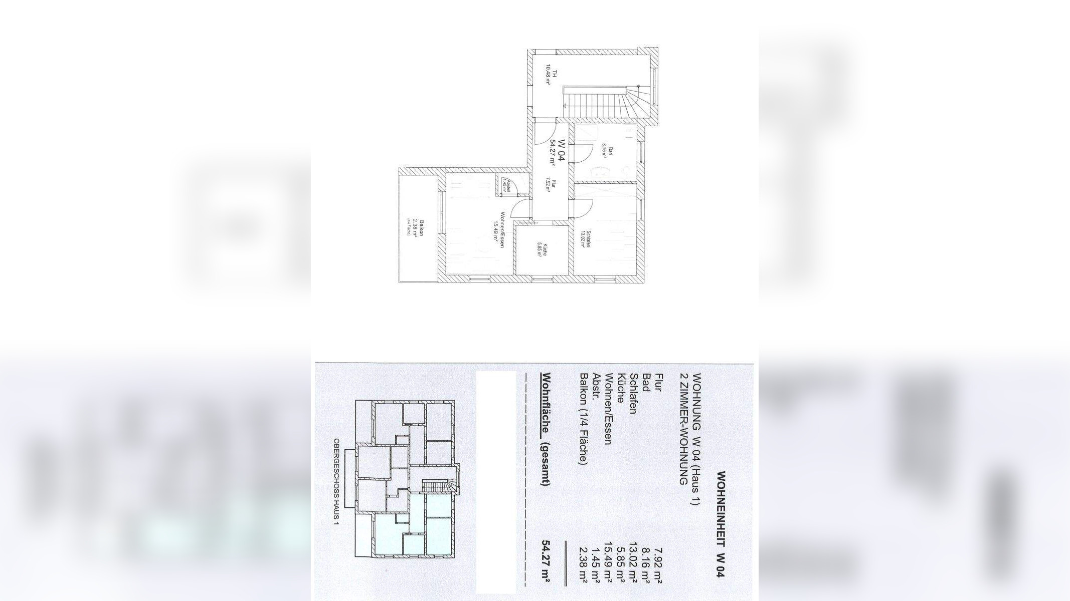
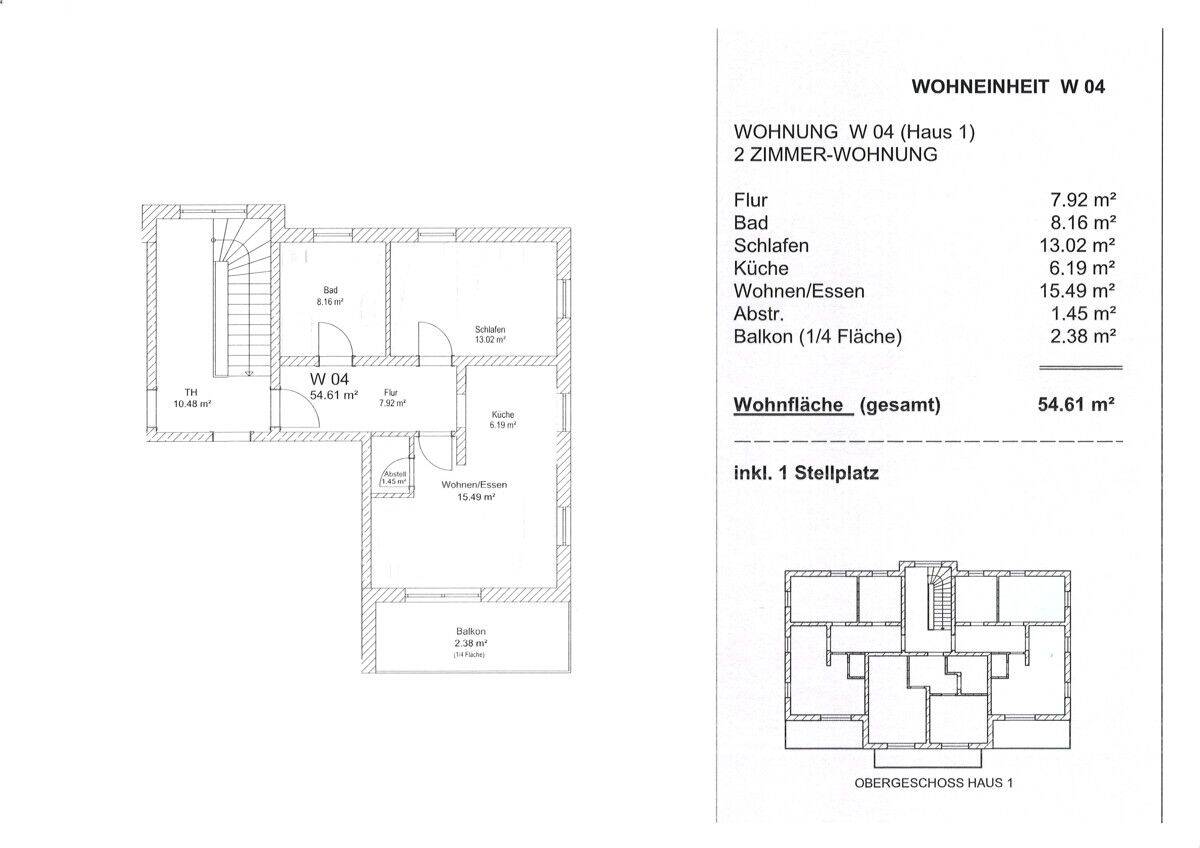
Auf einem ca. 1.853 m² großen Grundstück entstehen zwei moderne Mehrfamilienhäuser im energiesparenden KfW 55 EE-Standard.Jedes Haus umfasst nur fünf Wohneinheiten, was für eine ruhige Wohnatmosphäre sorgt. Beheizt werden die Gebäude durch eine moderne Luft/Wasser-Wärmepumpe, effizient und zukunftsorientiert. Baubeginn Herbst 2025 und voraussichtliche Fertigstellung im Herbst 2026. Der Erwerb ist für den Käufer provisionsfrei!Die helle und großzügig geschnittene 2 Zimmer Wohnung mit ca. 54,27 m² Wohnfläche, befindet sich im Obergeschoss des Hauses 1. Auch hier überzeugt die Aufteilung mit offenem Wohn-/Essbereich, Schlafzimmer, Küche und Tageslichtbad und Vorratsraum. Der nach Südosten ausgerichtete Balkon ist vom Wohn- und Essbereich aus zu begehen.Alle Wohnungen sind mit Fußbodenheizung, elektrischen Rollläden sowie EDV-Anschlüssen ausgestattet. Eine dezentrale Lüftungsanlage sorgt für ein angenehmes Raumklima. Die Bäder sind standardmäßig mit bodengleichen Duschen ausgestattet.Auf Wunsch können Anpassungen, wie z.?B. der Einbau einer Badewanne, vor Baubeginn berücksichtigt werden.Zu jeder Wohnung gehört ein separater Abstellraum im zugehörigen Nebengebäude.Die Wohnungen werden schlüsselfertig übergeben.Kaufpreis: 217.000 € inkl. Carport und Stellplatz für Wohnung Nr. 4 im Haus 1Dieses Neubauprojekt verbindet modernes, nachhaltiges Wohnen mit einer angenehmen, ruhigen Wohnlage. Die Kombination aus kompakter Hausgröße, großzügigem Grundstück und moderner Ausstattung macht die Immobilie sowohl für Eigennutzer als auch für Kapitalanleger äußerst attraktiv.Detaillierte Unterlagen wie die Baubeschreibung und eine Preisliste stellen wir Ihnen auf Anfrage gerne zur Verfügung.
So funktioniert es
- Alle neuen Anzeigen matchen wir kostenlos mit Deinen Suchparametern.
- Passende Angebote senden wir Dir in einer E-Mail pro Tag.
- Du kannst auch verschiedene Suchen anlegen und Dich jederzeit abmelden. Mehr dazu
Wir haben soeben eine E-Mail mit Deinem Suchauftrag an Dich geschickt. – Klicke in dieser Mail auf den Bestätigungslink und schon geht's los. Prüfe ggf. auch Deinen Spamordner.
Es gab ein Problem beim Absenden Deiner E-Mail-Adresse. Bitte versuche es erneut.
WARNUNG: Bitte bestätige Deine E-Mail-Adresse, um regelmäßige Updates zu erhalten.