Objektdaten
Objektbeschreibung
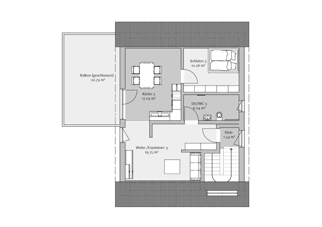
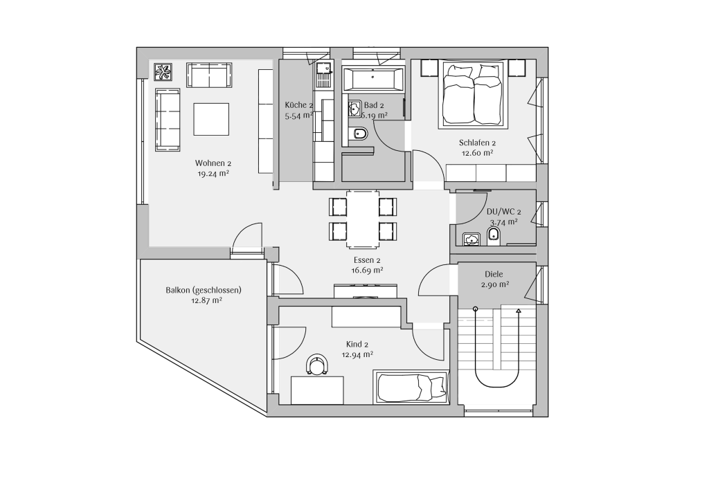
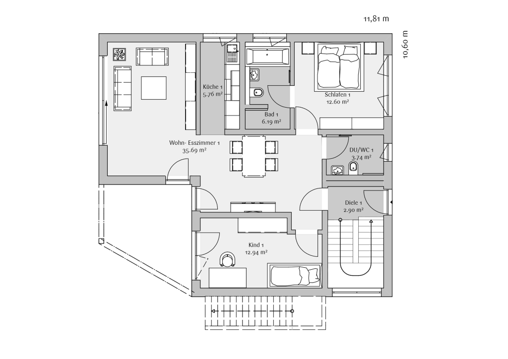
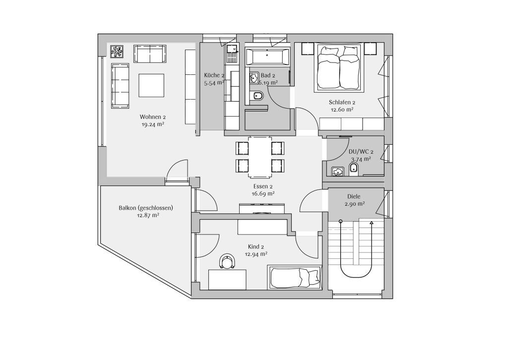
FischerHaus FAMILIA Raum für das Leben – und für die ganze Familie. FAMILIA ist das klassische Zwei - / Mehrfamilienhaus, das alle Wünsche erfüllt. Entweder als Zweifamilienhaus und nicht ausgebautem Dachgeschoss oder als Dreifamilienhaus mit 3 separaten Wohneinheiten. Wohnung 1 im Erdgeschoss: Überzeugt z.B. mit einem offenen Wohnbereich mit viel Tageslicht, direkter Terrassenanbindung und optionaler Speisekammer. Das Bad und die Schlafzimmer sind optimiert. Wohnung 2 im Obergeschoss: Wartet mit ähnlicher oder ganz anderen Raumaufteilung. Jedes FischerHaus wird individuell geplant und den Wünschen der jeweiligen Familien angepasst. • klarer Grundriss mit optimaler Flächennutzung • alle Räume in individuellen Größen • integrierte Garage optional möglich • nachhaltige Holzbauweise mit exzellenter Dämmung Dachform: Satteldach Wohnfläche: ca. 220 m² Geschosse: 2,5So funktioniert es
- Alle neuen Anzeigen matchen wir kostenlos mit Deinen Suchparametern.
- Passende Angebote senden wir Dir in einer E-Mail pro Tag.
- Du kannst auch verschiedene Suchen anlegen und Dich jederzeit abmelden. Mehr dazu




