Ein Ort für Erinnerungen, Lachen und Geborgenheit – das EFH Milano in Frontenhausen inkl. Grundstück

Kaufpreis 422.000 €
Größe 126 m²
84160 Frontenhausen

Objektdaten

Veröffentlicht am: 14. November 2025
Energieausweis: Liegt bei der Besichtigung vor
Neu

Über ähnliche Angebote direkt informiert werden

  • Objektbeschreibung

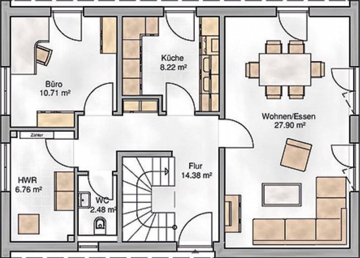
    Objektbeschreibung Unser Haustyp „Milano“ vereinigt viele Wünsche und Träume. Helle lichtdurchflutete Räume, einen Wohn-Essbereich der offen als auch geschlossen gestaltet werden kann, und ein geräumiges Arbeitszimmer auf der Wohnebene der Familie mit Zugang zum Garten. In der zweiten Ebene finden Sie schöne helle Kinderzimmer und ein geräumiges Bad, sowie das große Schlafzimmer mit Ankleidezimmer. Raumaufteilung Kinderzimmer, Ankleidezimmer, Arbeitszimmer, Gäste-WC

    So funktioniert es

    • Alle neuen Anzeigen matchen wir kostenlos mit Deinen Suchparametern.
    • Passende Angebote senden wir Dir in einer E-Mail pro Tag.
    • Du kannst auch verschiedene Suchen anlegen und Dich jederzeit abmelden. Mehr dazu
    Nach oben scrollen