Kaufpreis 508.760 €
Zimmer 3
Größe 72 m²
83125 Eggstätt
Objektdaten
Veröffentlicht am: 18. November 2025
Energieausweis: Liegt bei der Besichtigung vor
Danke! Bitte bestätige Deine E-Mail-Adresse – wir haben Dir soeben eine Mail geschickt.
Es gab ein Problem beim Absenden. Bitte versuche es erneut.
Bitte bestätige Deine E-Mail-Adresse, um Updates zu erhalten.
Objektbeschreibung
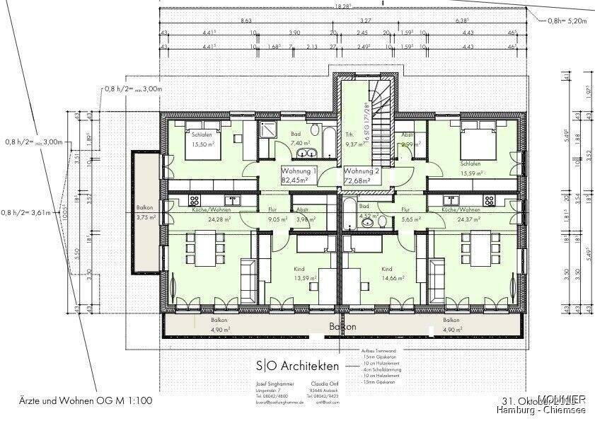
Willkommen in Eggstätt. Einem Ort, der Ruhe, Natur und Lebensqualität in einzigartiger Weise vereint. Inmitten der sanften Hügellandschaft des Chiemgaus, eingebettet zwischen den glitzernden Seen der Eggstätter und Hemhofer Seenplatte, entsteht ein Neubauprojekt, das mehr ist als ein Zuhause: Ankommen, Aufatmen und bewusst Leben.Hier entsteht ein liebevoll geplantes Ensemble aus zwei großzügigen Doppelhaushälften, vier charmanten Wohnungen und einer modernen Arztpraxis. Die Architektur verbindet traditionelle Werte mit zeitgemäßer Ästhetik. Gebaut wird in nachhaltiger Holzbauweise, mit viel Liebe zum Detail und einem klaren Fokus auf Wohnkomfort und Energieeffizienz.Die 3-Zimmer-Wohnung bietet eine perfekte Balance aus Raum und Funktionalität. Der offene Wohn-/Essbereich, das moderne Bad und der sonnige Balkon schaffen ein angenehmes Ambiente. Die energieeffiziente Bauweise und hochwertige Ausstattung machen sie zur idealen Wahl für anspruchsvolle Bewohner.Sie überzeugt mit einem durchdachten Grundriss, großzügigem Wohnbereich und Balkon mit Blick ins Grüne. Hochwertige Materialien, Smart-Home-Vorbereitung und Fußbodenheizung sorgen für ein modernes Wohngefühl. Ideal für Paare oder kleine Familien.Die Gebäude werden in energieeffizienter Holzbauweise nach den neuesten Standards der Energieeinsparverordnung (EnEV 2023) errichtet und erreichen die Energieeffizienzklasse A+. Die Kombination aus natürlichen Materialien, durchdachter Dämmung und moderner Haustechnik sorgt für ein gesundes Raumklima und niedrige Betriebskosten.Die Gebäude werden nach den neuesten Standards der Energieeinsparverordnung errichtet und erreichen die Energieeffizienzklasse A+. Die Holzbauweise sorgt nicht nur für ein angenehmes Raumklima, sondern auch für ein gutes Gewissen, denn hier wird ökologisch gebaut, ohne auf Komfort zu verzichten.Jede Einheit ist mit einer Fußbodenheizung ausgestattet, die für wohlige Wärme sorgt. Die Fenster sind dreifach verglast und mit elektrischen Rollläden versehen. Die Smart-Home-Vorbereitung ermöglicht eine moderne Steuerung von Licht, Heizung und Sicherheit, ganz nach Ihren Bedürfnissen.Die Tiefgarage bietet nicht nur Schutz für Ihr Fahrzeug, auch gibt es die Möglichkeit zur Installation einer Wallbox, denn auch an Elektromobilität ist hier gedacht. Für zukünftige Photovoltaik-Anlagen sind bereits Leerrohre vorgesehen. Ob Sie als Familie ein großzügiges Zuhause mit Garten suchen, als Paar eine moderne Wohnung mit Balkon genießen möchten oder als Single ein charmantes Dachgeschoss bevorzugen - dieses Projekt bietet für jeden Lebensstil die passende Lösung.Mit ca. 141 m² Wohnfläche auf zwei Ebenen bieten die Häuser viel Platz zum Leben und Entfalten. Drei Schlafzimmer, zwei Bäder, ein offener Wohn-/Essbereich mit Zugang zur Terrasse, ein Keller mit Technikraum und zwei Tiefgaragenstellplätzen. Hier bleiben keine Wünsche offen. Der eigene Garten lädt zum Spielen, Gärtnern oder Entspannen ein. Die Wohnungen sind zwischen ca. 44 und 82 m² groß und überzeugen durch durchdachte Grundrisse, helle Räume und hochwertige Ausstattung. Jede Wohnung verfügt über einen Balkon, Echtholzparkett, moderne Bäder und Smart-Home-Vorbereitung. Ob als Erstwohnung, Alterswohnsitz oder Kapitalanlage - hier finden Sie ein Zuhause mit Charakter.
So funktioniert es
- Alle neuen Anzeigen matchen wir kostenlos mit Deinen Suchparametern.
- Passende Angebote senden wir Dir in einer E-Mail pro Tag.
- Du kannst auch verschiedene Suchen anlegen und Dich jederzeit abmelden. Mehr dazu
Wir haben soeben eine E-Mail mit Deinem Suchauftrag an Dich geschickt. – Klicke in dieser Mail auf den Bestätigungslink und schon geht's los. Prüfe ggf. auch Deinen Spamordner.
Es gab ein Problem beim Absenden Deiner E-Mail-Adresse. Bitte versuche es erneut.
WARNUNG: Bitte bestätige Deine E-Mail-Adresse, um regelmäßige Updates zu erhalten.