3-Zi.-EG-Whg. mit Balkon und Garten ++ KfW 40 ++ Neubau ++ provisionsfrei

Kaufpreis 435.000 €
Zimmer 3
Größe 64 m²
85276 Pfaffenhofen a.d. Ilm

Objektdaten

Veröffentlicht am: 20. November 2025
Energieausweis: Liegt bei der Besichtigung vor
Neu

Über ähnliche Angebote direkt informiert werden

  • Objektbeschreibung

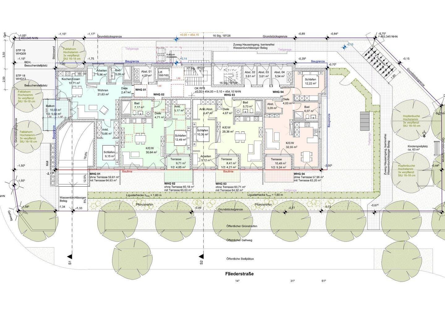
    Im gut angebundenen Neubaugebiet Pfaffelleiten im Ostteil Pfaffenhofens entsteht eine energieeffiziente Wohnanlage mit 16 Einheiten und Tiefgarage. Die 2- und 3-Zimmer-Wohnungen bieten Wohnflächen zwischen 63 und 89 m² – ideal für modernes Wohnen in attraktiver Lage. Energieeffizienz und Nachhaltigkeit werden großgeschrieben: Unser Gebäude erfüllt die Anforderungen an den KFW-Effizienzhaus 40 Standard. Zudem wird das Qualitätssiegel Nachhaltiges Gebäude (QNG) angestrebt.Für die Zukunft gewappnet: Das Objekt wird mit Mineralfaser gefüllten Ziegeln mit einer Stärke von 36,5 cm errichtet, welcher besonders langlebige gedämmte und nicht zuletzt schallisolierte Fassaden garantiert. Die Beheizung erfolgt über einen Fernwärmeanschluss. Weitere energetische Highlights: Auf dem Dach unseres Baukörpers ist eine Photovoltaik-Anlage installiert. Der erzeugte Strom steht den Nutzern als Allgemeinstrom zur Verfügung.Eine von der Außenfassade aus nicht sichtbare Lüftungsanlage mit integrierter Wärmerückgewinnung sorgt für ein exzellentes Raumklima und entlastet die Heizkosten.Jetzt vom Förderkredit der KfW-Bank profitieren: Die KfW-Bank fördert den Neubau und den Erstkauf klimafreundlicher Wohngebäude und Eigentumswohnungen und gewährt Ihnen einen Förderkredit von bis zu 150.000 € je Wohnung (aktueller Zinssatz effektiv von lediglich 0,60 %). Profitieren Sie durch den Erwerb unserer nachhaltigen Eigentumswohnungen von reduzierten Zinsen und steigern Sie somit Ihre Rendite.Projektdetails:Alle Wohnungen sind nach Süden ausgerichtet und somit dem Lärm der Moosburger Straße abgewandt. Unsere Erdgeschosswohnungen überzeugen mit Terrasse und Gartenanteil zur Sondernutzung. Alle Etagenwohnungen sind mit mindestens einem Balkon ausgestattet. Durch die optimale Raumeinteilung profitieren Sie von einem lichtdurchfluteten Ambiente in den Aufenthaltsräumen, Tageslichtbädern und Schlafräumen. Zu den einzelnen Einheiten zugehörige Abstellräume befinden sich in unmittelbarer Nähe zu den Wohnungen direkt auf der jeweiligen Etage.Die Fertigstellung ist geplant für voraussichtlich Herbst 2027.Der Verkauf erfolgt provisionsfrei.

    So funktioniert es

    • Alle neuen Anzeigen matchen wir kostenlos mit Deinen Suchparametern.
    • Passende Angebote senden wir Dir in einer E-Mail pro Tag.
    • Du kannst auch verschiedene Suchen anlegen und Dich jederzeit abmelden. Mehr dazu
    Nach oben scrollen