Objektdaten
Objektbeschreibung
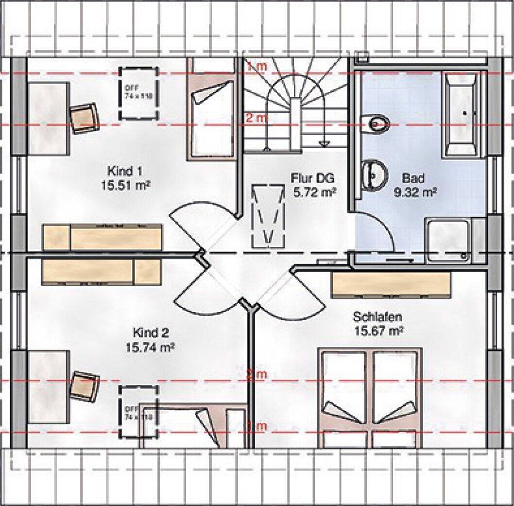
Modernes Wohnambiente trifft auf zeitlose Eleganz und das auf zwei Wohnebenen. Im Erdgeschoss befindet sich ein schönes geräumiges Wohn-Ess-Zimmer mit einem herrlichen Blick in Ihren Garten und eine Küche, die zum gemeinsamen Kochen einlädt. Der Hauswirtschaftsraum, die Speisekammer und das Gäste WC runden das Raumangebot auf dieser Ebene ab. Über die Treppe erreichen Sie die zweite Ebene. Platz für die Kinder, die Eltern, zum Entspannen, zum Arbeiten oder auch für Ihr Hobby. Die Grundrisse sind natürlich noch variabel und können an Ihre Wünsche und Bedürfnisse angepasst werden.So funktioniert es
- Alle neuen Anzeigen matchen wir kostenlos mit Deinen Suchparametern.
- Passende Angebote senden wir Dir in einer E-Mail pro Tag.
- Du kannst auch verschiedene Suchen anlegen und Dich jederzeit abmelden. Mehr dazu




