Objektdaten
Objektbeschreibung
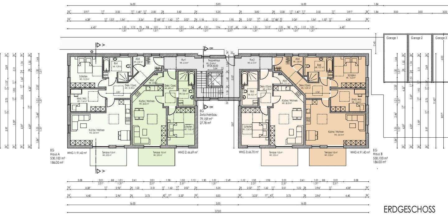
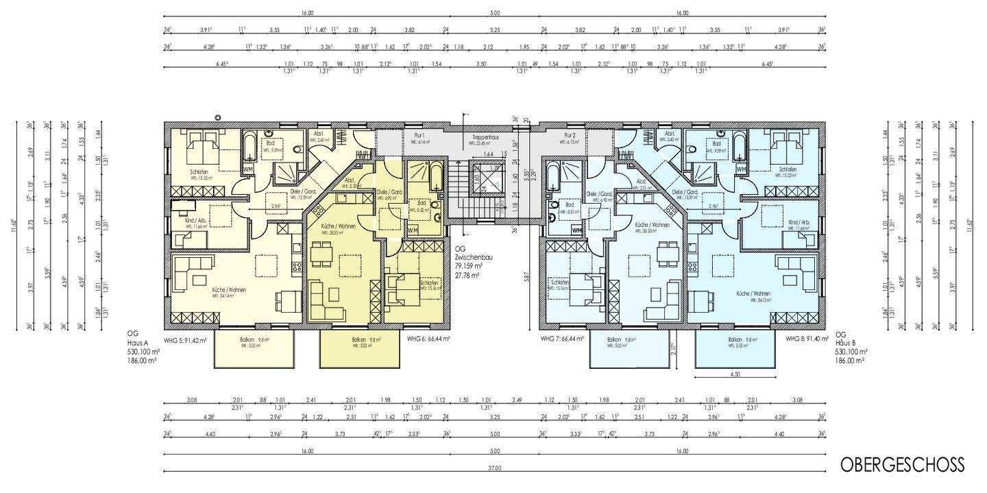
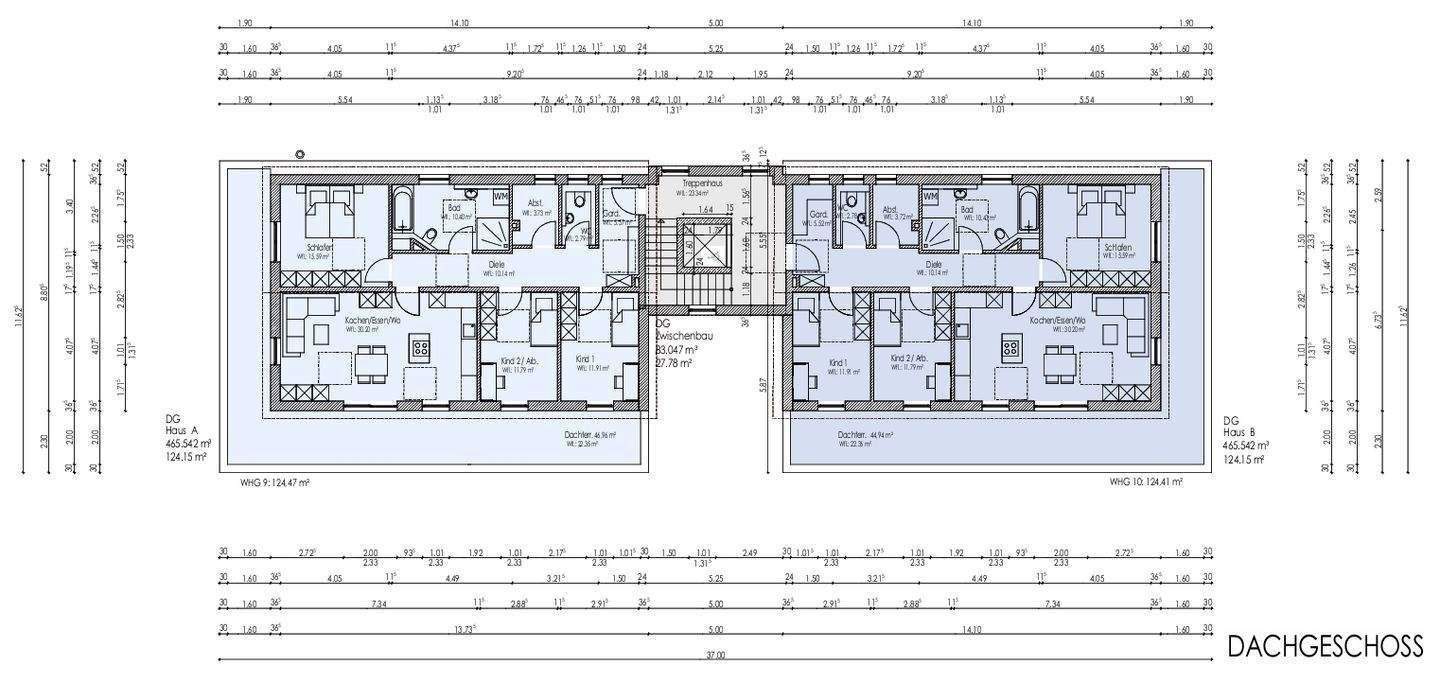
Objektbeschreibung In Heroldsberg entstehen diese 10-Eigentumswohnungen. Im neuesten aktuellen Energiestandard KFW 40 QNG. Die Wohnungen sind barrierefrei geplant, somit für Jung u. Alt bestens geeignet. Jede Wohnung bekommt zusätzlich einen Kellerraum. In baubiologischer, hervorragenden massiven Ziegelbauweise. Die Beheizung erfolgt über Wärmepumpen mit Unterstützung einer PV-Anlage auf dem Dach. Noch dazu eine dezentrale, kontrollierte Lüftungsanlage mit Wärmerückgewinnung. Die Fa. Erra Haus GmbH ist ein renomierter Bauträger, mit über 25-Jahren Bauerfahrung. Wir bauen in den Regionen Neumarkt, Nürnberg, Ingolstadt, Amberg-Sulzbach usw. KG-EG-1.OG-2.OG-Penthouse. Wir freuen uns auf Ihr [email protected] Raumaufteilung Käuferwünsche sind noch möglich.So funktioniert es
- Alle neuen Anzeigen matchen wir kostenlos mit Deinen Suchparametern.
- Passende Angebote senden wir Dir in einer E-Mail pro Tag.
- Du kannst auch verschiedene Suchen anlegen und Dich jederzeit abmelden. Mehr dazu




