Käufer Provisionsfrei! Stilvoll wohnen in Herzlake – moderne Eigentumswohnung top ausgestattet

Kaufpreis 242.000 €
Zimmer 2
Größe 72 m²
49770 Herzlake

Objektdaten

Veröffentlicht am: 30. November 2025
Energieausweis: Liegt bei der Besichtigung vor
  • Objektbeschreibung

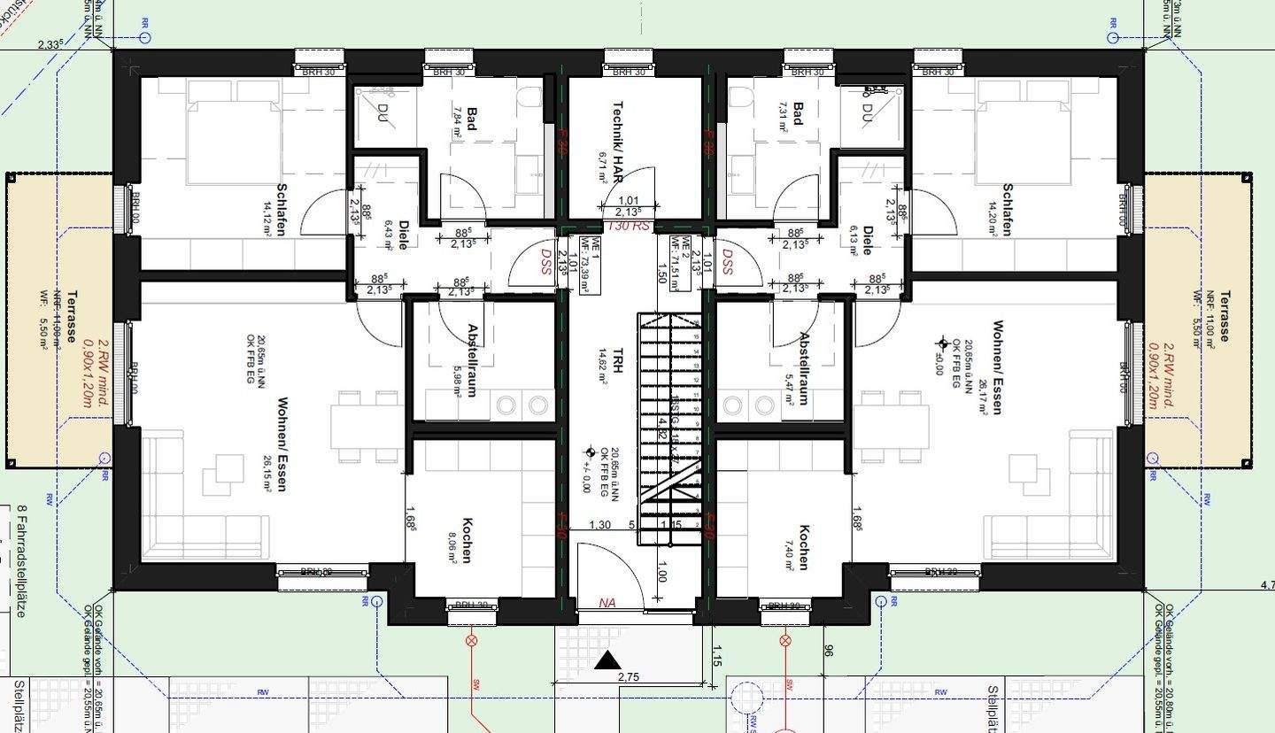
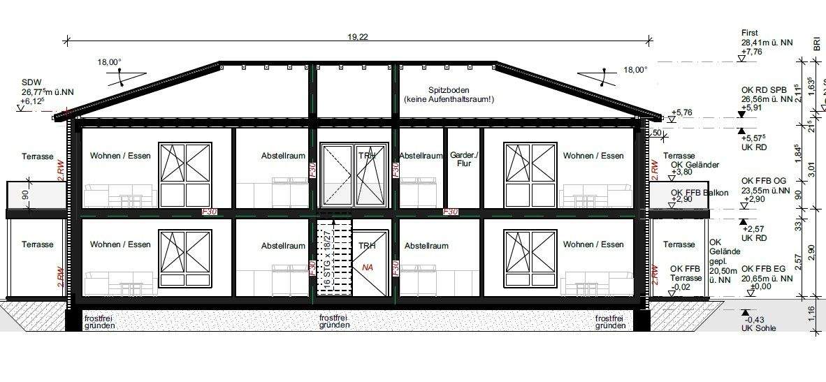
    Stilvoll wohnen in Herzlake - moderne 2-Zimmer-Wohnung mit Terrasse, Garten & Top-AusstattungDiese moderne und äußerst gepflegte 2-Zimmer-Eigentumswohnung im Erdgeschoss eines im Jahr 2023 errichteten Wohnhauses vereint Komfort, Effizienz und zeitloses Design - ideal für Kapitalanleger oder Eigennutzer, die Wert auf Qualität legen. Auf ca. 72,18 m² bietet die Wohnung eine durchdachte Raumaufteilung, helle Wohnbereiche und eine hochwertige Ausstattung, die ein zeitgemäßes Wohngefühl schafft.Bereits beim Betreten fällt die moderne Gestaltung ins Auge: Der großzügige Wohn- und Essbereich ist mit hochwertigen Vinyl-Designböden ausgestattet, die nicht nur edel wirken, sondern auch pflegeleicht und langlebig sind. Große Fensterflächen mit Isolierverglasung und elektrischen Rollläden sorgen für eine angenehme Lichtstimmung und ermöglichen gleichzeitig einen hohen Wohnkomfort.Die offene Küche fügt sich harmonisch in den Wohnbereich ein und lässt viel Raum für individuelle Gestaltung. Von hier gelangen Sie direkt auf die überdachte Terrasse, die in den gepflegten, komplett mit einem Stabgitterzaun eingezäunten Gartenbereich übergeht. Die Gartenmitbenutzung bietet zusätzlichen Wohnwert - ideal für entspannte Stunden im Freien.Die Wohnung ist derzeit für 10,00 €/m² Kaltmiete vermietet - eine solide, nachhaltige Kapitalanlage in einer stetig nachgefragten Wohnlage.
    Nach oben scrollen