Kaufpreis 497.000 €
Zimmer 4
Größe 133 m²
15711 Königs Wusterhausen
Objektdaten
Veröffentlicht am: 2. Dezember 2025
Energieausweis: Liegt bei der Besichtigung vor
Danke! Bitte bestätige Deine E-Mail-Adresse – wir haben Dir soeben eine Mail geschickt.
Es gab ein Problem beim Absenden. Bitte versuche es erneut.
Bitte bestätige Deine E-Mail-Adresse, um Updates zu erhalten.
Objektbeschreibung
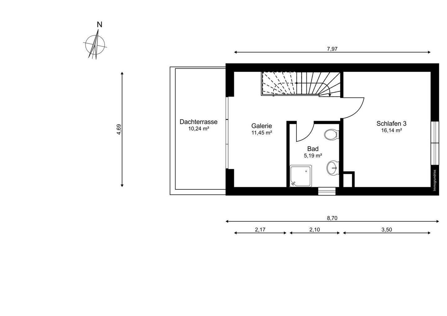
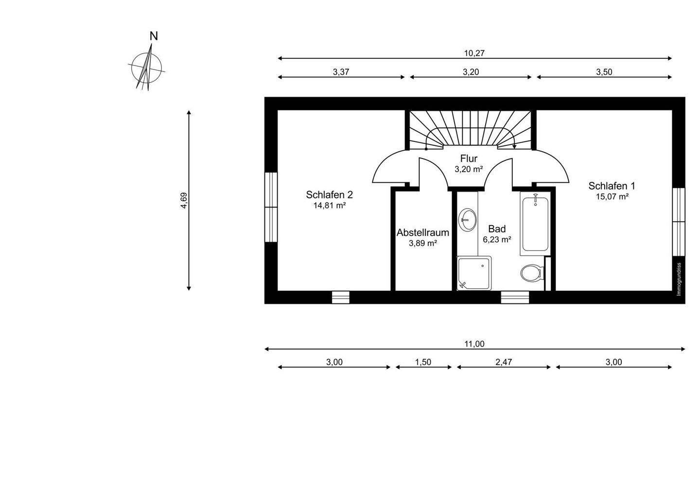
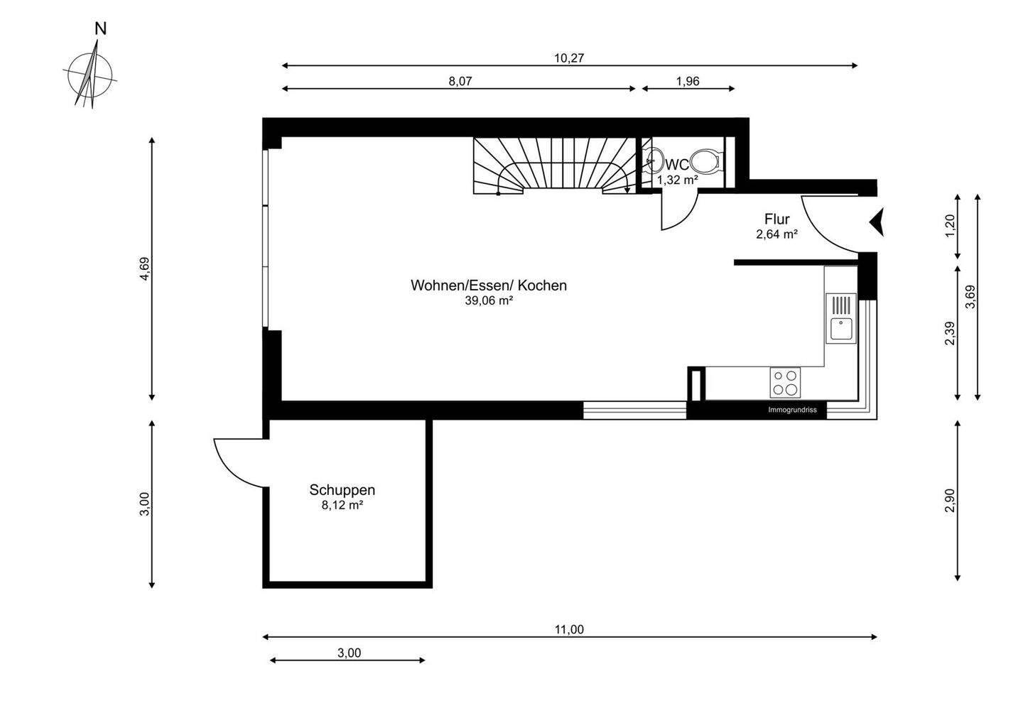
In der begehrten Wohnlage von Königs Wusterhausen, in der ruhigen Schorfheider Straße, entsteht ein modernes Neubauprojekt mit zwei hochwertig ausgestatteten Doppelhaushälften in massiver Bauweise.Zum Verkauf steht eine der beiden Haushälften, die auf einem ca. 163?m² großen Grundstück realisiert wird - mit klarer Südwest-Ausrichtung und Zufahrt von der Ostseite.Die angebotene Doppelhaushälfte überzeugt mit einer Wohnfläche von ca. 133?m², verteilt auf drei gut durchdachte Etagen. Schon beim Eintreten öffnet sich ein lichtdurchfluteter, offener Wohn- und Essbereich mit direktem Zugang zur Terrasse - ideal für entspannte Stunden im Freien oder gesellige Abende mit Familie und Freunden.Die moderne Grundrissgestaltung bietet insgesamt drei helle Schlafzimmer, ein großzügiges Vollbad mit Wanne und Dusche, ein zusätzliches Duschbad sowie ein Gäste-WC im Erdgeschoss. Ein echtes Highlight ist die großzügige Dachterrasse, die einen Rückzugsort unter freiem Himmel schafft - perfekt für Sonnenuntergänge oder den ersten Kaffee am Morgen.Neben dem durchdachten Raumangebot punktet das Haus auch technisch: Eine Fußbodenheizung, eine energieeffiziente Wärmepumpe sowie eine Photovoltaikanlage mit Speichersystem sorgen für zeitgemäßen Wohnkomfort und Nachhaltigkeit.Ein angrenzender Schuppen bietet zusätzlichen Stauraum für Fahrräder, Gartenutensilien oder Hobbyausrüstung.Die Schorfheider Straße liegt in einem familienfreundlichen, gewachsenen Wohngebiet mit sehr guter Anbindung an das Zentrum von Königs Wusterhausen sowie den Berliner Speckgürtel - ruhig, grün und dennoch urban angebunden.
So funktioniert es
- Alle neuen Anzeigen matchen wir kostenlos mit Deinen Suchparametern.
- Passende Angebote senden wir Dir in einer E-Mail pro Tag.
- Du kannst auch verschiedene Suchen anlegen und Dich jederzeit abmelden. Mehr dazu
Wir haben soeben eine E-Mail mit Deinem Suchauftrag an Dich geschickt. – Klicke in dieser Mail auf den Bestätigungslink und schon geht's los. Prüfe ggf. auch Deinen Spamordner.
Es gab ein Problem beim Absenden Deiner E-Mail-Adresse. Bitte versuche es erneut.
WARNUNG: Bitte bestätige Deine E-Mail-Adresse, um regelmäßige Updates zu erhalten.