Objektdaten
Objektbeschreibung
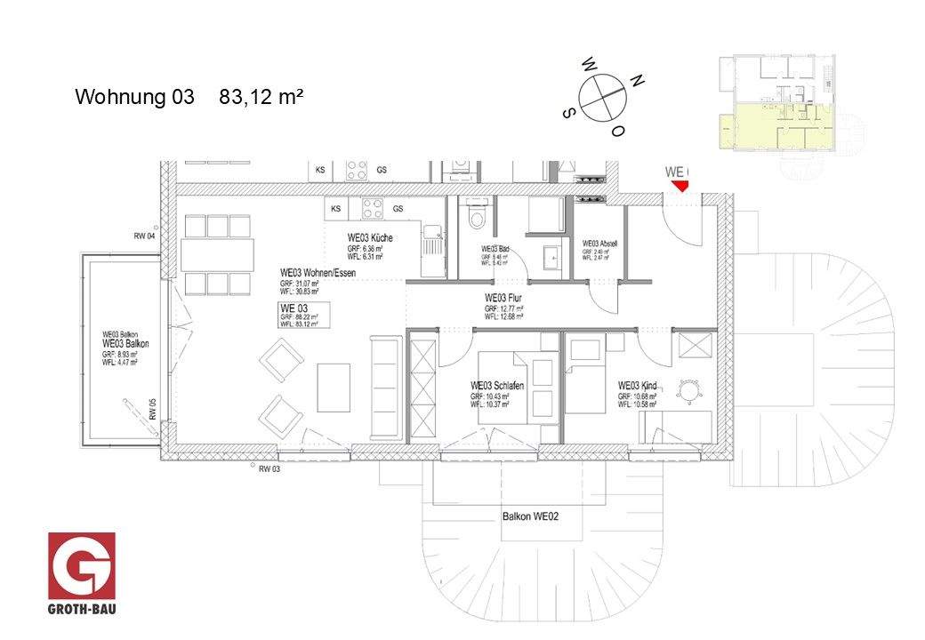
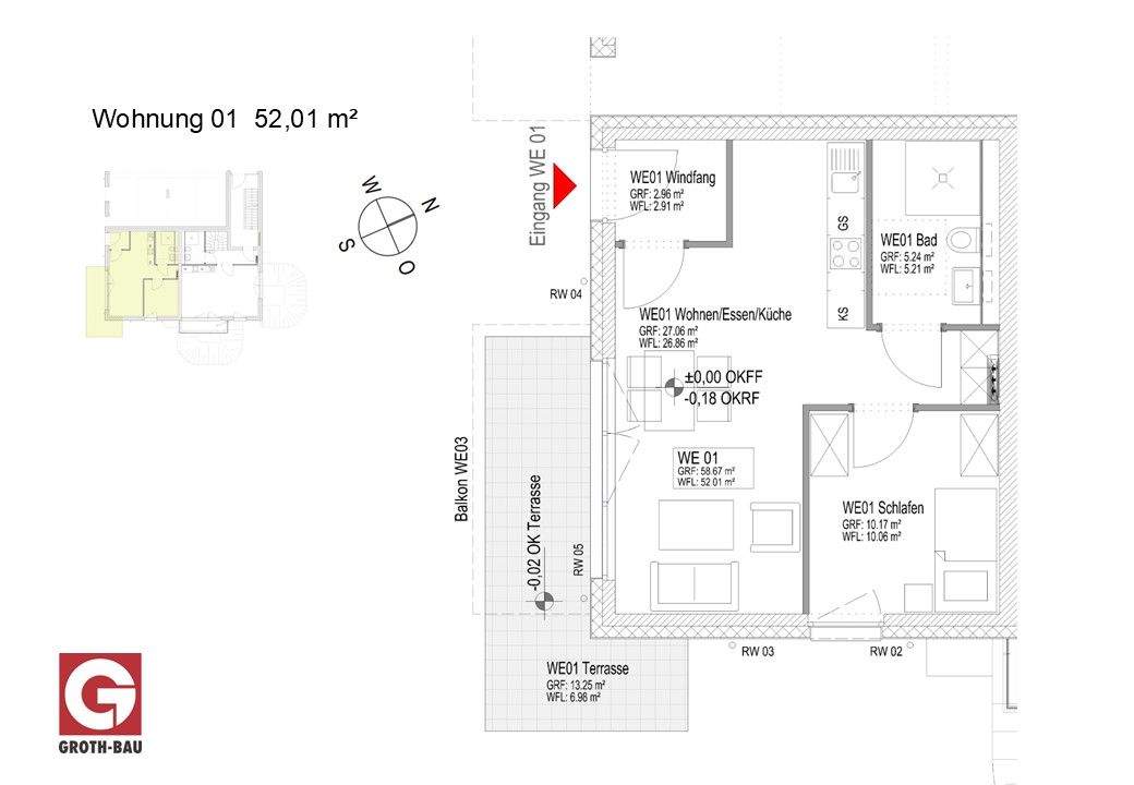
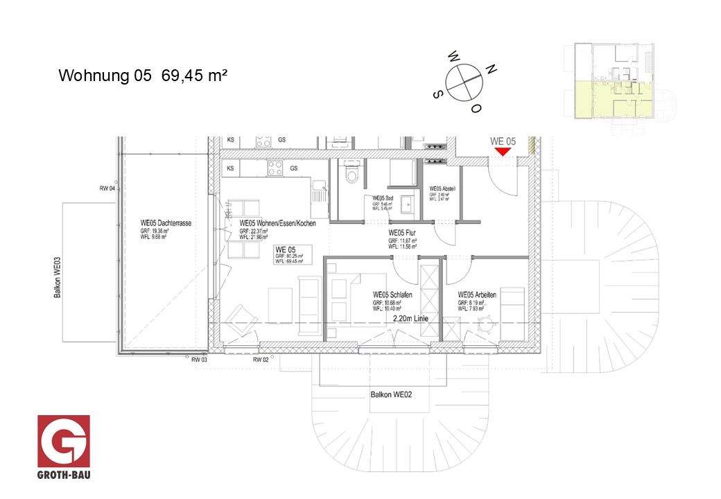
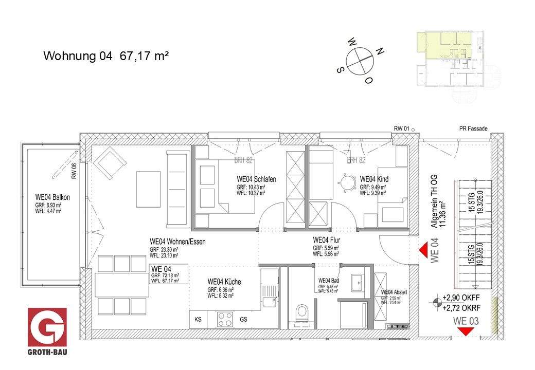
Wir bauen für Sie sechs Wohnungen in einer soliden, massiven Bauweise. Die Wohnung 01 mit direktem Zugang von außen wird barrierefrei hergestellt. Das Gebäude erhält keinen Aufzug. Die weiteren Wohnungen werden über ein gemeinsames Treppenhaus erschlossen. Die Wohnung 02 hat Schlafräume mit ausreichender Belichtung durch abgeböschtes Gelände im Souterrain. Diese werden über eine interne Treppe erreicht. Im Untergeschoß werden Abstellräume und Waschräume sowie die Haustechnik platziert. Vier überdachte Stellplätze sind im EG angeordnet, zwei weitere Stellplätze befinden sich ebenfalls auf dem Grundstück. Die Wärmedämmfassade wird mit rotem Klinkerriemchen ausgeführt. Die Dachneigung beträgt 20°. Dachterrassen und Balkone werden mit einem Belag in Holzoptik modern gestaltet und erhalten ein attraktives Geländer. Die Bicolorfenster erhalten 3-fach Verglasung und eine Fußbodenheizung mit einer ressourcenschonenden Luft-Wasser-Wärmepumpe sorgt für Wärme. Die Wohnung 05 befindet sich ganz oben mit einer wunderschönen Dachterrasse und einem großzügigen Wohn Essbereich. Ein Schlaf- und ein Arbeitszimmer bieten viel Komfort. Stauraum im Abstellraum und Kellerraum sind unentbehrlich. Ein Duschbad mit bodengleicher Dusche und ansprechender Gestaltung runden den Grundriss ab.So funktioniert es
- Alle neuen Anzeigen matchen wir kostenlos mit Deinen Suchparametern.
- Passende Angebote senden wir Dir in einer E-Mail pro Tag.
- Du kannst auch verschiedene Suchen anlegen und Dich jederzeit abmelden. Mehr dazu




