Kaufpreis 1.375.000 €
82216 Maisach
Objektdaten
Veröffentlicht am: 7. Dezember 2025
Danke! Bitte bestätige Deine E-Mail-Adresse – wir haben Dir soeben eine Mail geschickt.
Es gab ein Problem beim Absenden. Bitte versuche es erneut.
Bitte bestätige Deine E-Mail-Adresse, um Updates zu erhalten.
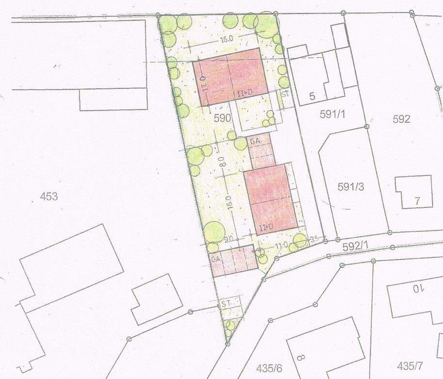
Objektbeschreibung
Dieses großzügige und sehr gut geschnittene Grundstück in Malching, Landkreis Fürstenfeldbruck, überzeugt durch seine attraktive Lage und ist nur wenige Schritte von der S-Bahn-Station entfernt. Aktuell befindet sich ein älteres Bestandsgebäude auf dem Grundstück, das aufgrund seines Alters abgerissen werden müsste.In der Galerie finden Sie zwei unverbindliche Planungskonzepte für das Grundstück. Bereits damals wurde ein Plan zur Bebauung mit zwei Doppelhäusern erstellt, zusätzlich liegt ein weiteres Konzept als alternative Variante vor. Diese wurden nicht mit dem Bauamt abgestimmt und dienen ausschließlich der ersten Vorstellung möglicher Bebauungsoptionen. Beide Entwürfe sind nicht konkret ausgearbeitet, zeigen jedoch die grundsätzliche Eignung des Grundstücks für unterschiedliche Nutzungskonzepte. Dadurch ergibt sich eine hohe Flexibilität - ideal für große Familien oder Paare, die das Grundstück gemeinsam nutzen möchten, ebenso wie für Investoren oder Bauträger mit einem klaren Entwicklungsziel.In der Umgebung des Grundstücks in Malching wurden in den vergangenen Jahren ebenfalls Reihenhäuser/Doppelhäuser errichtet. Daher kann davon ausgegangen werden, dass eine entsprechende Bebauung auch auf diesem Grundstück grundsätzlich möglich ist.Welche Bebauung im konkreten Fall möglich ist, sollte selbstverständlich im Rahmen eines Abstimmungsgesprächs mit dem zuständigen Bauamt geklärt werden. Das Grundstück bietet jedoch eine hervorragende Basis, um individuelle Wohnideen oder ein gemeinschaftliches Wohnprojekt zu realisieren.
So funktioniert es
- Alle neuen Anzeigen matchen wir kostenlos mit Deinen Suchparametern.
- Passende Angebote senden wir Dir in einer E-Mail pro Tag.
- Du kannst auch verschiedene Suchen anlegen und Dich jederzeit abmelden. Mehr dazu
Wir haben soeben eine E-Mail mit Deinem Suchauftrag an Dich geschickt. – Klicke in dieser Mail auf den Bestätigungslink und schon geht's los. Prüfe ggf. auch Deinen Spamordner.
Es gab ein Problem beim Absenden Deiner E-Mail-Adresse. Bitte versuche es erneut.
WARNUNG: Bitte bestätige Deine E-Mail-Adresse, um regelmäßige Updates zu erhalten.