IHR Traumhaus auf exklusivem Grundstück in Burgstädt!

Kaufpreis 404.900 €
Zimmer 4
Größe 121 m²
09217 Burgstädt

Objektdaten

Veröffentlicht am: 15. Dezember 2025
Baujahr: 2026
Energieausweis: Liegt bei der Besichtigung vor
Neu

Über ähnliche Angebote direkt informiert werden

  • Objektbeschreibung

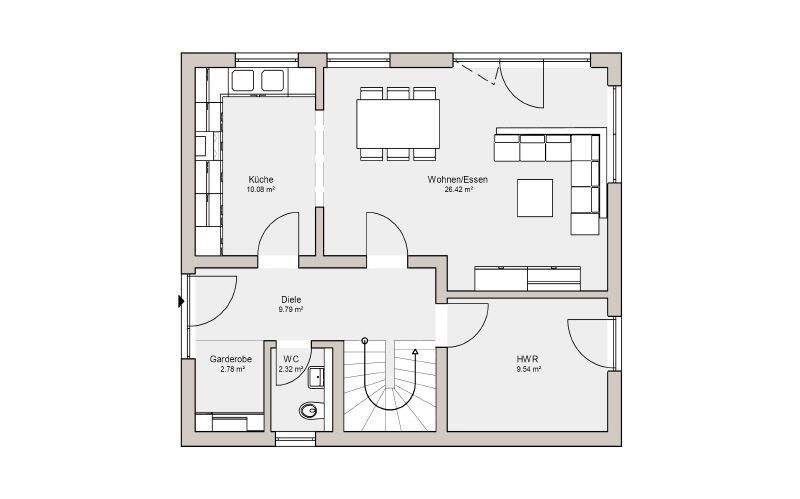
    Das Satteldachhaus Cara zeigt schon von außen einige Besonderheiten und seinen ganz speziellen Charme: Neben einer flachen Dachneigung wurden Fenster im Drempelbereich für lichtdurchflutete Räume sowie eine Holzfassade angebracht. Innen überzeugt das Architektenhaus mit einer klaren Grundrissaufteilung auf 121 Quadratmetern Wohnfläche, vier Zimmern und zwei Vollgeschossen. Im Erdgeschoss bietet das Familienhaus eine halboffene Küche zum großzügigen Wohn- und Essbereich mit bodentiefen Fenstern. Daneben gibt es auf dieser Etage ein Gäste-WC und eine Diele mit Garderobe. Praktisch ist auch der Hauswirtschaftsraum mit direktem Zugang in den Garten. Im Dachgeschoss stehen den Bewohnern große Individualräume zur Verfügung. Das Kinder- und das Eltern-Schlafzimmer bieten jeweils über 16 Quadratmeter Wohnfläche. Komplettiert wird die Etage durch ein Familien-Badezimmer und ein praktisches Home-Office.Dieses Haus wird nach Ihren individuellen Wünschen geplant und ausgestattet!

    So funktioniert es

    • Alle neuen Anzeigen matchen wir kostenlos mit Deinen Suchparametern.
    • Passende Angebote senden wir Dir in einer E-Mail pro Tag.
    • Du kannst auch verschiedene Suchen anlegen und Dich jederzeit abmelden. Mehr dazu
    Nach oben scrollen