Objektdaten
Objektbeschreibung
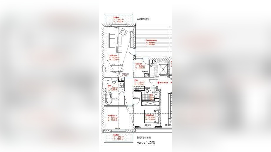
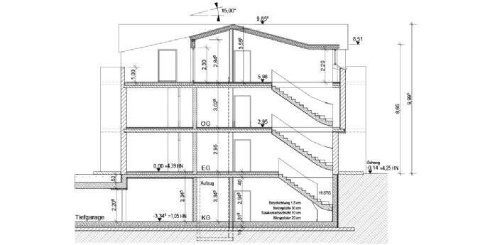
Auf dem ehemaligen Grundstück der Kurverwaltung im Ostseebad Baabe in der Fritz-Worm-Straße 1 befindet sich das Projekt „Parkvillen Baabe“. Das Grundstück hat eine Gesamtgröße von ca. 3.815 qm und befindet sich in zentraler Lage des Ostseebades Baabe – nur ca. 350 m vom Strand entfernt. Das Ensemble besteht aus drei Gebäuden mit jeweils 10 Einheiten in einer ansprechenden, modernen Bäderarchitektur. Eine große Tiefgarage verbindet die Häuser unterirdisch. Die Wohnungen haben Größen zwischen 50 und 104 m². Die Ausstattung der Wohnungen ist hochwertig.Ähnliche Angebote
So funktioniert es
- Alle neuen Anzeigen matchen wir kostenlos mit Deinen Suchparametern.
- Passende Angebote senden wir Dir in einer E-Mail pro Tag.
- Du kannst auch verschiedene Suchen anlegen und Dich jederzeit abmelden. Mehr dazu




